← Back to Stockport Metropolitan Borough Council

Status

Registered
Received
17 Apr 2025
New dwellings
n/a

Full Proposal

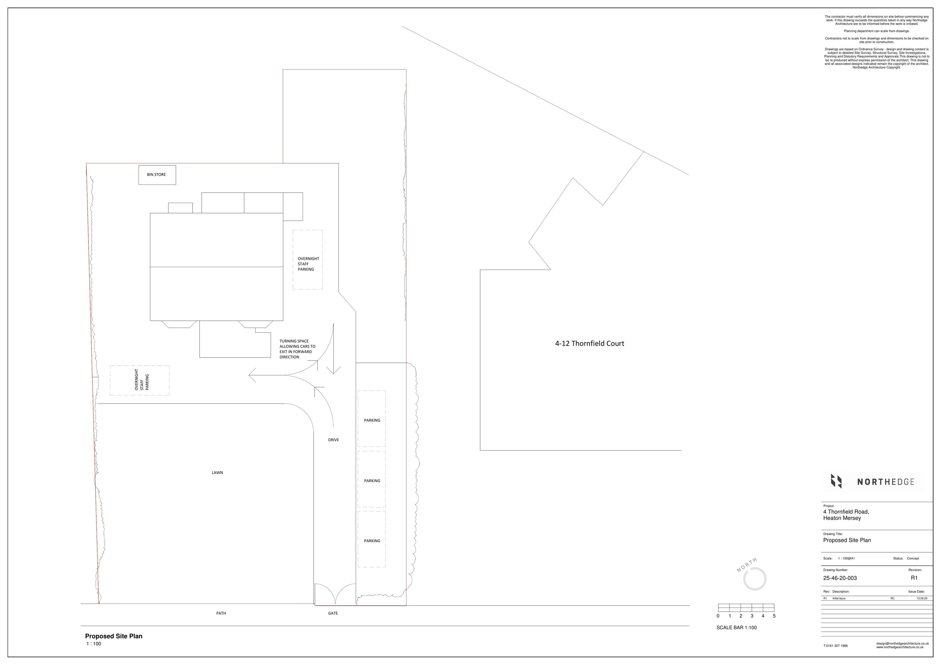
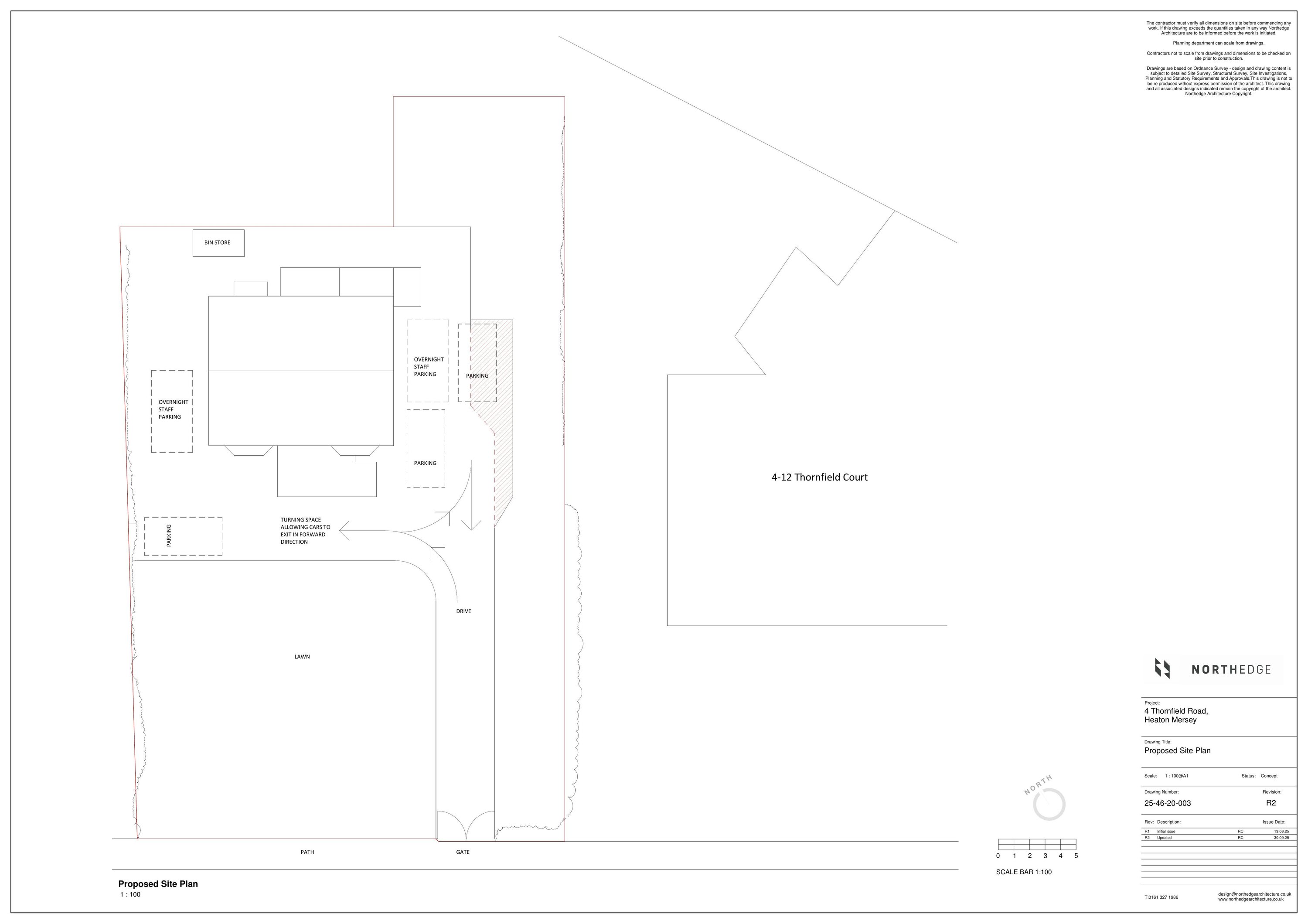
Change of use from a dwellinghouse (Use Class 3a) to a childrens home (Use Class 2) to provide accommodation for up to a maximum of 5 children aged between 6 and 18 years old, supported by 5-7 staff, 3 of whom would sleep overnight at any one time - (Amended Description of Development).

Documents

20-002 R2 PROPOSED ELEVATIONS
Plan
Not archived · Council Link
APPLICATION FORM
ApplicationNoPersonalData
Not archived · Council Link
APPLICATIONFORMREDACTED
ApplicationNoPersonalData
Not archived · Council Link
EHO NOISE COMMENTS
Consultee Comment
Not archived · Council Link
EMAIL TO AGENT
Elevation (Side) ? Proposed
Not archived · Council Link
EXISTING ELEVATIONS
Plan
Not archived · Council Link
EXISTING ELEVATIONS
Plan
Not archived · Council Link
EXISTING FLOOR PLANS
Plan
Not archived · Council Link
EXISTING FLOOR PLANS
Plan
Not archived · Council Link
Plan
Archived · Council Link
FLOOR PLANS THORNFILED
Plan
Not archived · Council Link
LOCATION PLAN
Plan
Not archived · Council Link
LOCATIONPLAN
1250 Plan
Not archived · Council Link
MANAGEMENT STATEMENT
Report
Not archived · Council Link
MANAGEMENT STATEMENT
Report
Not archived · Council Link
PRESS NOTICE
Notice
Not archived · Council Link
PROPOSED ELEVATIONS
Plan
Not archived · Council Link
PROPOSED ELEVATIONS
Plan
Not archived · Council Link
Plan
Archived · Council Link
Plan
Archived · Council Link
Plan
Archived · Council Link
Plan
Archived · Council Link

Take Action

Make your voice heard. Authorities need to hear from people who support new homes.

✉️ Write Email in Support View on Council Portal