← Back to Stockport Metropolitan Borough Council

Status

Registered
Received
09 Jun 2025
New dwellings
n/a

Full Proposal

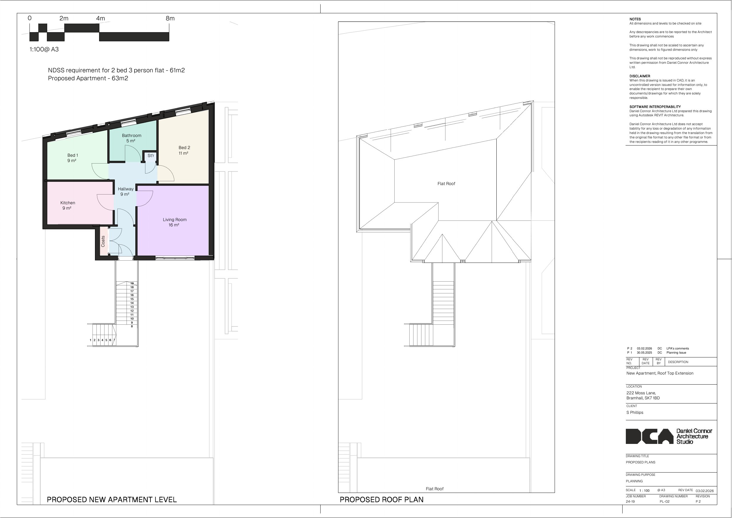
Proposal for additional storey above existing first floor apartment to create a 2 bedroom residential unit along with elevational changes above ground floor and the installation of a stairwell at the rear

Documents

APPLICATIONFORMREDACTED
ApplicationNoPersonalData
Not archived · Council Link
CONSERVATION COMMENTS
Consultee Comment
Not archived · Council Link
DESIGN AND ACCESS STATEMENT
Statement
Not archived · Council Link
ENVIRONMENTAL HEALTH COMMENTS
Consultee Comment
Not archived · Council Link
EXISTING AND PROPOSED EAST ELEVATION
Amended Plans
Not archived · Council Link
EXISTING AND PROPOSED SECTIONS
Plan
Not archived · Council Link
EXISTING ELEVATIONS
Plan
Not archived · Council Link
EXISTING FLOOR AND ROOF PLANS
Plan
Not archived · Council Link
FURTHER NATURE DEVELOPMENT COMMENTS
Consultee Comment
Not archived · Council Link
HIGHWAYS CONSULTATION RESPONSE
Consultee Comment Highways
Not archived · Council Link
L-SERIES-BIKE-LOCKERS-DATASHEET
Plan
Not archived · Council Link
NATURE DEVELOPMENT COMMENTS
Consultee Comment
Not archived · Council Link
NOISE IMPACT ASSESSMENT
Report
Not archived · Council Link
PRELIMINARY ROOST ASSESSMENT REPORT
Report
Not archived · Council Link
PRESS NOTOCE
Notice
Not archived · Council Link
PROPOSED ELEVATIONS
Amended Plans
Not archived · Council Link
Amended Plans
Archived · Council Link
Superseded Document
Archived · Council Link
UPDATED HIGHWAYS CONSULTATION RESPONSE
Consultee Comment Highways
Not archived · Council Link

Take Action

Make your voice heard. Authorities need to hear from people who support new homes.

✉️ Write Email in Support View on Council Portal