← Back to Stockport Metropolitan Borough Council

Status

Registered
Received
10 Nov 2025
New dwellings
n/a

Full Proposal

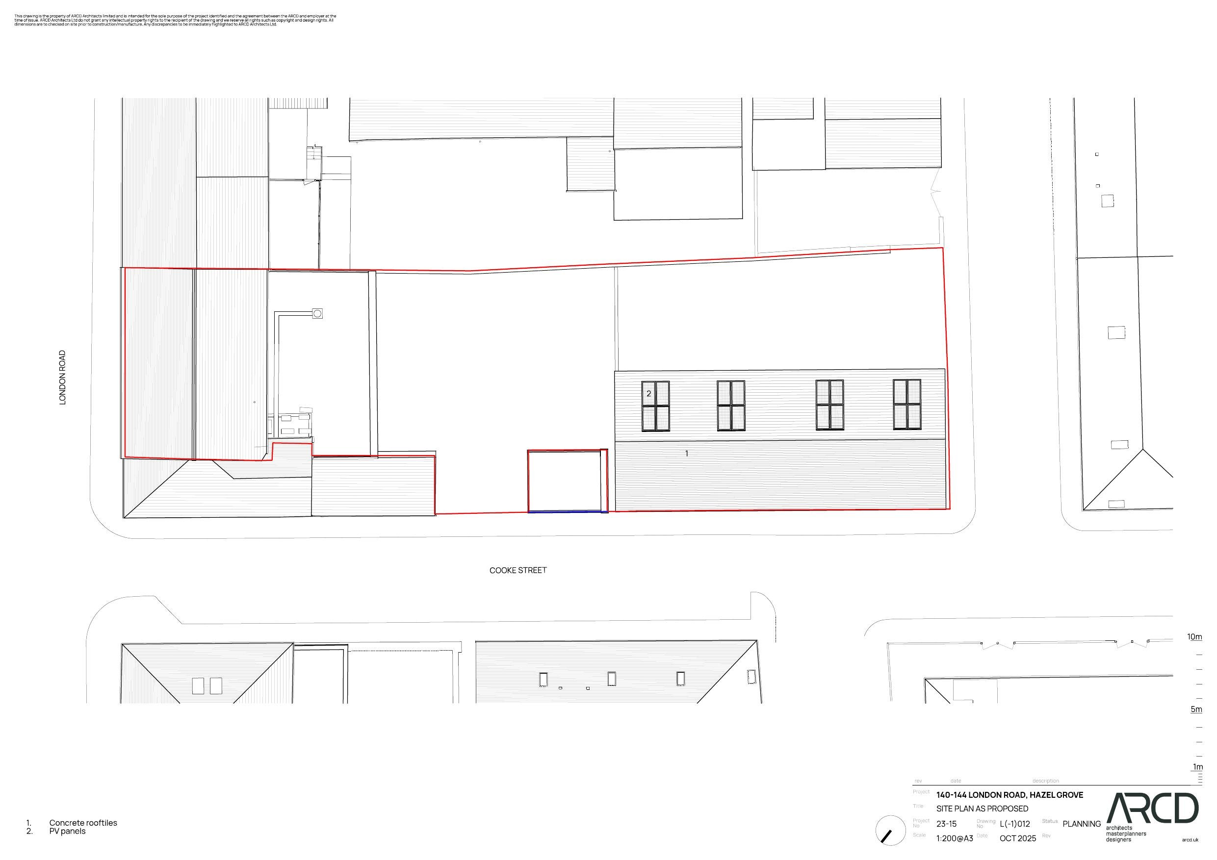
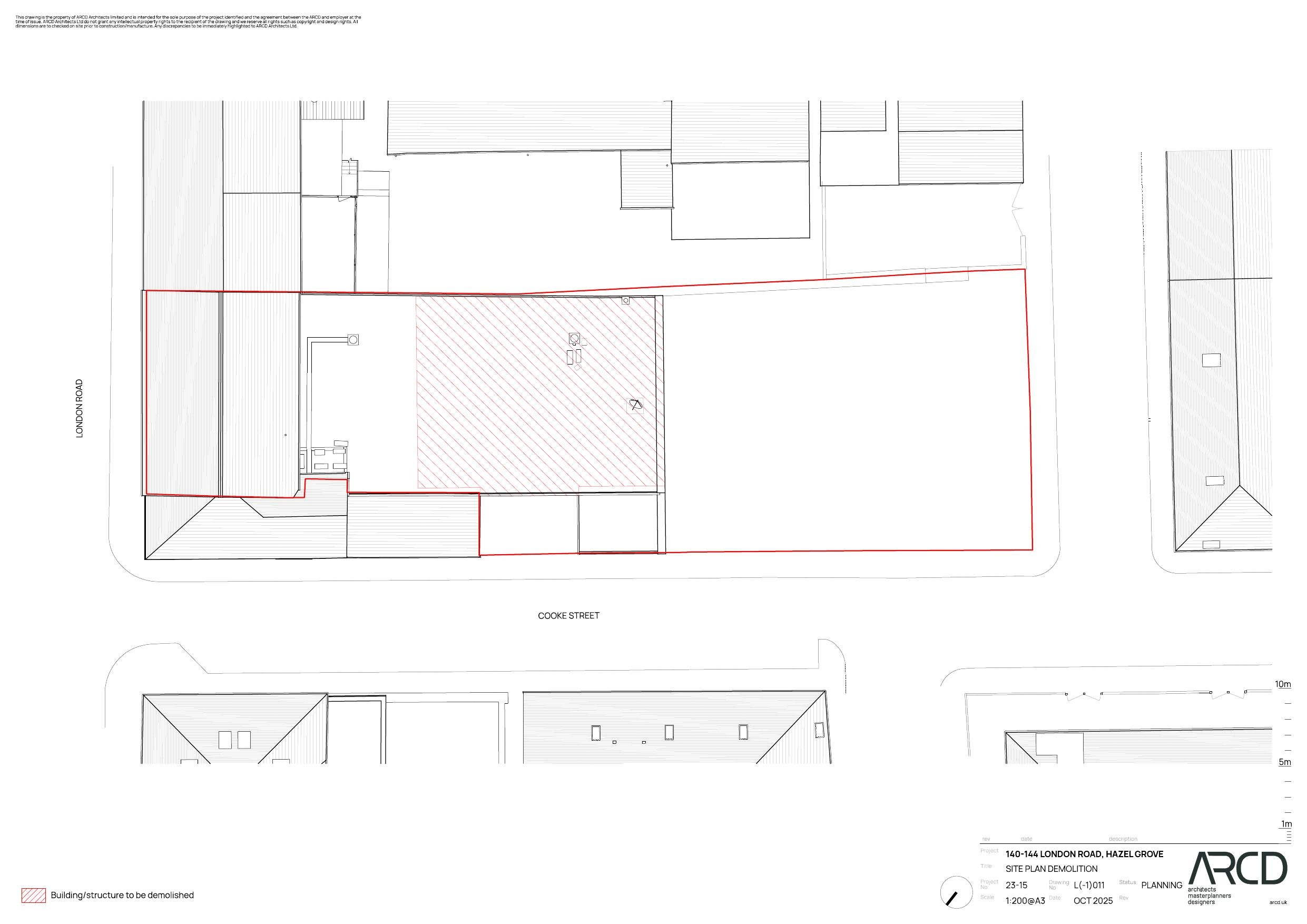
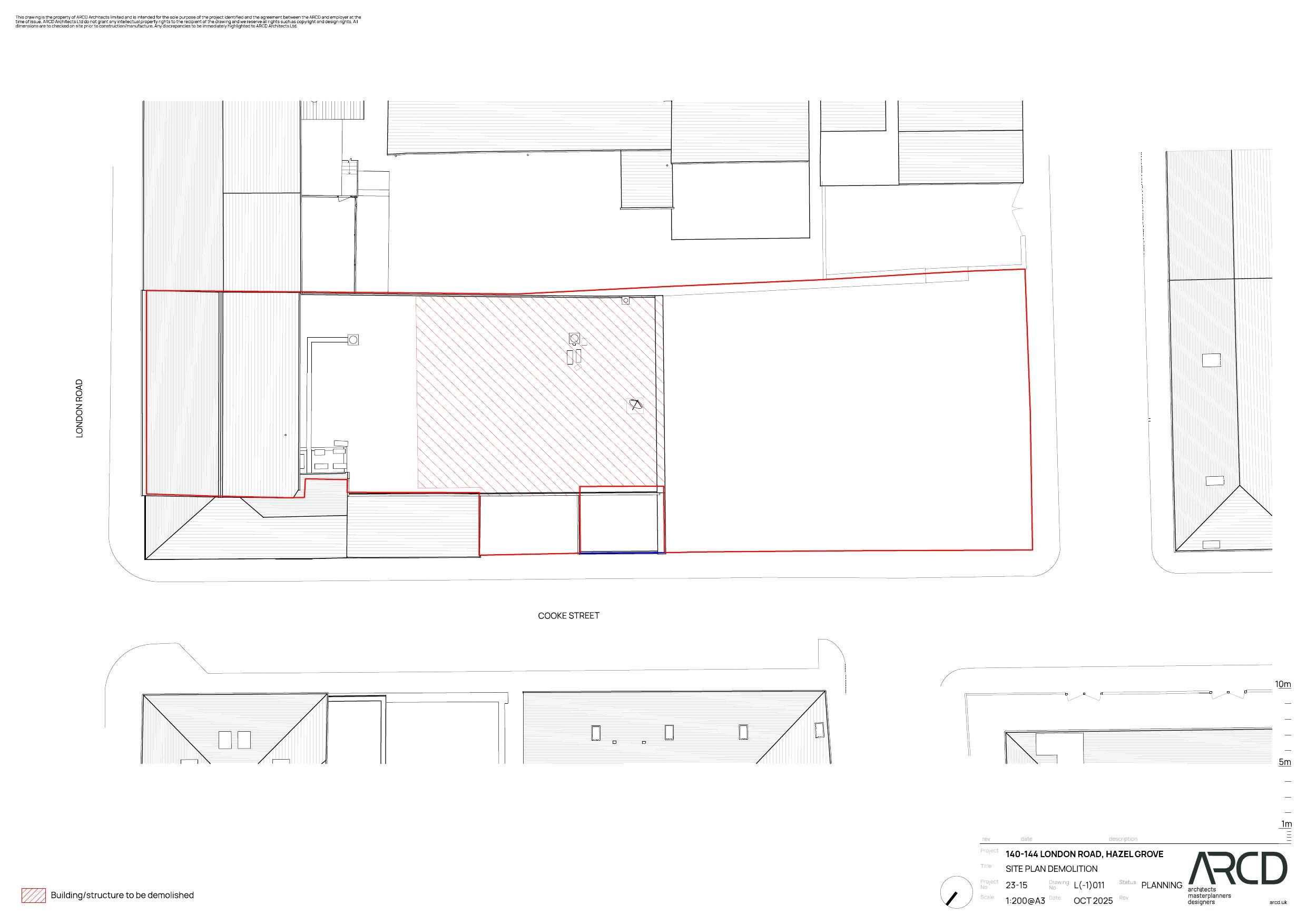
Partial demolition of single storey rear extension, conversion of existing first floor to two apartments and development of the land to the rear for four houses and a parking courtyard.

Documents

140 - 144 LONDON ROAD -DAYLIGHT ASSESSMENT REPORT
Report
Not archived · Council Link
20241001 BAT SCOPING - 140-144 LONDON ROAD
Report
Not archived · Council Link
3098-BCL-00-XX-RP-D-0001-P01 - DRAINAGE STRATEGY REPORT
Report
Not archived · Council Link
5178-HTN01 - HIGHWAYS TECHNICAL NOTE
Report
Not archived · Council Link
9382R1 - AIR QUALITY ASSESSMENT - LONDON ROAD HAZEL GROVE
Report
Not archived · Council Link
_FRONT & SIDE ELEVATION AS PROPOSED.
Plan
Not archived · Council Link
_SITE SECTIONS AS PROPOSED
Plan
Not archived · Council Link
_SITE SECTIONS AS PROPOSED.
Plan
Not archived · Council Link
APPLICATIONFORMREDACTED
ApplicationNoPersonalData
Not archived · Council Link
BIODIVERSITY_NET_GAIN_STATEMENT_FORM
Report
Not archived · Council Link
D&A_104-144 LONDON ROAD_251118.
Report
Not archived · Council Link
FINAL PLANING STATEMENT
Report
Not archived · Council Link
FIRST FLOOR AS EXISTING
Plan
Not archived · Council Link
FIRST FLOOR AS PROPOSED
Plan
Not archived · Council Link
FIRST FLOOR AS PROPOSED_HOUSING
Plan
Not archived · Council Link
GRO-24271-6043 PHASE 1 LR
Report
Not archived · Council Link
GROUND FLOOR AS PROPOSED_COMMERCIAL
Plan
Not archived · Council Link
GROUND FLOOR AS PROPOSED_HOUSING
Plan
Not archived · Council Link
Detail Drawing
Archived · Council Link
LONDON ROAD APPLICATION COVER LETTER
Report
Not archived · Council Link
P5511 - R01 - NOISE ASSESSMENT FOR PLANNING PURPOSES
Report
Not archived · Council Link
REAR & SIDE ELEVATION AS PROPOSED
Plan
Not archived · Council Link
ROOF PLAN AS PROPOSED
Plan
Not archived · Council Link
ROOF PLAN AS PROPOSED_COMMERCIAL
Plan
Not archived · Council Link
Plan
Archived · Council Link
SITE SECTION AS EXISTING
Plan
Not archived · Council Link
STREET SCENE AS EXISTING
Plan
Not archived · Council Link
STREET SCENE AS PROPOSED
Plan
Not archived · Council Link
SUBSTATION ELEVATION AS PROPOSED
Plan
Not archived · Council Link

Take Action

Make your voice heard. Authorities need to hear from people who support new homes.

✉️ Write Email in Support View on Council Portal