← Back to Stockport Metropolitan Borough Council

Status

Registered
Received
25 days ago
New dwellings
n/a

Full Proposal

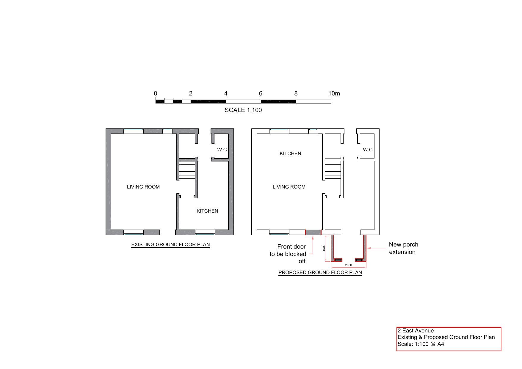
Existing house front door to be blocked up and new porch to be erected

Documents

APPLICATIONFORMREDACTED
ApplicationNoPersonalData
Not archived · Council Link
LOCATION PLAN
1250 Plan
Not archived · Council Link
Plan
Archived · Council Link

Take Action

Make your voice heard. Authorities need to hear from people who support new homes.

✉️ Write Email in Support View on Council Portal