← Back to Stockport Metropolitan Borough Council
DC/098163
Stockport Metropolitan Borough Council · IDOX
Status
Registered
Received
25 days ago
New dwellings
n/a
Full Proposal
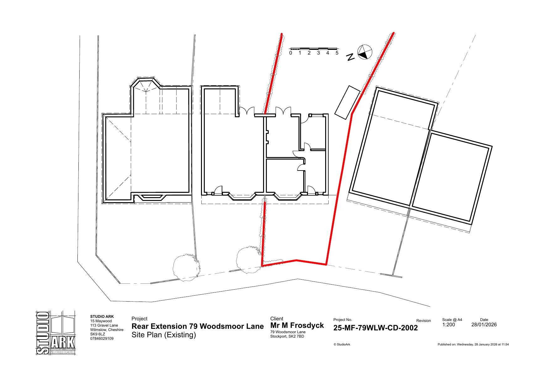
Demolition of shed at side of house and construction of new single storey pitched roof wrap around rear/side extension.
Documents
25-MF-79WLW-CD-2008 GROUND AND FIRST FLOOR (EXTENSION ROOF) PLAN (PROPOSED)
Plan
Not archived
· Council Link
Take Action
Make your voice heard. Authorities need to hear from people who support new homes.