← Back to Stockport Metropolitan Borough Council

Status

Registered
Received
17 days ago
New dwellings
n/a

Full Proposal

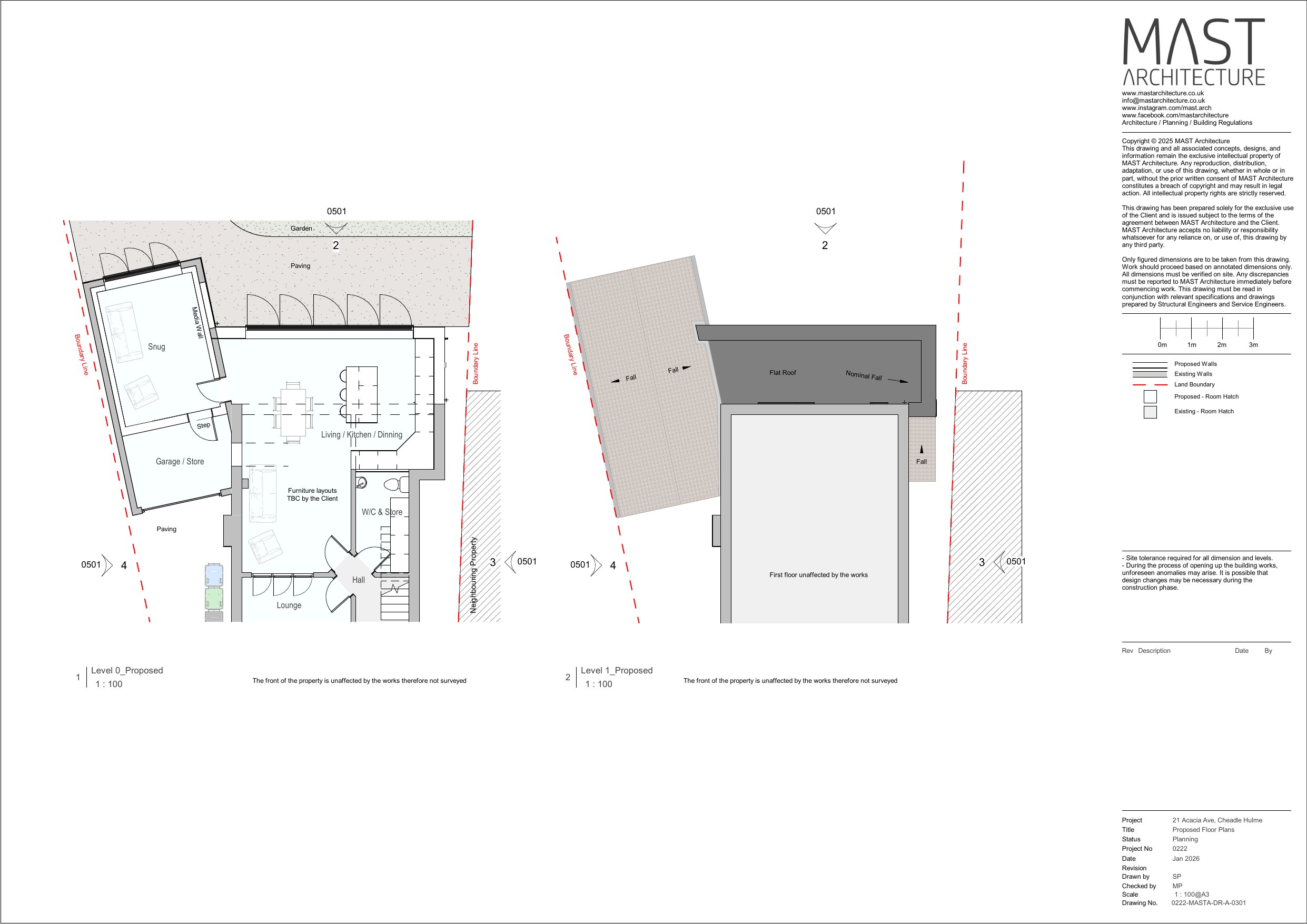
Single storey rear extension with flat roof and part garage conversion.

Documents

APPLICATIONFORMREDACTED
ApplicationNoPersonalData
Not archived · Council Link
EXISTING ELEVATIONS
Plan
Not archived · Council Link
EXISTING FLOOR PLANS
Plan
Not archived · Council Link
EXTERNAL 3D VIEWS
Plan
Not archived · Council Link
LOCATION PLAN
Plan
Not archived · Council Link
PROPOSED ELEVATIONS
Plan
Not archived · Council Link

Take Action

Make your voice heard. Authorities need to hear from people who support new homes.

✉️ Write Email in Support View on Council Portal