← Back to Stockport Metropolitan Borough Council

Status

Registered
Received
Last week
New dwellings
n/a

Full Proposal

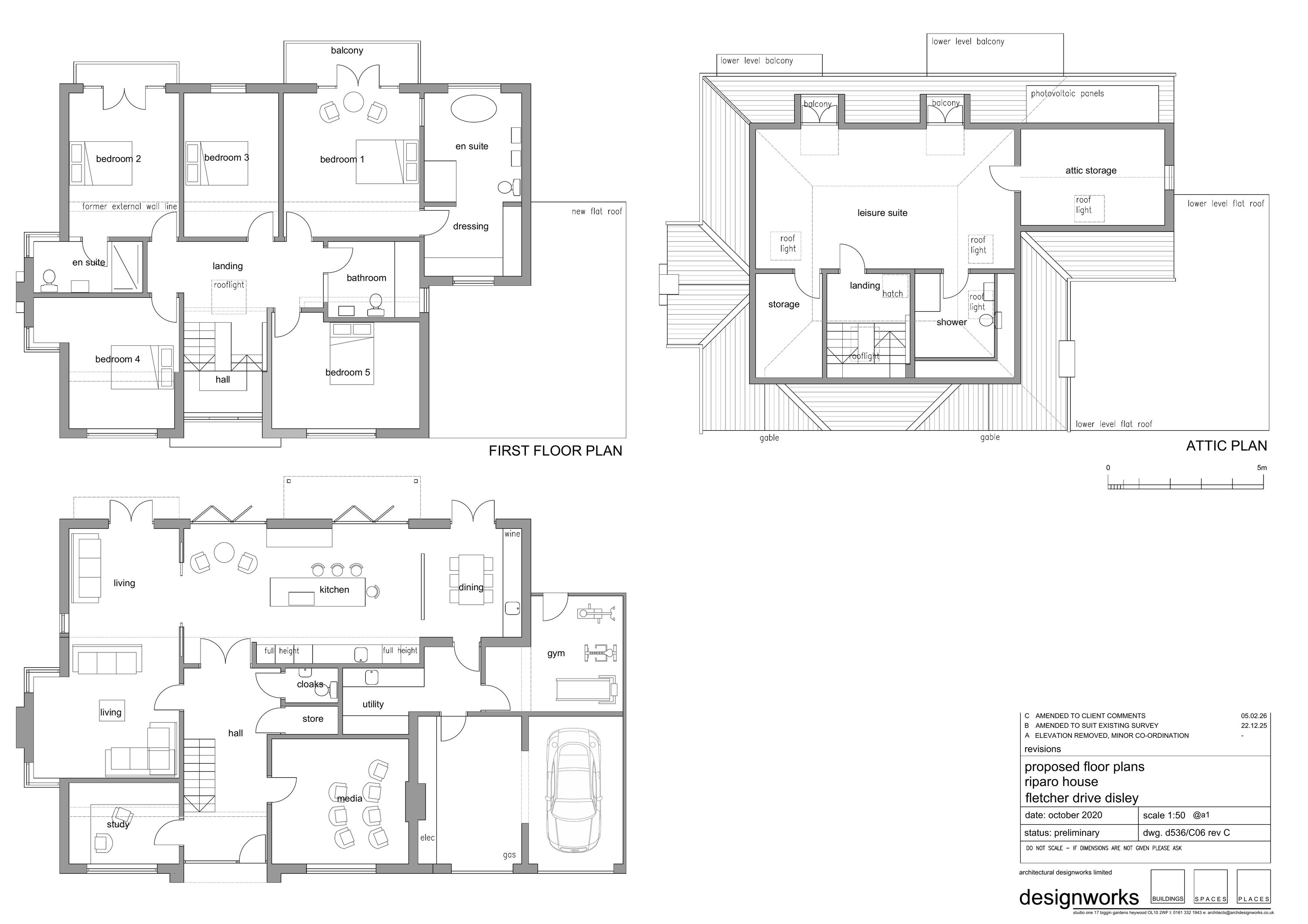
Remodelling of existing two storey dwelling with re-designed front porch, new two storey extension to front, first floor side extension and two storey rear extension, including rear balconies. Amended roof including rising of the ridge line and new roof lights. Extended patio to the rear and proposed new access to the highway at the front of the site.

Documents

APPLICATIONFORMREDACTED
ApplicationNoPersonalData
Not archived · Council Link
D536 DESIGN AND ACCESS STATEMENT REV 0
Report
Not archived · Council Link
EXISTING ELEVATIONS
Plan
Not archived · Council Link
EXISTING PLANS
Plan
Not archived · Council Link
Plan
Archived · Council Link
PROPOSED ELEVATIONS
Plan
Not archived · Council Link
Plan
Archived · Council Link
PROPOSED ROOF PLAN
Plan
Not archived · Council Link
PROPOSED SECTION
Plan
Not archived · Council Link
Plan
Archived · Council Link
PROPOSED WORKS TO DRIVE
Plan
Not archived · Council Link
1250 Plan
Archived · Council Link

Take Action

Make your voice heard. Authorities need to hear from people who support new homes.

✉️ Write Email in Support View on Council Portal