← Back to Stroud District Council

Status

Permitted
Received
17 Sep 2024
New dwellings
n/a

Full Proposal

Erection of a dwelling with parking and amenity space.

Documents

AMENDED APPLICATION FORM
Application Form
Not archived · Council Link
BIODIVERSITY GAIN PLAN
Supporting Document
Not archived · Council Link
BIODIVERSITY GAIN PLAN
Supporting Document
Not archived · Council Link
BIODIVERSITY GAIN PLAN
Supporting Document
Not archived · Council Link
BIODIVERSITY METRIC
Supporting Document
Not archived · Council Link
BNG METRICS
Supporting Document
Not archived · Council Link
DESIGN AND ACCESS STATEMENT
Design and Access Statement
Not archived · Council Link
ECOLOGICAL UPDATE AND BNG ASSESSMENT
Supporting Document
Not archived · Council Link
ECOLOGICAL UPDATES AND BNG ASSESSMENT
Supporting Document
Not archived · Council Link
GCN BEST PRACTICE PRINCIPLES
Supporting Document
Not archived · Council Link
GCN IMPACT PLAN
Drawing
Not archived · Council Link
GCN MITIGATION SUMMARY
Supporting Document
Not archived · Council Link
HERITAGE STATEMENT
Supporting Document
Not archived · Council Link
NBG SIGNED
Supporting Document
Not archived · Council Link
OFFICER REPORT - WEB
Decision
Not archived · Council Link
PERMISSION - FULL PLANNING APP
Decision
Not archived · Council Link
POST CONSTRUCTION
Drawing
Not archived · Council Link
PRE CONSTRUCTION
Drawing
Not archived · Council Link
PROPOSED ELEVATIONS
Drawing
Not archived · Council Link
PROPOSED ELEVATIONS
Drawing
Not archived · Council Link
PROPOSED FIRST FLOOR PLAN
Drawing
Not archived · Council Link
PROPOSED GROUND FLOOR PLAN
Drawing
Not archived · Council Link
PROPOSED ROOF PLAN
Drawing
Not archived · Council Link
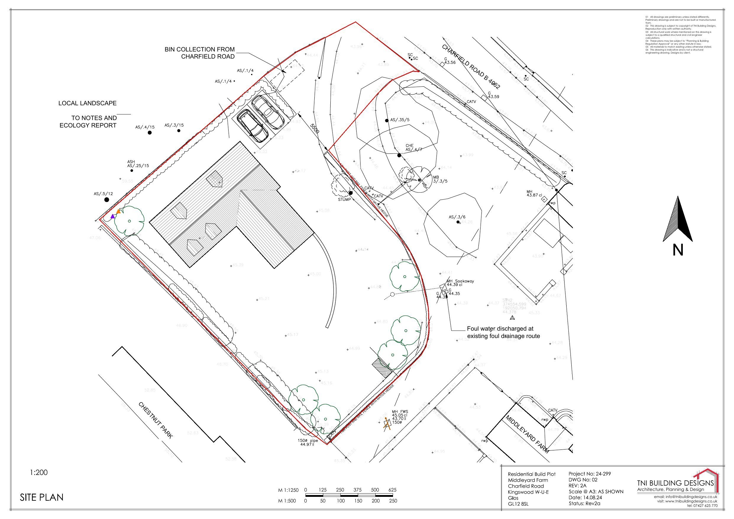
Drawing
Archived · Council Link
SCHEME OF INVESTIGATION
Supporting Document
Not archived · Council Link
SECTION 106 AGREEMENT
Section 106 Agreement
Not archived · Council Link
WESSEX WATER DRAINAGE PLAN
Drawing
Not archived · Council Link

Take Action

Make your voice heard. Authorities need to hear from people who support new homes.

✉️ Write Email in Support View on Council Portal