← Back to Stroud District Council

Status

Permitted
Received
09 Dec 2024
New dwellings
n/a

Full Proposal

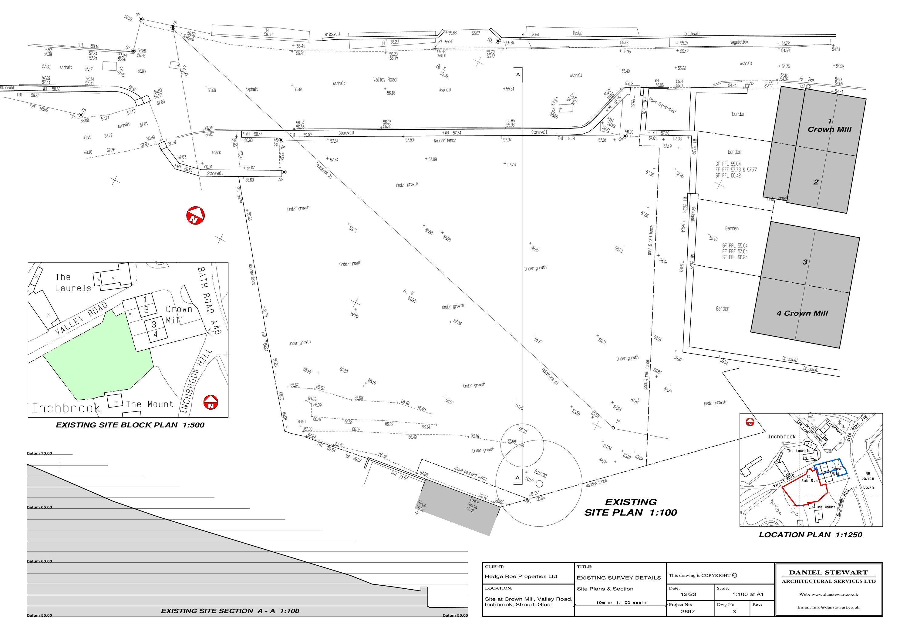
Erection of 2 self-build dwelling houses and associated parking and landscaping (Amendment to S.16/1211/FUL).

Documents

APPLICATION FORM - WITHOUT PERSONAL DATA
Application Form
Not archived · Council Link
OFFICER REPORT - WEB
Decision
Not archived · Council Link
PERMISSION - FULL PLANNING APP
Decision
Not archived · Council Link
PROPOSED EXTERIOR LIGHTING & ILLUMINANCE LAYOUT
Drawing
Not archived · Council Link
S.106 LEGAL AGREEMENT COTSWOLD BEECHWOODS MITIGATION CONTRIBUTION
Section 106 Agreement
Not archived · Council Link
S.106 LEGAL AGREEMENT SEVERN ESTUARY MITIGATION CONTRIBUTION
Section 106 Agreement
Not archived · Council Link

Take Action

Make your voice heard. Authorities need to hear from people who support new homes.

✉️ Write Email in Support View on Council Portal