← Back to Stroud District Council

Status

Awaiting decision
Received
28 Feb 2025
New dwellings
n/a

Summary

Redevelopment delivering 105 dwellings, commercial space and pedestrian crossing on London Road.

Full Proposal

Redevelopment of site to deliver 105 new dwellings through conversion of existing buildings and new build. Provision of commercial space (use class E), construction of pedestrian crossing on London Road and associated works

Documents

2 CLARENDON VILLAS
Public Comment
Not archived · Council Link
APPLICATION FORM
Application Form
Not archived · Council Link
APT BUILDING A - PROPOSED GROUND & FIRST FLOOR PLANS
Drawing
Not archived · Council Link
APT BUILDING A - PROPOSED NORTH WEST & SOUTH WEST ELEVATIONS
Drawing
Not archived · Council Link
APT BUILDING A - PROPOSED ROOF PLAN
Drawing
Not archived · Council Link
APT BUILDING A - PROPOSED SECOND & THIRD FLOOR PLANS
Drawing
Not archived · Council Link
APT BUILDING A - PROPOSED SOUTH EAST & NORTH EAST ELEVATIONS
Drawing
Not archived · Council Link
APT BUILDING A PROPOSED ROOF PLANROOF PLAN
Drawing
Not archived · Council Link
APT BUILDING B - PROPOSED GROUND & FIRST FLOOR PLANS
Drawing
Not archived · Council Link
APT BUILDING B - PROPOSED NORTH WEST & SOUTH WEST ELEVATIONS
Drawing
Not archived · Council Link
APT BUILDING B - PROPOSED ROOF PLAN
Drawing
Not archived · Council Link
APT BUILDING B - PROPOSED SECOND & THIRD FLOOR PLANS
Drawing
Not archived · Council Link
APT BUILDING B - PROPOSED SOUTH EAST & NORTH EAST ELEVATIONS
Drawing
Not archived · Council Link
APT BUILDING B PROPOSED ROOF PLAN
Drawing
Not archived · Council Link
APT BUILDING C - PROPOSED GROUND & FIRST FLOOR PLANS
Drawing
Not archived · Council Link
APT BUILDING C - PROPOSED NORTH WEST & SOUTH WEST ELEVATIONS
Drawing
Not archived · Council Link
APT BUILDING C - PROPOSED ROOF PLAN
Drawing
Not archived · Council Link
APT BUILDING C - PROPOSED SECOND & THIRD FLOOR PLANS
Drawing
Not archived · Council Link
APT BUILDING C - PROPOSED SOUTH EAST & NORTH EAST ELEVATIONS
Drawing
Not archived · Council Link
APT BUILDING C PROPOSED ROOF PLANS
Drawing
Not archived · Council Link
APT BUILDING D - PROPOSED GROUND & FIRST FLOOR PLANS
Drawing
Not archived · Council Link
APT BUILDING D - PROPOSED NORTH WEST & SOUTH WEST ELEVATIONS
Drawing
Not archived · Council Link
APT BUILDING D - PROPOSED ROOF PLAN
Drawing
Not archived · Council Link
APT BUILDING D - PROPOSED SECOND & THIRD FLOOR PLANS
Drawing
Not archived · Council Link
APT BUILDING D - PROPOSED SOUTH EAST & NORTH EAST ELEVATIONS
Drawing
Not archived · Council Link
APT BUILDING D PROPOSED ROOF PLAN
Drawing
Not archived · Council Link
ARBORICULTURAL IMPACT ASSESSMENT
Report
Not archived · Council Link
ARCHAEOLOGICAL UPDATE APPRAISAL
Report
Not archived · Council Link
BIODIVERSITY NET GAIN METRIC
Other
Not archived · Council Link
BIODIVERSITY NET GAIN STATEMENT AND ASSESSMENT
Report
Not archived · Council Link
BIODIVERSITY NET GAIN STATEMENT AND ASSESSMENT
Report
Not archived · Council Link
BIODIVERSITY NET GAIN STATEMENT AND ASSESSMENT
Report
Not archived · Council Link
BNG OFFICER
Consultee Comment
Not archived · Council Link
BNG OFFICER
Consultee Comment
Not archived · Council Link
BOUNDARY TREATMENTS
Drawing
Not archived · Council Link
BOUNDARY TREATMENTS
Drawing
Not archived · Council Link
BRIMSCOMBE AND THRUPP PARISH COUNCIL
Consultee Comment
Not archived · Council Link
BROOKVILLE
Public Comment
Not archived · Council Link
BUILDING A - PROPOSED NW & SW ELEVATIONS
Drawing
Not archived · Council Link
BUILDING A - PROPOSED SE & NE ELEVATIONS
Drawing
Not archived · Council Link
BUILDING A - PROPOSED SF & TF PLANS
Drawing
Not archived · Council Link
BUILDING A ? PROPOSED GF & FF PLANS
Drawing
Not archived · Council Link
BUILDING A EXISTING ELEVATIONS
Drawing
Not archived · Council Link
BUILDING A EXISTING GROUND FLOOR PLAN
Drawing
Not archived · Council Link
BUILDING B - PROPOSED GF & FF PLANS
Drawing
Not archived · Council Link
BUILDING B - PROPOSED NW & SW ELEVATIONS
Drawing
Not archived · Council Link
BUILDING B - PROPOSED SE & NE ELEVATIONS
Drawing
Not archived · Council Link
BUILDING B - PROPOSED SF & TF PLANS
Drawing
Not archived · Council Link
BUILDING B EXISTING ELEVATIONS
Drawing
Not archived · Council Link
BUILDING B EXISTING GROUND FLOOR PLAN
Drawing
Not archived · Council Link
BUILDING C - EXISTING ELEVATIONS
Drawing
Not archived · Council Link
BUILDING C - EXISTING PLANS
Drawing
Not archived · Council Link
BUILDING C - PROPOSED ELEVATIONS
Drawing
Not archived · Council Link
BUILDING C - PROPOSED GF & FF PLANS
Drawing
Not archived · Council Link
BUILDING C - PROPOSED NW & SW ELEVATIONS
Drawing
Not archived · Council Link
BUILDING C - PROPOSED SE & NE ELEVATIONS
Drawing
Not archived · Council Link
BUILDING C - PROPOSED SF & TF PLANS
Drawing
Not archived · Council Link
BUILDING D - PROPOSED NW & SW ELEVATIONS
Drawing
Not archived · Council Link
BUILDING D - PROPOSED SE & NE ELEVATIONS
Drawing
Not archived · Council Link
BUILDING D - PROPOSED SECOND & THIRD FLOOR PLANS
Drawing
Not archived · Council Link
BUILDING D ? PROPOSED GF & FF PLAN
Drawing
Not archived · Council Link
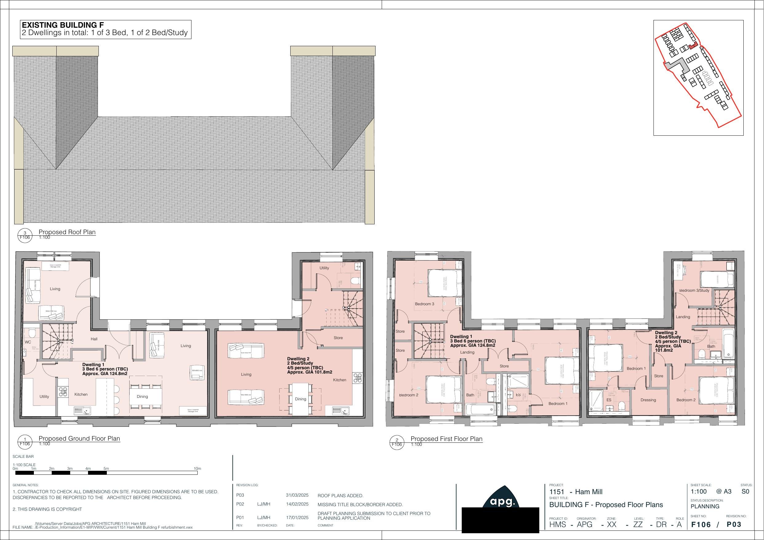
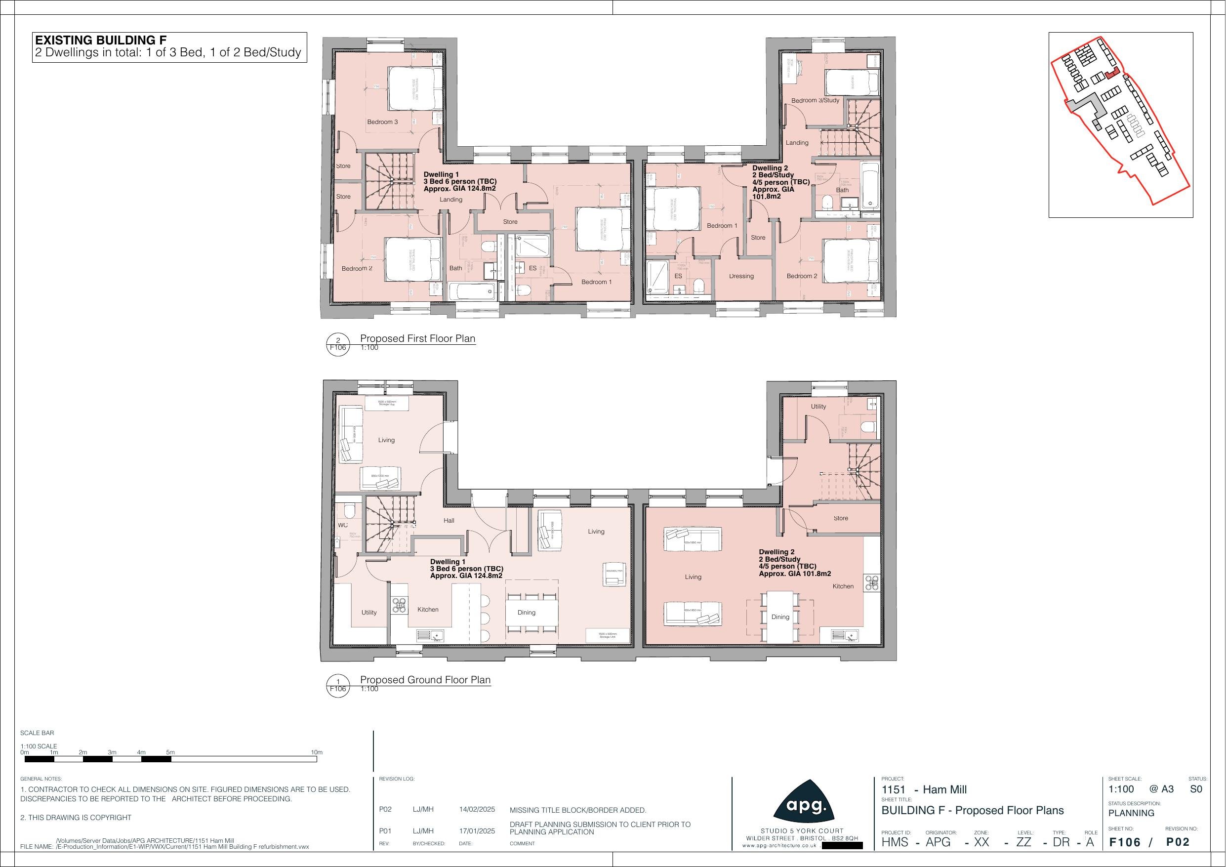
BUILDING F - EXISTING ELEVATIONS
Drawing
Not archived · Council Link
BUILDING F - EXISTING PLANS
Drawing
Not archived · Council Link
BUILDING F - PROPOSED ELEVATIONS
Drawing
Not archived · Council Link
BUILDING F EXISTING PLANS & ELEVATIONS
Drawing
Not archived · Council Link
BUILDING F EXISTING ROOF PLAN
Drawing
Not archived · Council Link
BUILDING G - EXISTING PLANS & ELEVATIONS
Drawing
Not archived · Council Link
BUILDING G EXISTING PLANS & ELEVATIONS
Drawing
Not archived · Council Link
BUILDING G EXISTING PLANS & ELEVATIONS
Drawing
Not archived · Council Link
BUILDING M - EXISTING FIRST FLOOR PLAN
Drawing
Not archived · Council Link
BUILDING M - EXISTING FOURTH FLOOR PLAN
Drawing
Not archived · Council Link
BUILDING M - EXISTING GROUND FLOOR PLAN
Drawing
Not archived · Council Link
BUILDING M - EXISTING NE ELEVATION
Drawing
Not archived · Council Link
BUILDING M - EXISTING NW ELEVATION
Drawing
Not archived · Council Link
BUILDING M - EXISTING ROOF PLAN
Drawing
Not archived · Council Link
BUILDING M - EXISTING SE ELEVATION
Drawing
Not archived · Council Link
BUILDING M - EXISTING SECOND FLOOR PLAN
Drawing
Not archived · Council Link
BUILDING M - EXISTING SW ELEVATION
Drawing
Not archived · Council Link
BUILDING M - EXISTING THIRD FLOOR PLAN
Drawing
Not archived · Council Link
BUILDING M - PROPOSED FF PLAN
Drawing
Not archived · Council Link
BUILDING M - PROPOSED FOURTH FLOOR PLAN
Drawing
Not archived · Council Link
BUILDING M - PROPOSED GF PLAN
Drawing
Not archived · Council Link
BUILDING M - PROPOSED NE ELEVATION
Drawing
Not archived · Council Link
BUILDING M - PROPOSED NW ELEVATION
Drawing
Not archived · Council Link
BUILDING M - PROPOSED ROOF PLAN
Drawing
Not archived · Council Link
BUILDING M - PROPOSED SE ELEVATION
Drawing
Not archived · Council Link
BUILDING M - PROPOSED SECTION C-C & PARTIAL NW ELEVATION
Drawing
Not archived · Council Link
BUILDING M - PROPOSED SF PLAN
Drawing
Not archived · Council Link
BUILDING M - PROPOSED SW ELEVATION
Drawing
Not archived · Council Link
BUILDING M - PROPOSED TF PLAN
Drawing
Not archived · Council Link
BUILDINGS M & D - EXISTING FIRST FLOOR PLAN
Revised Drawing
Not archived · Council Link
BUILDINGS M & D - EXISTING FOURTH FLOOR PLAN
Revised Drawing
Not archived · Council Link
BUILDINGS M & D - EXISTING GROUND FLOOR PLAN
Revised Drawing
Not archived · Council Link
BUILDINGS M & D - EXISTING NORTH EAST ELEVATION
Revised Drawing
Not archived · Council Link
BUILDINGS M & D - EXISTING NORTH WEST ELEVATION
Revised Drawing
Not archived · Council Link
BUILDINGS M & D - EXISTING ROOF PLAN
Revised Drawing
Not archived · Council Link
BUILDINGS M & D - EXISTING SECOND FLOOR PLAN
Revised Drawing
Not archived · Council Link
BUILDINGS M & D - EXISTING SOUTH EAST ELEVATION
Revised Drawing
Not archived · Council Link
BUILDINGS M & D - EXISTING SOUTH WEST ELEVATION
Revised Drawing
Not archived · Council Link
BUILDINGS M & D - EXISTING THIRD FLOOR PLAN
Revised Drawing
Not archived · Council Link
BUILDINGS M & D - PROPOSED FIRST FLOOR PLAN
Revised Drawing
Not archived · Council Link
BUILDINGS M & D - PROPOSED FOURTH FLOOR PLAN
Revised Drawing
Not archived · Council Link
BUILDINGS M & D - PROPOSED GROUND FLOOR PLAN
Revised Drawing
Not archived · Council Link
BUILDINGS M & D - PROPOSED NORTH EAST ELEVATION
Revised Drawing
Not archived · Council Link
BUILDINGS M & D - PROPOSED NORTH WEST ELEVATION
Revised Drawing
Not archived · Council Link
BUILDINGS M & D - PROPOSED ROOF PLAN
Revised Drawing
Not archived · Council Link
BUILDINGS M & D - PROPOSED SECOND FLOOR PLAN
Revised Drawing
Not archived · Council Link
BUILDINGS M & D - PROPOSED SECTION C-C + PARTIAL NW ELEVATION
Revised Drawing
Not archived · Council Link
BUILDINGS M & D - PROPOSED SOUTH EAST ELEVATION
Revised Drawing
Not archived · Council Link
BUILDINGS M & D - PROPOSED SOUTH WEST ELEVATION
Revised Drawing
Not archived · Council Link
BUILDINGS M & D - PROPOSED THIRD FLOOR PLAN
Revised Drawing
Not archived · Council Link
BUILT HERITAGE STATEMENT PART 1
Report
Not archived · Council Link
BUILT HERITAGE STATEMENT PART 2
Report
Not archived · Council Link
BUILT HERITAGE STATEMENT PART 3
Report
Not archived · Council Link
CAPTAINS
Public Comment
Not archived · Council Link
CAPTAINS
Public Comment
Not archived · Council Link
CNL
Consultee Comment
Not archived · Council Link
COMPENSATORY STORAGE & POST-DEVELOPMENT MODELLING TECH. NOTE V1.0
Report
Not archived · Council Link
CONTAMINATED LAND OFFICER
Consultee Comment
Not archived · Council Link
CONTAMINATED LAND OFFICER
Consultee Comment
Not archived · Council Link
COTSWOLD NATURAL LANDSCAPE COMMENT
Consultee Comment
Not archived · Council Link
CULVERT CONDITION SURVEY FINAL REPORT
Report
Not archived · Council Link
DESIGN AND ACCESS STATEMENT 1
Design and Access Statement
Not archived · Council Link
DESIGN AND ACCESS STATEMENT 2
Design and Access Statement
Not archived · Council Link
DESIGN AND ACCESS STATEMENT 3
Design and Access Statement
Not archived · Council Link
DESIGN AND ACCESS STATEMENT 4
Design and Access Statement
Not archived · Council Link
EA COMMENT
Consultee Comment
Not archived · Council Link
EA CONSULTATION FORM
Correspondence
Not archived · Council Link
ECOLOGICAL IMPACT ASSESSMENT
Report
Not archived · Council Link
ECOLOGICAL IMPACT ASSESSMENT
Report
Not archived · Council Link
ECOLOGY LAYOUT
Drawing
Not archived · Council Link
ECOLOGY LAYOUT
Drawing
Not archived · Council Link
ENGINEERING LAYOUT
Drawing
Not archived · Council Link
ENVIRONMENTAL HEALTH
Consultee Comment
Not archived · Council Link
ENVIRONMENTAL HEALTH
Consultee Comment
Not archived · Council Link
EXISTING GROUND FLOOR PLAN
Drawing
Not archived · Council Link
EXISTING ROOF PLAN
Drawing
Not archived · Council Link
EXISTING SITE ELEVATIONS
Drawing
Not archived · Council Link
FINANCIAL VIABILITY ASSESSMENT
Report
Not archived · Council Link
FINANCIAL VIABILITY ASSESSMENT
Report
Not archived · Council Link
FLOOD RISK ASSESSMENT
Drawing
Not archived · Council Link
FLOOD RISK ASSESSMENT & DEVELOPMENT DRAINAGE STRATEGY APPENDIX C
Report
Not archived · Council Link
FLOOD RISK ASSESSMENT & DEVELOPMENT DRAINAGE STRATEGY APPENDIX F
Report
Not archived · Council Link
FLOOD RISK ASSESSMENT & DRAINAGE STRATEGY
Report
Not archived · Council Link
FLOOD RISK ASSESSMENT & DRAINAGE STRATEGY
Report
Not archived · Council Link
FLOOD RISK ASSESSMENT & DRAINAGE STRATEGY
Report
Not archived · Council Link
FLOOD RISK ASSESSMENT & DRAINAGE STRATEGY PART 1
Report
Not archived · Council Link
FRA - TECHNICAL NOTE
Other
Not archived · Council Link
FRA APPENDIX A, B, C, D
Report
Not archived · Council Link
FRA APPENDIX E
Report
Not archived · Council Link
FRA APPENDIX F & G
Report
Not archived · Council Link
FRA APPENDIX H, I, J
Report
Not archived · Council Link
GCC ARCHAEOLOGIST COMMENT
Consultee Comment
Not archived · Council Link
GCC COMMUNITY INFRASTRUCTURE EDUCATION
Consultee Comment
Not archived · Council Link
GCC HIGHWAYS
Consultee Comment
Not archived · Council Link
GCC HIGHWAYS
Consultee Comment
Not archived · Council Link
GCC HIGHWAYS COMMENT
Consultee Comment
Not archived · Council Link
GCC HIGHWAYS: ROAD SAFETY AUDIT BRIEF
Consultee Comment
Not archived · Council Link
GCC LEAD LOCAL FLOOD AUTHORITY
Consultee Comment
Not archived · Council Link
GCC LLFA
Consultee Comment
Not archived · Council Link
GCC M & W
Consultee Comment
Not archived · Council Link
HAM HOUSE
Public Comment
Not archived · Council Link
HAM HOUSE
Public Comment
Not archived · Council Link
HAM HOUSE
Public Comment
Not archived · Council Link
HAM HOUSE
Public Comment
Not archived · Council Link
HISTORIC ENGLAND
Report
Not archived · Council Link
HISTORIC ENGLAND
Consultee Comment
Not archived · Council Link
HORIZONTAL ILLUMINANCE
Drawing
Not archived · Council Link
HOUSE TYPE A (2B/4P) - ELEVATIONS
Drawing
Not archived · Council Link
HOUSE TYPE A (2B/4P) - FLOOR PLANS
Drawing
Not archived · Council Link
HOUSE TYPE A (2B/4P) FLOOR PLANS
Drawing
Not archived · Council Link
HOUSE TYPE A (2B/4P) FLOOR PLANS
Drawing
Not archived · Council Link
HOUSE TYPE B (3B/6P) - ELEVATIONS
Drawing
Not archived · Council Link
HOUSE TYPE B (3B/6P) - FLOOR PLANS
Drawing
Not archived · Council Link
HOUSE TYPE B (3B/6P) FLOOR PLANS
Drawing
Not archived · Council Link
HOUSE TYPE C (3B/6P) - ELEVATIONS
Drawing
Not archived · Council Link
HOUSE TYPE C (3B/6P) - FLOOR PLANS
Drawing
Not archived · Council Link
HOUSE TYPE C (3B/6P) FLOOR PLANS
Drawing
Not archived · Council Link
HOUSE TYPE D (2B/4P) - ELEVATIONS
Drawing
Not archived · Council Link
HOUSE TYPE D (2B/4P) - FLOOR PLANS
Drawing
Not archived · Council Link
HOUSE TYPE D (2B/4P) FLOOR PLANS
Drawing
Not archived · Council Link
HOUSE TYPE E (3B/6P) - ELEVATIONS
Drawing
Not archived · Council Link
HOUSE TYPE E (3B/6P) - FLOOR PLANS
Drawing
Not archived · Council Link
HOUSE TYPE E (3B/6P) FLOOR PLANS
Drawing
Not archived · Council Link
HOUSE TYPE F (2B/4P) - ELEVATIONS
Drawing
Not archived · Council Link
HOUSE TYPE F (2B/4P) - FLOOR PLANS
Drawing
Not archived · Council Link
HOUSE TYPE F (2B/4P) FLOOR PLANS
Drawing
Not archived · Council Link
HOUSE TYPE G (3B/5P) - FLOOR PLANS
Drawing
Not archived · Council Link
HOUSE TYPE G [3B/5P] - ELEVATIONS
Drawing
Not archived · Council Link
HOUSE TYPE H (3B/5P) FLOOR PLANS
Drawing
Not archived · Council Link
HOUSE TYPE H [3B/5P] - FLOOR PLANS
Drawing
Not archived · Council Link
HOUSE TYPE H [3B/5P] ? ELEVATIONS
Drawing
Not archived · Council Link
HOUSE TYPE I (3B/5P) FLOOR PLANS
Drawing
Not archived · Council Link
HOUSE TYPE I [3B/5P] - ELEVATIONS
Drawing
Not archived · Council Link
HOUSE TYPE I [3B/5P] - FLOOR PLANS
Drawing
Not archived · Council Link
HSE
Consultee Comment
Not archived · Council Link
ILLUSTRATED MASTERPLAN
Drawing
Not archived · Council Link
LIGHTING BASELINE SURVEY
Report
Not archived · Council Link
LIGHTING STRATEGY
Report
Not archived · Council Link
NATURAL ENGLAND
Consultee Comment
Not archived · Council Link
NETWORK RAIL
Consultee Comment
Not archived · Council Link
NON-DOMESTIC BUILDING SUSTAINABLE CONSTRUCTION & DESIGN CHECKLIST
Other
Not archived · Council Link
OSBOURNE TERRACE
Public Comment
Not archived · Council Link
OUTDOOR LIGHTING REPORT
Report
Not archived · Council Link
PARISH CONSULTATION LETTER WEB
Correspondence
Not archived · Council Link
PARKING PLAN WITH SCHEDULE OF ACCOMMODATION
Drawing
Not archived · Council Link
PARKING PLAN WITH SCHEDULE OF ACCOMMODATION
Drawing
Not archived · Council Link
PHASE II GROUND INVESTIGATION REPORT
Report
Not archived · Council Link
PLANNING STATEMENT
Report
Not archived · Council Link
PROPOSED ACCESS ARRANGEMENTS
Drawing
Not archived · Council Link
PROW COMMENT
Consultee Comment
Not archived · Council Link
REVISED CONSULTATION VIA EMAIL
Correspondence
Not archived · Council Link
REVISED CONSULTATION VIA EMAIL
Correspondence
Not archived · Council Link
REVISED CONSULTATION VIA EMAIL
Correspondence
Not archived · Council Link
REVISED CONSULTATION VIA EMAIL
Correspondence
Not archived · Council Link
REVISED CONSULTATION VIA EMAIL
Correspondence
Not archived · Council Link
REVISED CONSULTATION VIA EMAIL
Correspondence
Not archived · Council Link
REVISED CONSULTATION VIA EMAIL
Correspondence
Not archived · Council Link
REVISED CONSULTATION VIA EMAIL
Correspondence
Not archived · Council Link
REVISED CONSULTATION VIA EMAIL
Correspondence
Not archived · Council Link
REVISED CONSULTATION VIA EMAIL
Correspondence
Not archived · Council Link
REVISED CONSULTATION VIA EMAIL
Correspondence
Not archived · Council Link
REVISED CONSULTATION VIA EMAIL
Correspondence
Not archived · Council Link
REVISED CONSULTATION VIA EMAIL
Correspondence
Not archived · Council Link
REVISED CONSULTATION VIA EMAIL
Correspondence
Not archived · Council Link
REVISED CONSULTATION VIA EMAIL
Correspondence
Not archived · Council Link
REVISED CONSULTATION VIA EMAIL
Correspondence
Not archived · Council Link
REVISED CONSULTATION VIA EMAIL
Correspondence
Not archived · Council Link
ROAD LONGITUDINAL SECTIONS
Drawing
Not archived · Council Link
ROAD SAFETY AUDIT
Report
Not archived · Council Link
SEVERN RIVER TRUST
Public Comment
Not archived · Council Link
SEVERN TRENT
Consultee Comment
Not archived · Council Link
SITE NOTICE NOV 17
Correspondence
Not archived · Council Link
SOFT LANDSCAPE PLAN 1
Drawing
Not archived · Council Link
SOFT LANDSCAPE PLAN 1
Drawing
Not archived · Council Link
SOFT LANDSCAPE PLAN 2
Drawing
Not archived · Council Link
SOFT LANDSCAPE PLAN 2
Drawing
Not archived · Council Link
SOUCHEZ
Public Comment
Not archived · Council Link
SOUCHEZ
Public Comment
Not archived · Council Link
STANDARD CONSULTATION LETTER
Correspondence
Not archived · Council Link
STANDARD CONSULTATION VIA EMAIL
Correspondence
Not archived · Council Link
STANDARD CONSULTATION VIA EMAIL
Correspondence
Not archived · Council Link
STANDARD CONSULTATION VIA EMAIL
Correspondence
Not archived · Council Link
STANDARD CONSULTATION VIA EMAIL
Correspondence
Not archived · Council Link
STANDARD CONSULTATION VIA EMAIL
Correspondence
Not archived · Council Link
STANDARD CONSULTATION VIA EMAIL
Correspondence
Not archived · Council Link
STANDARD CONSULTATION VIA EMAIL
Correspondence
Not archived · Council Link
STANDARD CONSULTATION VIA EMAIL
Correspondence
Not archived · Council Link
STANDARD CONSULTATION VIA EMAIL
Correspondence
Not archived · Council Link
STANDARD CONSULTATION VIA EMAIL
Correspondence
Not archived · Council Link
STANDARD CONSULTATION VIA EMAIL
Correspondence
Not archived · Council Link
STANDARD CONSULTATION VIA EMAIL
Correspondence
Not archived · Council Link
STANDARD CONSULTATION VIA EMAIL
Correspondence
Not archived · Council Link
STANDARD CONSULTATION VIA EMAIL
Correspondence
Not archived · Council Link
STANDARD CONSULTATION VIA EMAIL
Correspondence
Not archived · Council Link
STANDARD CONSULTATION VIA EMAIL
Correspondence
Not archived · Council Link
STANDARD CONSULTATION VIA EMAIL
Correspondence
Not archived · Council Link
STANDARD CONSULTATION VIA EMAIL
Correspondence
Not archived · Council Link
STANDARD CONSULTATION VIA EMAIL
Correspondence
Not archived · Council Link
STANDARD CONSULTATION VIA EMAIL
Correspondence
Not archived · Council Link
STANDARD CONSULTATION VIA EMAIL
Correspondence
Not archived · Council Link
STANDARD CONSULTATION VIA EMAIL
Correspondence
Not archived · Council Link
STANDARD CONSULTATION VIA EMAIL
Correspondence
Not archived · Council Link
STANDARD CONSULTATION VIA EMAIL
Correspondence
Not archived · Council Link
STANDARD CONSULTATION VIA EMAIL
Correspondence
Not archived · Council Link
STANDARD CONSULTATION VIA EMAIL
Correspondence
Not archived · Council Link
STANDARD CONSULTATION VIA EMAIL
Correspondence
Not archived · Council Link
STANDARD CONSULTATION VIA EMAIL
Correspondence
Not archived · Council Link
STANDARD CONSULTATION VIA EMAIL
Correspondence
Not archived · Council Link
STANDARD CONSULTATION VIA EMAIL
Correspondence
Not archived · Council Link
STANDARD CONSULTATION VIA EMAIL
Correspondence
Not archived · Council Link
STANDARD CONSULTATION VIA EMAIL
Correspondence
Not archived · Council Link
STREET ELEVATION SHEET 2
Drawing
Not archived · Council Link
STREET ELEVATIONS - SHEET 1
Drawing
Not archived · Council Link
STREET ELEVATIONS - SHEET 2
Drawing
Not archived · Council Link
SUN SHADING STUDY
Drawing
Not archived · Council Link
THE ENVIRONMENT AGENCY
Consultee Comment
Not archived · Council Link
TRANSPORT ASSESSMENT
Report
Not archived · Council Link
TREE CONSTRAINTS PLAN
Drawing
Not archived · Council Link
TREE CONSTRAINTS REPORT
Report
Not archived · Council Link
TREE OFFICER
Consultee Comment
Not archived · Council Link
TREE OFFICER
Consultee Comment
Not archived · Council Link
TREE OFFICER
Consultee Comment
Not archived · Council Link
TREE SURVEY SCHEDULE
Other
Not archived · Council Link
UPDATED SUBMISSION DOCUMENTS LETTER
Correspondence
Not archived · Council Link
VISUALISATIONS 1
Other
Not archived · Council Link
VISUALISATIONS 2
Other
Not archived · Council Link
WATER RESOURCES COMMENT
Consultee Comment
Not archived · Council Link

Take Action

Make your voice heard. Authorities need to hear from people who support new homes.

✉️ Write Email in Support View on Council Portal