← Back to Stroud District Council

Status

Awaiting decision
Received
15 May 2025
New dwellings
n/a

Summary

Change of use from care home (C2) to nine apartments (C3) with internal and external alterations.

Full Proposal

Change of use from care home (Use Class C2) to 9no. apartments (Use Class C3) including internal and external alterations.

Documents

AFFORDABLE HOUSING
Consultee Comment
Not archived · Council Link
AFFORDABLE HOUSING
Consultee Comment
Not archived · Council Link
APPLICATION FORM - WITHOUT PERSONAL DATA
Application Form
Not archived · Council Link
ARBORICULTURAL IMPACT ASSESSMENT & METHOD STATEMENT
Report
Not archived · Council Link
BAT SURVEY REPORT
Report
Not archived · Council Link
BIODIVERSITY NET GAIN REPORT
Report
Not archived · Council Link
BNG BASELINE
Drawing
Not archived · Council Link
BNG OFF-SITE - BASELINE
Drawing
Not archived · Council Link
BNG OFF-SITE - POST
Drawing
Not archived · Council Link
BNG OFFICER
Consultee Comment
Not archived · Council Link
BNG OFFICER
Consultee Comment
Not archived · Council Link
BNG OFFICER
Consultee Comment
Not archived · Council Link
BNG ON-SITE AREA POST
Drawing
Not archived · Council Link
BNG ON-SITE AREA PRE
Drawing
Not archived · Council Link
BNG ON-SITE LINEAR PRE.
Drawing
Not archived · Council Link
BNG POST
Drawing
Not archived · Council Link
BNG REPORT
Report
Not archived · Council Link
BREADSTONE BNG ON-SITE LINEAR POST
Drawing
Not archived · Council Link
CONSERVATION CONSULTANT
Consultee Comment
Not archived · Council Link
ECOLOGY RESPONSE
Consultee Comment
Not archived · Council Link
ENVIRONMENTAL HEALTH
Consultee Comment
Not archived · Council Link
EXISTING ACCOMMODATION SCHEDULE
Report
Not archived · Council Link
EXISTING ELEVATIONS
Drawing
Not archived · Council Link
EXISTING ELEVATIONS
Drawing
Not archived · Council Link
EXISTING FIRST & SECOND FLOOR PLAN
Drawing
Not archived · Council Link
EXISTING GROUND FLOOR PLAN
Drawing
Not archived · Council Link
FIRST & SECOND FLOOR PLAN AS PROPOSED
Revised Drawing
Not archived · Council Link
GCC ADULT SOCIAL CARE COMMENT
Consultee Comment
Not archived · Council Link
GCC HIGHWAYS
Consultee Comment
Not archived · Council Link
GGC STRATEGIC COMMISSIONING
Consultee Comment
Not archived · Council Link
HAMFALLOW PARISH COUNCIL
Consultee Comment
Not archived · Council Link
HERITAGE STATEMENT
Report
Not archived · Council Link
HRA AA - SEVERN ESTUARY
Report
Not archived · Council Link
JUSTIFICATION STATEMENT
Report
Not archived · Council Link
NATURAL ENGLAND COMMENT
Consultee Comment
Not archived · Council Link
NATURAL ENGLAND COMMENT ANNEXE A
Consultee Comment
Not archived · Council Link
OFF-SITE CONDITION SHEETS
Report
Not archived · Council Link
OFF-SITE CONDITION SHEETS
Report
Not archived · Council Link
ON-SITE CONDITION SHEETS
Report
Not archived · Council Link
PARISH CONSULTATION LETTER WEB
Correspondence
Not archived · Council Link
PLANNING, DESIGN & ACCESS STATEMENT
Design and Access Statement
Not archived · Council Link
PRELIMINARY ECOLOGICAL APPRAISAL
Report
Not archived · Council Link
PROPOSED ELEVATIONS
Revised Drawing
Not archived · Council Link
PROPOSED ELEVATIONS
Drawing
Not archived · Council Link
PROPOSED ELEVATIONS
Drawing
Not archived · Council Link
PROPOSED FIRST & SECOND FLOOR PLAN
Drawing
Not archived · Council Link
PROPOSED GF PLAN
Revised Drawing
Not archived · Council Link
PROPOSED GROUND FLOOR PLAN
Drawing
Not archived · Council Link
REVISED CONSULTATION VIA EMAIL
Correspondence
Not archived · Council Link
REVISED CONSULTATION VIA EMAIL
Correspondence
Not archived · Council Link
SDC DRAINAGE RESPONSE
Consultee Comment
Not archived · Council Link
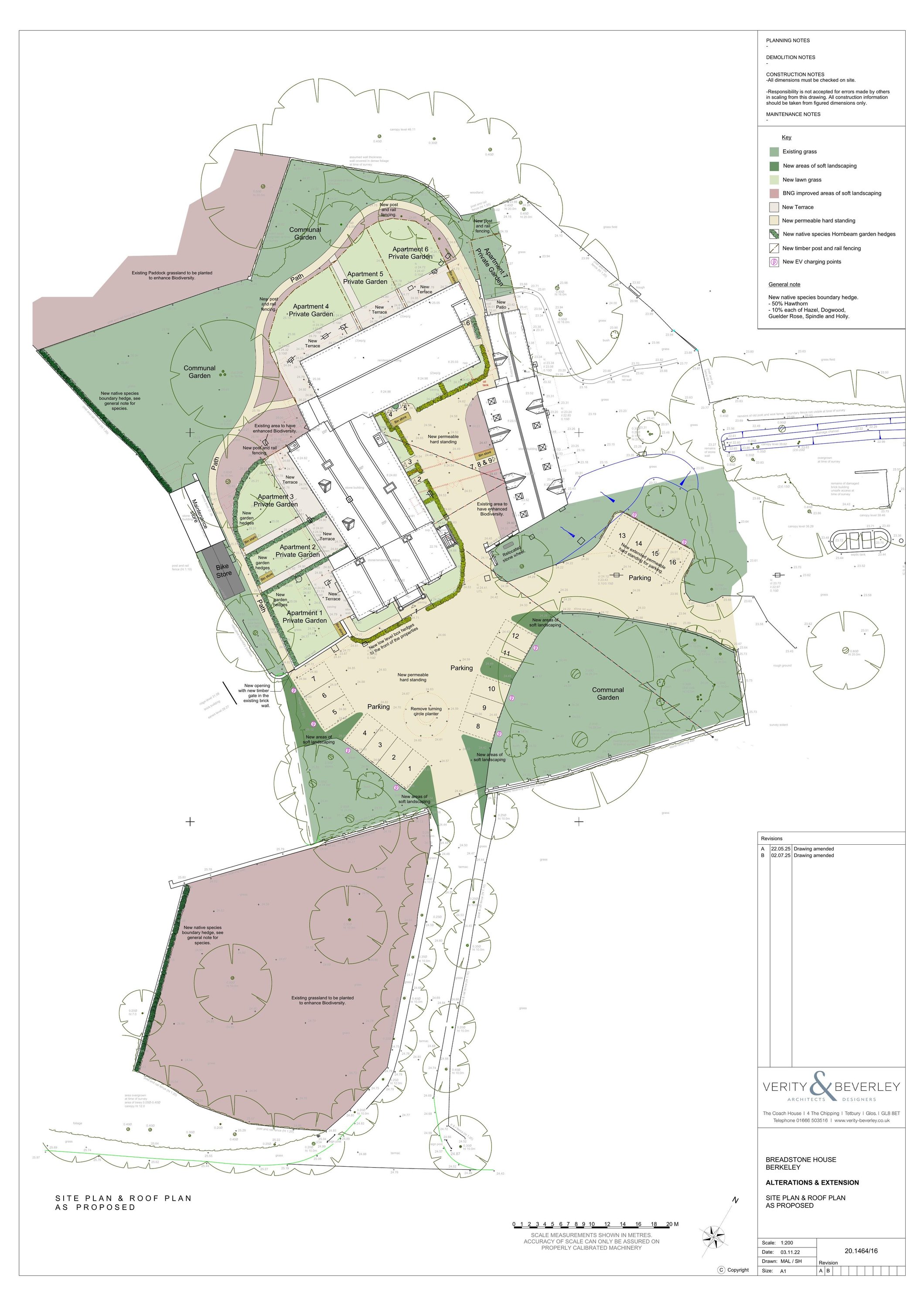
Drawing
Archived · Council Link
SITE NOTICE NOV 17
Correspondence
Not archived · Council Link
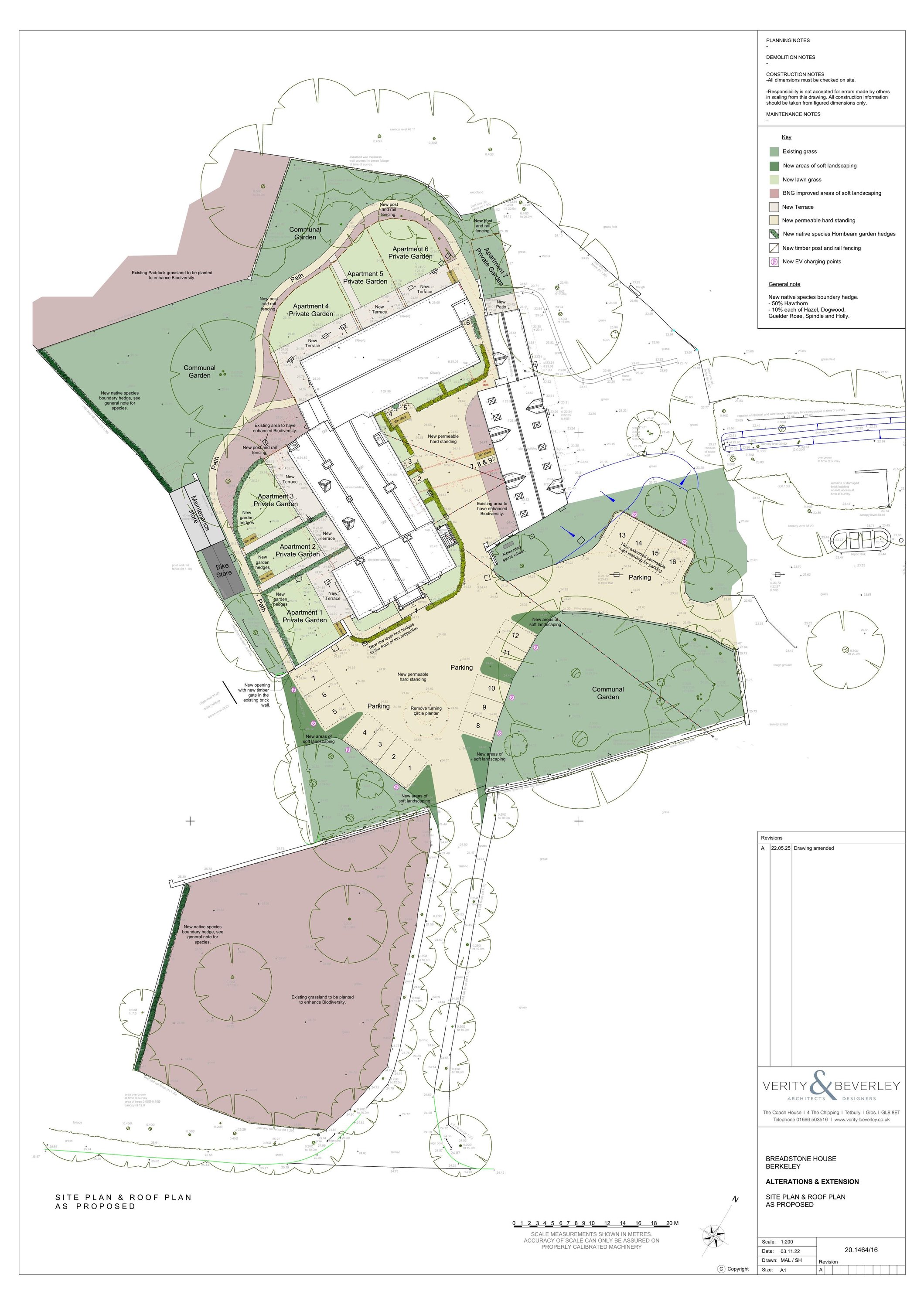
Revised Drawing
Archived · Council Link
STANDARD CONSULTATION VIA EMAIL
Correspondence
Not archived · Council Link
STANDARD CONSULTATION VIA EMAIL
Correspondence
Not archived · Council Link
STANDARD CONSULTATION VIA EMAIL
Correspondence
Not archived · Council Link
STANDARD CONSULTATION VIA EMAIL
Correspondence
Not archived · Council Link
STANDARD CONSULTATION VIA EMAIL
Correspondence
Not archived · Council Link
STANDARD CONSULTATION VIA EMAIL
Correspondence
Not archived · Council Link
STANDARD CONSULTATION VIA EMAIL
Correspondence
Not archived · Council Link
STANDARD CONSULTATION VIA EMAIL
Correspondence
Not archived · Council Link
STANDARD CONSULTATION VIA EMAIL
Correspondence
Not archived · Council Link
STANDARD CONSULTATION VIA EMAIL
Correspondence
Not archived · Council Link
STANDARD CONSULTATION VIA EMAIL
Correspondence
Not archived · Council Link
STANDARD CONSULTATION VIA EMAIL
Correspondence
Not archived · Council Link
TECHNICAL NOTE - TRANSPORTATION MATTERS
Report
Not archived · Council Link
THE GRANARY
Public Comment
Not archived · Council Link
THE GRANARY
Public Comment
Not archived · Council Link
TREE OFFICER
Consultee Comment
Not archived · Council Link
VACANT BUILDING STATEMENT
Report
Not archived · Council Link

Take Action

Make your voice heard. Authorities need to hear from people who support new homes.

✉️ Write Email in Support View on Council Portal