← Back to Stroud District Council

Status

Awaiting decision
Received
15 May 2025
New dwellings
n/a

Summary

Change of use from care home (C2) to nine apartments (C3) with internal and external alterations.

Full Proposal

Change of use from care home (Use Class C2) to 9no apartments (Use Class C3) including internal & external alterations.

Documents

APPLICATION FORM
Application Form
Not archived · Council Link
BAT SURVEY REPORT
Report
Not archived · Council Link
BIODIVERSITY NET GAIN
Report
Not archived · Council Link
BNG BASELINE.
Drawing
Not archived · Council Link
BNG POST
Drawing
Not archived · Council Link
BNG REPORT
Report
Not archived · Council Link
CONSERVATION CONSULTANT
Consultee Comment
Not archived · Council Link
EXISTING ELEVATIONS
Drawing
Not archived · Council Link
EXISTING ELEVATIONS
Drawing
Not archived · Council Link
EXISTING FIRST & SECOND FLOOR PLAN
Drawing
Not archived · Council Link
EXISTING GROUND FLOOR PLAN
Drawing
Not archived · Council Link
FIRST & SECOND FLOOR PLAN AS PROPOSED
Revised Drawing
Not archived · Council Link
HAMFALLOW PARISH COUNCIL
Consultee Comment
Not archived · Council Link
HERITAGE STATEMENT
Report
Not archived · Council Link
OFF-SITE CONDITION SHEETS
Report
Not archived · Council Link
PARISH CONSULTATION LETTER WEB
Correspondence
Not archived · Council Link
PLANNING, DESIGN AND ACCESS STATEMENT
Design and Access Statement
Not archived · Council Link
PRELIMINARY ECOLOGICAL APPRAISAL
Report
Not archived · Council Link
PROPOSED ELEVATIONS
Drawing
Not archived · Council Link
PROPOSED ELEVATIONS
Drawing
Not archived · Council Link
PROPOSED ELEVATIONS
Revised Drawing
Not archived · Council Link
PROPOSED FIRST & SECOND FLOOR PLAN
Drawing
Not archived · Council Link
PROPOSED GF PLAN
Revised Drawing
Not archived · Council Link
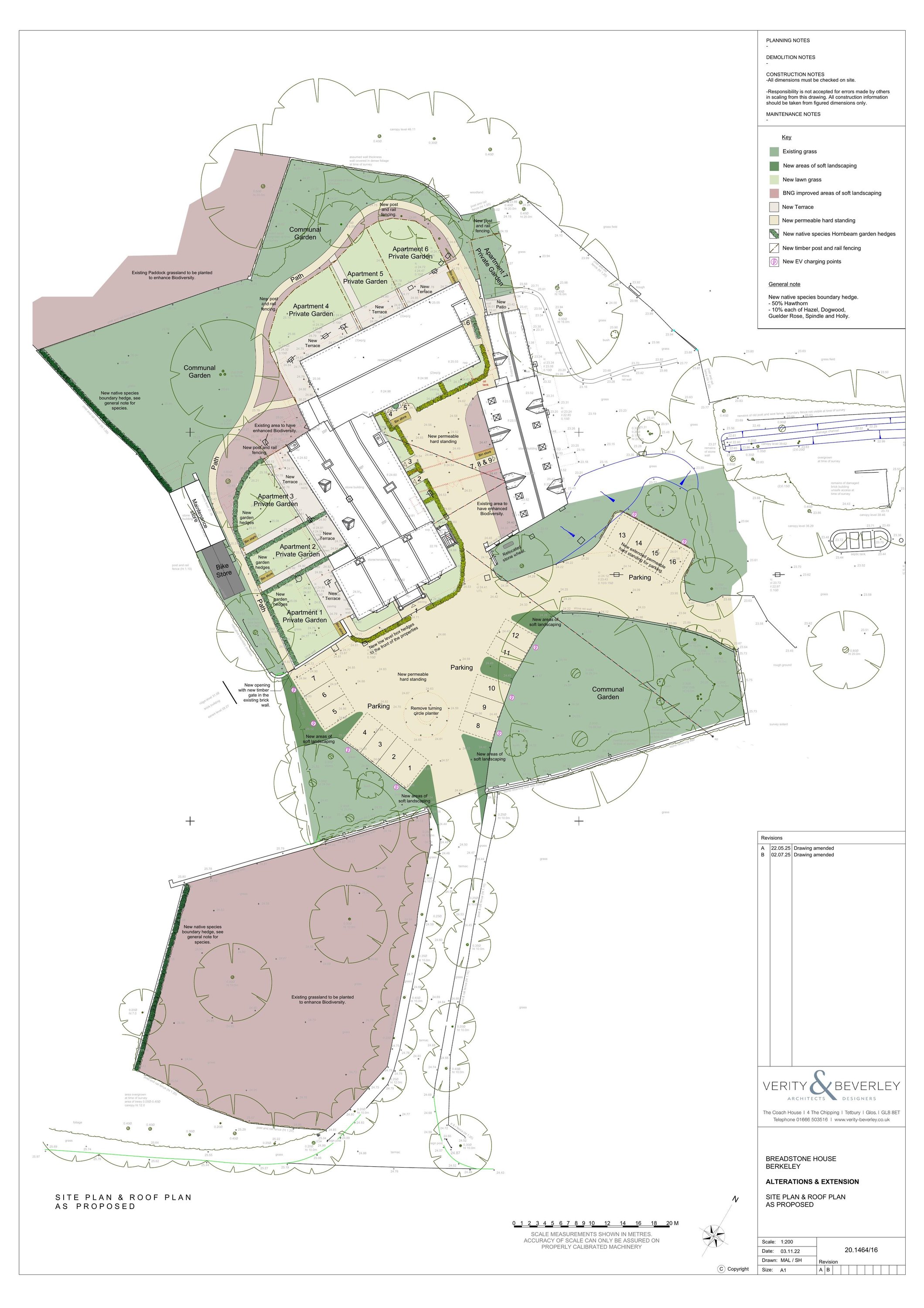
PROPOSED GROUND FLOOR PLAN
Drawing
Not archived · Council Link
Revised Drawing
Archived · Council Link
Drawing
Archived · Council Link
SITE NOTICE NOV 17
Correspondence
Not archived · Council Link
STANDARD CONSULTATION VIA EMAIL
Correspondence
Not archived · Council Link
STANDARD CONSULTATION VIA EMAIL
Correspondence
Not archived · Council Link
TECHNICAL NOTE
Report
Not archived · Council Link
TREE SURVEY
Report
Not archived · Council Link

Take Action

Make your voice heard. Authorities need to hear from people who support new homes.

✉️ Write Email in Support View on Council Portal