← Back to Stroud District Council

Status

Permitted
Received
23 Jun 2025
New dwellings
n/a

Summary

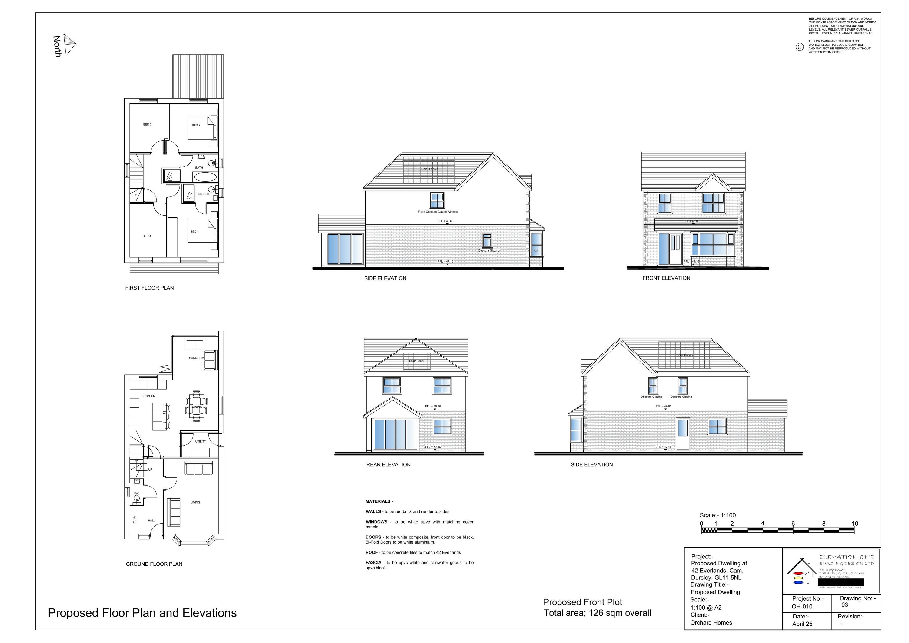
Demolition of existing garage and erection of one dwelling.

Full Proposal

Demolition of existing garage and erection of a dwelling.

Documents

APPLICATION FORM
Application Form
Not archived · Council Link
ATTENUATION SUMMARY
Supporting Document
Not archived · Council Link
BASELINE HABITAT PLAN
Drawing
Not archived · Council Link
BELOW GROUND DRAINAGE GENERAL ARRANGEMENT
Drawing
Not archived · Council Link
BELOW GROUND DRAINAGE STANDARD DETAILS
Drawing
Not archived · Council Link
BNG METRICS
Supporting Document
Not archived · Council Link
EXISTING AND PROPOSED ROOF PLAN
Drawing
Not archived · Council Link
EXISTING GARAGE PLANS AND ELEVATIONS
Drawing
Not archived · Council Link
OFFICER REPORT - WEB
Decision
Not archived · Council Link
PERMISSION - FULL PLANNING APP
Decision
Not archived · Council Link
POST HABITAT PLAN
Drawing
Not archived · Council Link
PROPOSED BLOCK PLAN
Drawing
Not archived · Council Link
S.106 LEGAL AGREEMENT SEVERN ESTUARY MITIGATION CONTRIBUTION
Section 106 Agreement
Not archived · Council Link
TECHNICAL DRAINAGE NOTE
Supporting Document
Not archived · Council Link

Take Action

Make your voice heard. Authorities need to hear from people who support new homes.

✉️ Write Email in Support View on Council Portal