← Back to Stroud District Council
Summary
Install solar panels and three air source heat pumps; erect single-storey greenhouse.
Full Proposal
Installation of solar panels and three air source heat pumps. Erection of a single storey greenhouse extension. external alterations.
Documents
AMENDED APPLICATION FORM - WITHOUT PERSONAL DATA
Application Form
APPLICATION FORM - WITHOUT PERSONAL DATA
Application Form
BAT SURVEY REPORT
Supporting Document
DAIRY NORTH FACE WINDOW DETAILS PROPOSED
Drawing
DAIRY PLAN PROPOSALS
Drawing
DAIRY ROOF PLAN & ELEVATIONS
Drawing
DESIGN & ACCESS STATEMENT
Design and Access Statement
DESIGN AND ACCESS STATEMENT
Design and Access Statement
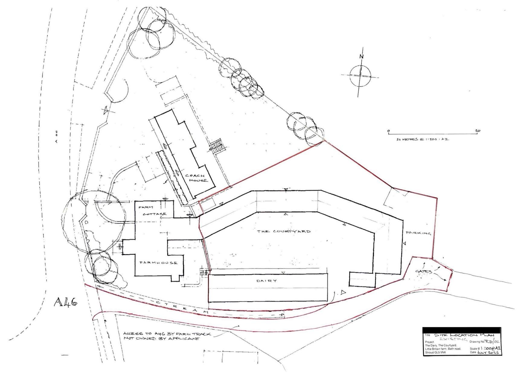
EXISTING DAIRY PLAN
Drawing
EXISTING ELEVATIONS
Drawing
EXISTING FLOOR PLAN
Drawing
EXISTING NORTH & EAST ELEVATIONS COURTYARD
Drawing
EXISTING SOUTH & EAST ELEVATIONS
Drawing
OFFICER REPORT FOR WEBSITE (NEW STYLE)
Decision
PERMISSION - HOUSEHOLDER APP
Decision
PROPOSED DAIRY PLAN
Drawing
PROPOSED DAIRY SECTION
Drawing
PROPOSED DAIRY SOUTH (PART) & EAST ELEVATIONS
Drawing
PROPOSED DAIRY SOUTH ELEVATIONS DOOR
Drawing
PROPOSED NORTH & EAST ELEVATIONS COURTYARD
Drawing
Take Action
Make your voice heard. Authorities need to hear from people who support new homes.