← Back to Stroud District Council

Status

Awaiting decision
Received
16 Jul 2025
New dwellings
n/a

Summary

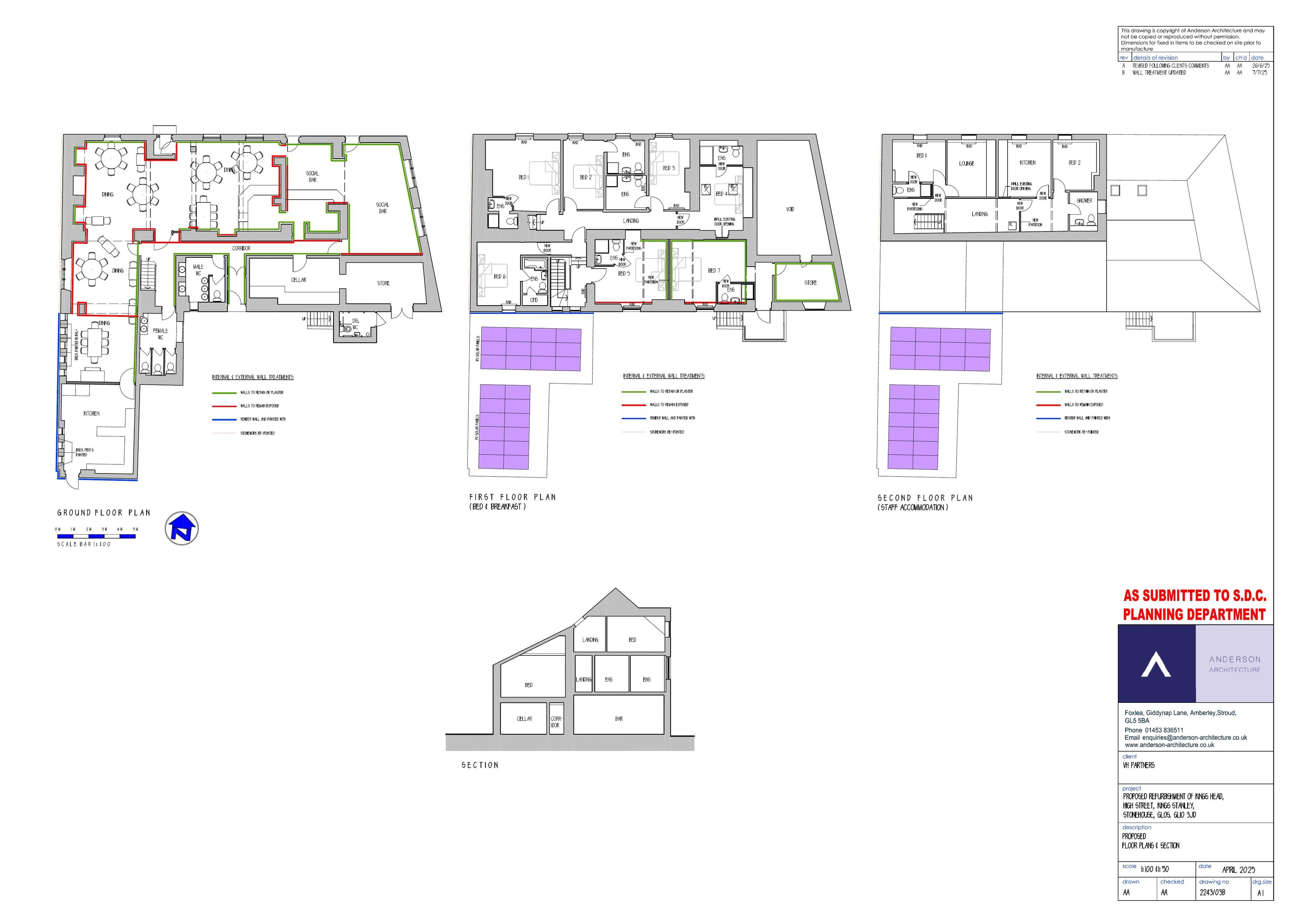
Refurbish public house adding bedrooms, staff accommodation, covered seating and reorganised parking; install solar panels.

Full Proposal

Proposed refurbishment of public house including the creation of bedrooms and staff accommodation and external covered seating areas together with re-organising of the parking provision. Installation of solar panels.

Documents

APPLICATION FORM
Application Form
Not archived · Council Link
CONSERVATION OFFICER COMMENTS
Consultee Comment
Not archived · Council Link
CONTAMINATED LAND OFFICER
Consultee Comment
Not archived · Council Link
CONTRA_ROTATING CASED AXIAL FANS DATA SHEET
Correspondence
Not archived · Council Link
ENVIRONMENTAL HEALTH
Consultee Comment
Not archived · Council Link
ENVIRONMENTAL HEALTH
Consultee Comment
Not archived · Council Link
EXISTING & PROPOSED NORTH ELEVATION DOORS, FIRE PLACES & BAR DESIGN
Drawing
Not archived · Council Link
EXISTING BLOCK PLAN
Drawing
Not archived · Council Link
EXISTING FLOOR PLANS & SECTIONS
Drawing
Not archived · Council Link
GCC HIGHWAYS
Consultee Comment
Not archived · Council Link
GCC HIGHWAYS COMMENT
Consultee Comment
Not archived · Council Link
HERITAGE, DESIGN AND ACCESS STATEMENT
Design and Access Statement
Not archived · Council Link
KITCHAVENT-GREASE-SMOKE-ODOUR-CONTROL-SYSTEM DATA SHEET
Correspondence
Not archived · Council Link
PARISH CONSULTATION LETTER WEB
Correspondence
Not archived · Council Link
PROPOSED BLOCK PLAN
Drawing
Not archived · Council Link
PROPOSED COVERED AREAS FLOOR PLAN & ELEVATIONS
Drawing
Not archived · Council Link
Superseded Drawing
Archived · Council Link
Revised Drawing
Archived · Council Link
REVISED CONSULTATION VIA EMAIL
Correspondence
Not archived · Council Link
REVISED CONSULTATION VIA EMAIL
Correspondence
Not archived · Council Link
Drawing
Archived · Council Link
SITE NOTICE NOV 17
Correspondence
Not archived · Council Link
SITE PHOTOS
Photo
Not archived · Council Link
STANDARD CONSULTATION VIA EMAIL
Correspondence
Not archived · Council Link
STANDARD CONSULTATION VIA EMAIL
Correspondence
Not archived · Council Link
STANDARD CONSULTATION VIA EMAIL
Correspondence
Not archived · Council Link
STANDARD CONSULTATION VIA EMAIL
Correspondence
Not archived · Council Link
STANDARD CONSULTATION VIA EMAIL
Correspondence
Not archived · Council Link
THE LOCATION PLAN
Drawing
Not archived · Council Link
THE OLD WOOL SHOP
Public Comment
Not archived · Council Link
THE OLD WOOL SHOP
Public Comment
Not archived · Council Link
TRANSPORT ASSESSMENT
Report
Not archived · Council Link
TRANSPORT STATEMENT
Report
Not archived · Council Link

Take Action

Make your voice heard. Authorities need to hear from people who support new homes.

✉️ Write Email in Support View on Council Portal