← Back to Stroud District Council

Status

Permitted
Received
24 Sep 2025
New dwellings
n/a

Full Proposal

Erection of a single dwelling and detached double garage.

Documents

ALKINGTON PARISH COUNCIL
Consultee Comment
Not archived · Council Link
APPLICATION FORM - WITHOUT PERSONAL DATA
Application Form
Not archived · Council Link
BIODIVERSITY TEAM
Consultee Comment
Not archived · Council Link
BNG OFFICER
Consultee Comment
Not archived · Council Link
CONTAMINATED LAND OFFICER
Consultee Comment
Not archived · Council Link
COVERING LETTER
Correspondence
Not archived · Council Link
ENVIRONMENTAL HEALTH
Consultee Comment
Not archived · Council Link
EXISTING & PROPOSED STREET SCENE
Superseded Drawing
Not archived · Council Link
EXISTING AND PROPOSED STREET SCENE
Revised Drawing
Not archived · Council Link
EXISTING BLOCK PLAN
Drawing
Not archived · Council Link
GCC HIGHWAYS
Consultee Comment
Not archived · Council Link
HRA SCREENING AND APPROPRIATE ASSESSMENT - SEVERN ESTUARY
Other
Not archived · Council Link
LOCATION PLAN
Drawing
Not archived · Council Link
NATURAL ENGLAND COMMENT
Consultee Comment
Not archived · Council Link
NATURAL ENGLAND COMMENT ANNEXE A
Consultee Comment
Not archived · Council Link
OFFICER REPORT FOR WEBSITE (NEW STYLE)
Decision
Not archived · Council Link
PARISH CONSULTATION LETTER WEB
Correspondence
Not archived · Council Link
PERMISSION - FULL PLANNING APP
Decision
Not archived · Council Link
PRELIMINARY ECOLOGICAL APPRAISAL
Supporting Document
Not archived · Council Link
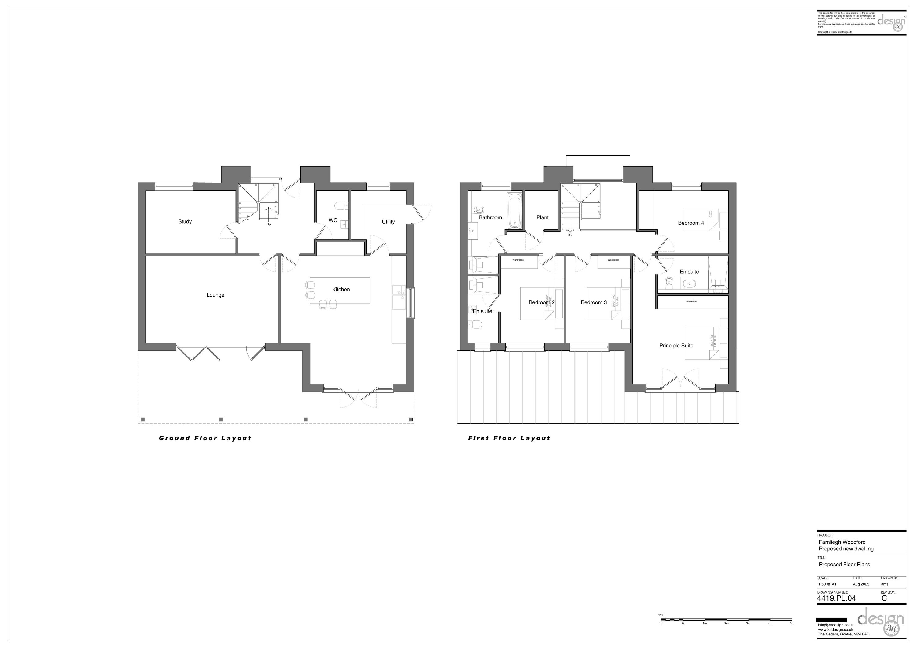
PROPOSED BLOCK PLAN
Revised Drawing
Not archived · Council Link
PROPOSED BLOCK PLAN
Superseded Drawing
Not archived · Council Link
PROPOSED ELEVATIONS
Superseded Drawing
Not archived · Council Link
PROPOSED ELEVATIONS
Revised Drawing
Not archived · Council Link
Superseded Drawing
Archived · Council Link
Revised Drawing
Archived · Council Link
PROPOSED GARAGE PLANS & ELEVATIONS
Drawing
Not archived · Council Link
SEVERN ESTUARY UU
Section 106 Agreement
Not archived · Council Link
SITE NOTICE NOV 17
Correspondence
Not archived · Council Link
STANDARD CONSULTATION VIA EMAIL
Correspondence
Not archived · Council Link
STANDARD CONSULTATION VIA EMAIL
Correspondence
Not archived · Council Link
STANDARD CONSULTATION VIA EMAIL
Correspondence
Not archived · Council Link
STANDARD CONSULTATION VIA EMAIL
Correspondence
Not archived · Council Link
STANDARD CONSULTATION VIA EMAIL
Correspondence
Not archived · Council Link
STANDARD CONSULTATION VIA EMAIL
Correspondence
Not archived · Council Link
STANDARD CONSULTATION VIA EMAIL
Correspondence
Not archived · Council Link
SUSTAINABILITY APPRAISAL
Correspondence
Not archived · Council Link
TYNDALE VIEW
Public Comment
Not archived · Council Link

Take Action

Make your voice heard. Authorities need to hear from people who support new homes.

✉️ Write Email in Support View on Council Portal