← Back to Stroud District Council

Status

Awaiting decision
Received
22 Oct 2025
New dwellings
n/a

Full Proposal

Raise roof and convert loft, add section of green roof, new cladding, replacement fenestration, solar panels. Erection of pergola and greenhouse, new Cotswold stone wall and ramp.

Documents

APPLICATION FORM - WITHOUT PERSONAL DATA
Application Form
Not archived · Council Link
BIODIVERSITY TEAM
Consultee Comment
Not archived · Council Link
ENVIRONMENTAL HEALTH
Consultee Comment
Not archived · Council Link
EXISTING BLOCK PLAN
Drawing
Not archived · Council Link
EXISTING NE & NW ELEVATIONS
Drawing
Not archived · Council Link
EXISTING SE & SW ELEVATIONS
Drawing
Not archived · Council Link
HERITAGE STATEMENT
Report
Not archived · Council Link
HIGH BANK
Public Comment
Not archived · Council Link
LOCATION PLAN
Drawing
Not archived · Council Link
Drawing
Archived · Council Link
PARISH CONSULTATION LETTER WEB
Correspondence
Not archived · Council Link
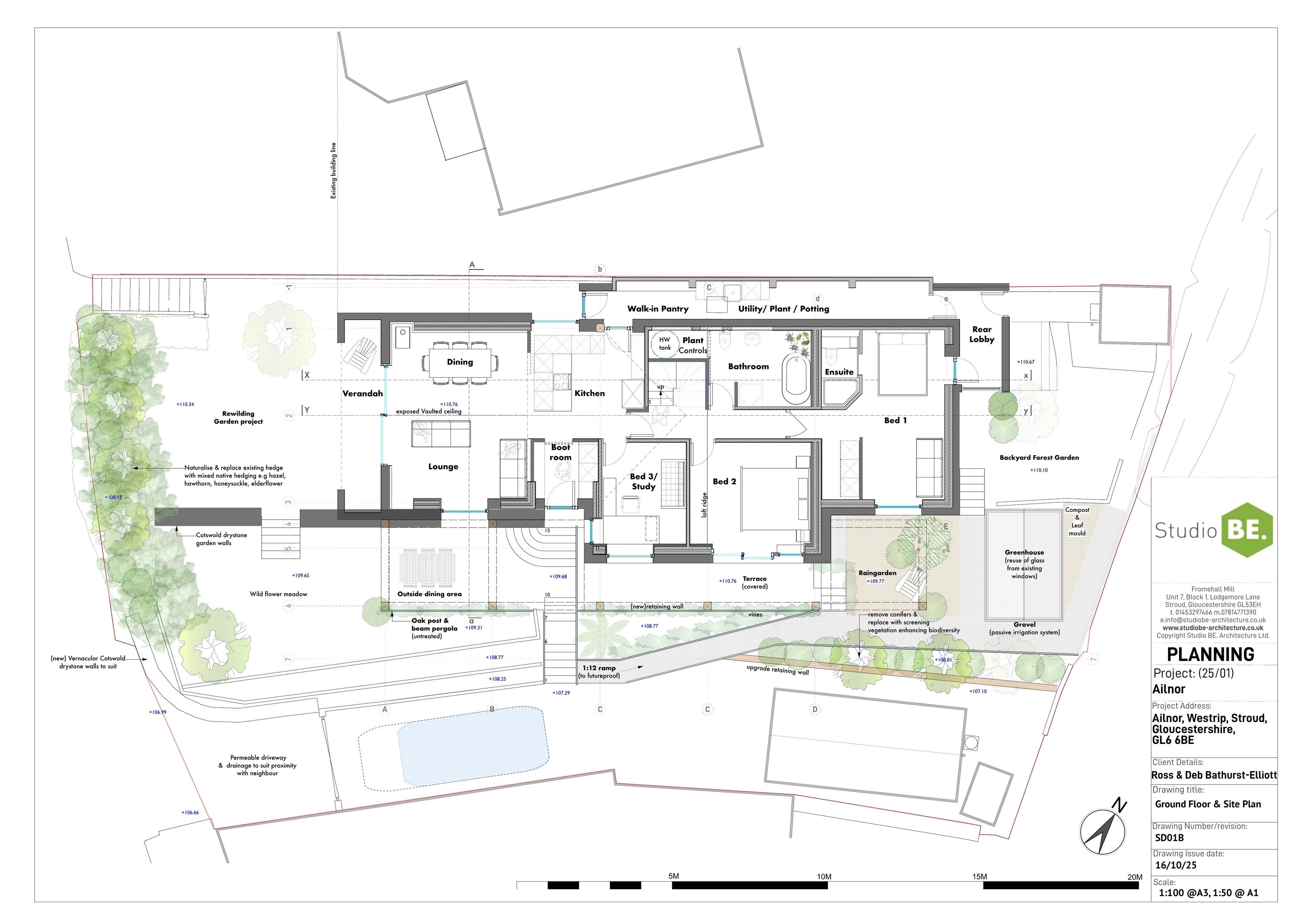
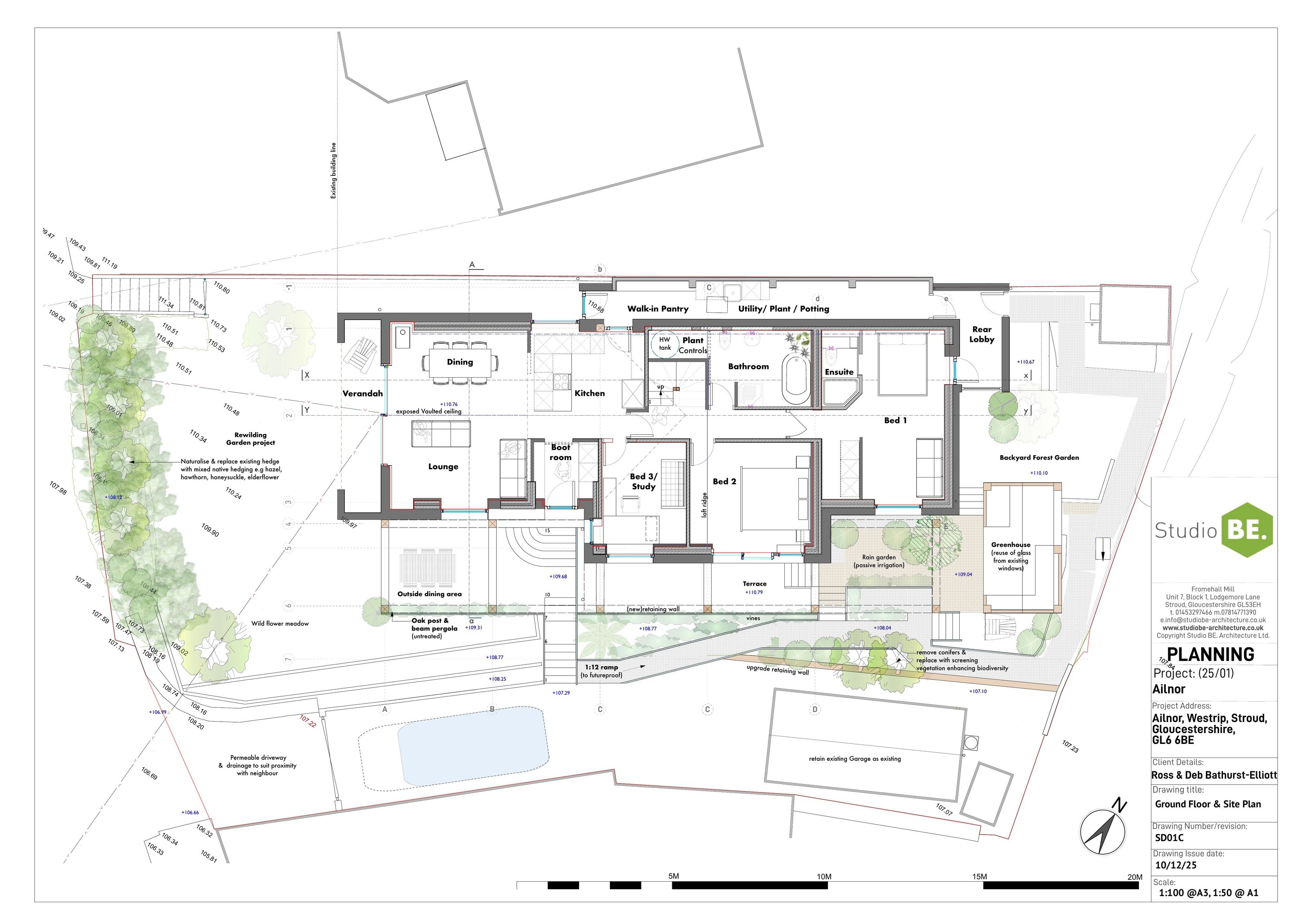
PROPOSED BLOCK PLAN
Drawing
Not archived · Council Link
PROPOSED GREENHOUSE ELEVATIONS
Drawing
Not archived · Council Link
PROPOSED LOFT PLAN
Drawing
Not archived · Council Link
PROPOSED NE & NW ELEVATIONS
Drawing
Not archived · Council Link
PROPOSED ROOF PLAN
Drawing
Not archived · Council Link
PROPOSED SE & SW ELEVATIONS
Drawing
Not archived · Council Link
PROPOSED SW AND SE ELEVATIONS GREENHOUSE
Drawing
Not archived · Council Link
Drawing
Archived · Council Link
Drawing
Archived · Council Link
SITE NOTICE NOV 17
Correspondence
Not archived · Council Link
STANDARD CONSULTATION VIA EMAIL
Correspondence
Not archived · Council Link
STANDARD CONSULTATION VIA EMAIL
Correspondence
Not archived · Council Link

Take Action

Make your voice heard. Authorities need to hear from people who support new homes.

✉️ Write Email in Support View on Council Portal