← Back to Stroud District Council

Status

Permitted
Received
24 Oct 2025
New dwellings
n/a

Full Proposal

Erection of a self-build dwelling and a detached garage.

Documents

APPLICATION FORM - WITHOUT PERSONAL DATA
Application Form
Not archived · Council Link
BNG OFFICER
Consultee Comment
Not archived · Council Link
BNG OFFICER
Consultee Comment
Not archived · Council Link
CONTAMINATED LAND OFFICER
Consultee Comment
Not archived · Council Link
CONTAMINATED LAND OFFICER
Consultee Comment
Not archived · Council Link
COTSWOLDS BEECHWOODS HABITAT REGULATION ASSESSMENT
Consultee Comment
Not archived · Council Link
DESIGN, SUSTAINABILITY & ACCESS STATEMENT
Design and Access Statement
Not archived · Council Link
ECOLOGIST RESPONSE
Consultee Comment
Not archived · Council Link
ECOLOGY CONSULTANT RESPONSE
Consultee Comment
Not archived · Council Link
ENVIRONMENTAL HEALTH
Consultee Comment
Not archived · Council Link
ENVIRONMENTAL HEALTH
Consultee Comment
Not archived · Council Link
Drawing
Archived · Council Link
GCC HIGHWAYS
Consultee Comment
Not archived · Council Link
GCC HIGHWAYS
Consultee Comment
Not archived · Council Link
HRA - COTSWOLDS BEECHWOODS
Report
Not archived · Council Link
LANDSCAPE AND VISUAL APPRAISAL
Report
Not archived · Council Link
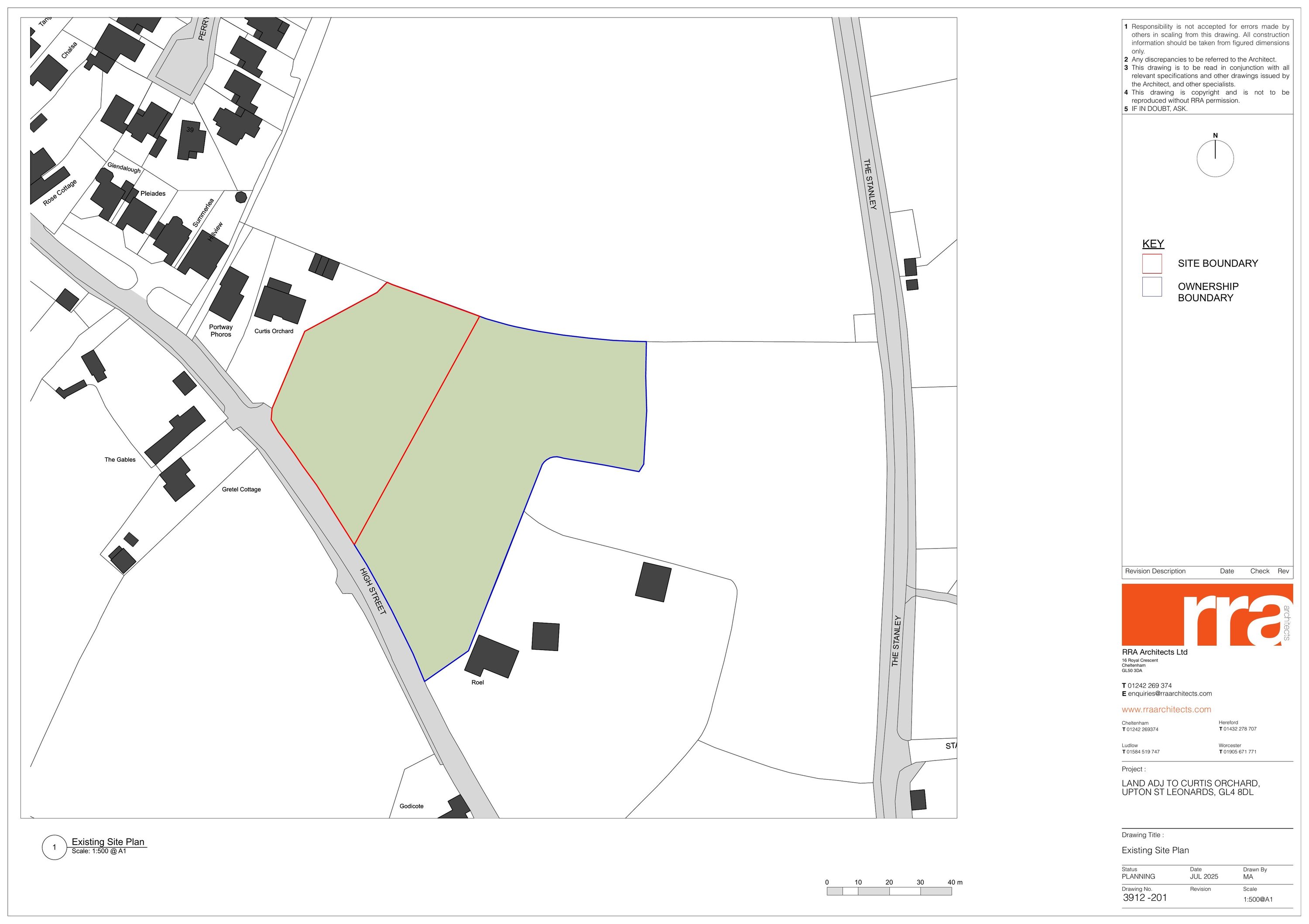
LOCATION BLOCK PLAN
Drawing
Not archived · Council Link
NATURAL ENGLAND
Consultee Comment
Not archived · Council Link
OFFICER REPORT FOR WEBSITE (NEW STYLE)
Decision
Not archived · Council Link
PARISH CONSULTATION LETTER WEB
Correspondence
Not archived · Council Link
PERMISSION - FULL PLANNING APP
Decision
Not archived · Council Link
PLANNING STATEMENT
Report
Not archived · Council Link
PROPOSED ELEVATIONS
Superseded Drawing
Not archived · Council Link
PROPOSED ELEVATIONS
Superseded Drawing
Not archived · Council Link
PROPOSED ELEVATIONS
Revised Drawing
Not archived · Council Link
PROPOSED ELEVATIONS
Revised Drawing
Not archived · Council Link
PROPOSED FIRST FLOOR PLAN
Superseded Drawing
Not archived · Council Link
PROPOSED FIRST FLOOR PLAN
Drawing
Not archived · Council Link
PROPOSED FIRST FLOOR PLAN
Revised Drawing
Not archived · Council Link
PROPOSED GARAGE
Drawing
Not archived · Council Link
PROPOSED GROUND FLOOR PLAN
Revised Drawing
Not archived · Council Link
PROPOSED GROUND FLOOR PLAN
Superseded Drawing
Not archived · Council Link
PROPOSED ROOF PLAN
Drawing
Not archived · Council Link
Revised Drawing
Archived · Council Link
Superseded Drawing
Archived · Council Link
Superseded Drawing
Archived · Council Link
REVISED CONSULTATION VIA EMAIL
Correspondence
Not archived · Council Link
REVISED CONSULTATION VIA EMAIL
Correspondence
Not archived · Council Link
REVISED CONSULTATION VIA EMAIL
Correspondence
Not archived · Council Link
REVISED CONSULTATION VIA EMAIL
Correspondence
Not archived · Council Link
REVISED CONSULTATION VIA EMAIL
Correspondence
Not archived · Council Link
SECTION 106 AGREEMENT
Section 106 Agreement
Not archived · Council Link
SELF BUILD STATEMENT
Report
Not archived · Council Link
SITE NOTICE NOV 17
Correspondence
Not archived · Council Link
STANDARD CONSULTATION VIA EMAIL
Correspondence
Not archived · Council Link
STANDARD CONSULTATION VIA EMAIL
Correspondence
Not archived · Council Link
STANDARD CONSULTATION VIA EMAIL
Correspondence
Not archived · Council Link
STANDARD CONSULTATION VIA EMAIL
Correspondence
Not archived · Council Link
STANDARD CONSULTATION VIA EMAIL
Correspondence
Not archived · Council Link
STEPS HOUSE
Public Comment
Not archived · Council Link
SUPERSEDED PRELIMINARY ECOLOGICAL APPRAISAL
Report
Not archived · Council Link
UPDATED PRELIMINARY ECOLOGICAL APPRAISAL
Supporting Document
Not archived · Council Link
UPTON ST LEONARDS
Consultee Comment
Not archived · Council Link

Take Action

Make your voice heard. Authorities need to hear from people who support new homes.

✉️ Write Email in Support View on Council Portal