← Back to Stroud District Council

Status

Awaiting decision
Received
18 Dec 2025
New dwellings
n/a

Full Proposal

Part-conversion of Pier View Hotel to create 4no. self-contained flats (Use Class C3) and retained public house (sui generis), with single-storey rear extension. Erection of 5no. dwellinghouses (Use Class C3), with associated access improvements, parking and landscaping.

Documents

33 OLDMINSTER ROAD
Public Comment
Not archived · Council Link
AFFORDABLE HOUSING
Consultee Comment
Not archived · Council Link
AFFORDABLE HOUSING STATEMENT
Report
Not archived · Council Link
APPLICATION FORM
Application Form
Not archived · Council Link
ARBORICULTURAL IMPLICATIONS ASSESSMENT & METHOD STATEMENT
Report
Not archived · Council Link
BNG ASSESSMENT
Supporting Document
Not archived · Council Link
BNG METRICS
Supporting Document
Not archived · Council Link
BNG OFFICER
Consultee Comment
Not archived · Council Link
CONTAMINATED LAND OFFICER
Consultee Comment
Not archived · Council Link
DESIGN AND ACCESS STATEMENT
Design and Access Statement
Not archived · Council Link
DRAINAGE STRATEGY
Drawing
Not archived · Council Link
DRAINAGE STRATEGY
Report
Not archived · Council Link
ECOLOGICAL IMPACT ASSESSMENT & BIODIVERSITY NET GAIN REPORT
Report
Not archived · Council Link
ENVIRONMENTAL HEALTH
Consultee Comment
Not archived · Council Link
EXISTING BLOCK PLAN
Drawing
Not archived · Council Link
EXISTING ELEVATION
Drawing
Not archived · Council Link
EXISTING ELEVATIONS
Drawing
Not archived · Council Link
EXISTING ELEVATIONS
Drawing
Not archived · Council Link
EXISTING PLANS ? FIRST FLOOR
Drawing
Not archived · Council Link
EXISTING PLANS ? GROUND FLOOR
Drawing
Not archived · Council Link
EXISTING PLANS ? SECOND FLOOR & ROOF PLAN
Drawing
Not archived · Council Link
EXISTING SITE SECTIONS-STREET VIEW
Drawing
Not archived · Council Link
FINANCIAL VIABILITY STATEMENT
Report
Not archived · Council Link
FLOOD AND LAND DRAINAGE ENGINEER
Consultee Comment
Not archived · Council Link
HERITAGE & PLANNING STATEMENT
Report
Not archived · Council Link
HOUSING SUSTAINABLE CONSTRUCTION & DESIGN CHECKLIST
Report
Not archived · Council Link
LANDSCAPE MAINTENANCE AND MANAGEMENT PLAN
Supporting Document
Not archived · Council Link
NATURAL ENGLAND
Consultee Comment
Not archived · Council Link
PARISH CONSULTATION LETTER WEB
Correspondence
Not archived · Council Link
PARISH CONSULTATION LETTER WEB
Correspondence
Not archived · Council Link
PRE EXISTING ELEVATION
Drawing
Not archived · Council Link
PRE EXISTING ELEVATION
Drawing
Not archived · Council Link
PRE EXISTING ELEVATION
Drawing
Not archived · Council Link
PRE EXISTING PLANS ? FIRST FLOOR
Drawing
Not archived · Council Link
PRE EXISTING PLANS ? GROUND FLOOR
Drawing
Not archived · Council Link
PRE EXISTING PLANS ? SECOND FLOOR
Drawing
Not archived · Council Link
PRE-EXISTING BLOCK PLAN
Drawing
Not archived · Council Link
PROPOSED BIN & BIKE STORES
Drawing
Not archived · Council Link
PROPOSED BIN & BIKE STORES REFURBISHMENT
Drawing
Not archived · Council Link
PROPOSED BLOCK PLAN
Drawing
Not archived · Council Link
PROPOSED DETAILS ? ASHP ENCLOSURE
Drawing
Not archived · Council Link
PROPOSED DETAILS ? ASHP ENCLOSURE
Drawing
Not archived · Council Link
PROPOSED ELEVATION ? PART AS BUILT/PROPOSED
Drawing
Not archived · Council Link
PROPOSED ELEVATION ? PART AS BUILT/PROPOSED
Drawing
Not archived · Council Link
PROPOSED ELEVATIONS ? PART AS BUILT/PROPOSED
Drawing
Not archived · Council Link
PROPOSED ELEVATIONS PLOT 1&2
Drawing
Not archived · Council Link
PROPOSED ELEVATIONS PLOT 3
Drawing
Not archived · Council Link
PROPOSED ELEVATIONS PLOT 4
Drawing
Not archived · Council Link
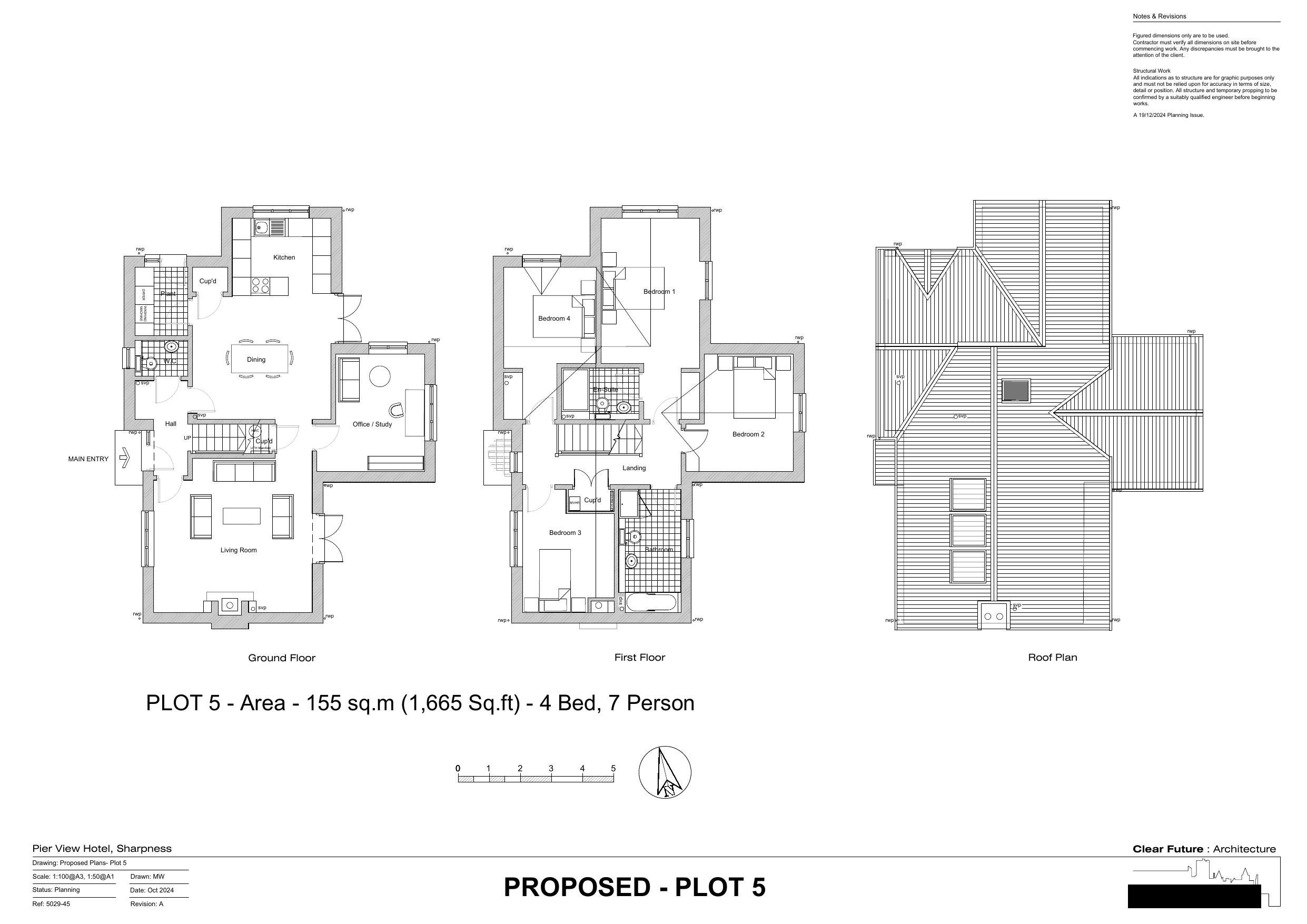
PROPOSED ELEVATIONS PLOT 5
Drawing
Not archived · Council Link
PROPOSED ENERGY & WASTE MEASURES PLAN
Drawing
Not archived · Council Link
PROPOSED LANDSCAPING PLAN
Drawing
Not archived · Council Link
PROPOSED SITE SECTIONS
Drawing
Not archived · Council Link
PROPOSED SITE SECTIONS-STREET VIEW
Drawing
Not archived · Council Link
PUBLIC RIGHTS OF WAY
Consultee Comment
Not archived · Council Link
SITE NOTICE NOV 17
Correspondence
Not archived · Council Link
SPORTS ENGLAND
Consultee Comment
Not archived · Council Link
STANDARD CONSULTATION VIA EMAIL
Correspondence
Not archived · Council Link
STANDARD CONSULTATION VIA EMAIL
Correspondence
Not archived · Council Link
STANDARD CONSULTATION VIA EMAIL
Correspondence
Not archived · Council Link
STANDARD CONSULTATION VIA EMAIL
Correspondence
Not archived · Council Link
STANDARD CONSULTATION VIA EMAIL
Correspondence
Not archived · Council Link
STANDARD CONSULTATION VIA EMAIL
Correspondence
Not archived · Council Link
STANDARD CONSULTATION VIA EMAIL
Correspondence
Not archived · Council Link
STANDARD CONSULTATION VIA EMAIL
Correspondence
Not archived · Council Link
STANDARD CONSULTATION VIA EMAIL
Correspondence
Not archived · Council Link
STANDARD CONSULTATION VIA EMAIL
Correspondence
Not archived · Council Link
STANDARD CONSULTATION VIA EMAIL
Correspondence
Not archived · Council Link
STANDARD CONSULTATION VIA EMAIL
Correspondence
Not archived · Council Link
STANDARD CONSULTATION VIA EMAIL
Correspondence
Not archived · Council Link
STANDARD CONSULTATION VIA EMAIL
Correspondence
Not archived · Council Link
STANDARD CONSULTATION VIA EMAIL
Correspondence
Not archived · Council Link
STANDARD DRAINAGE DETAILS SHEET 2
Drawing
Not archived · Council Link
STANDARD DRAINAGE DOCUMENTATION SHEET 1
Drawing
Not archived · Council Link
THE LOCATION PLAN
Drawing
Not archived · Council Link
TRANSPORT STATEMENT
Report
Not archived · Council Link
TREE OFFICER
Consultee Comment
Not archived · Council Link

Take Action

Make your voice heard. Authorities need to hear from people who support new homes.

✉️ Write Email in Support View on Council Portal