← Back to Stroud District Council
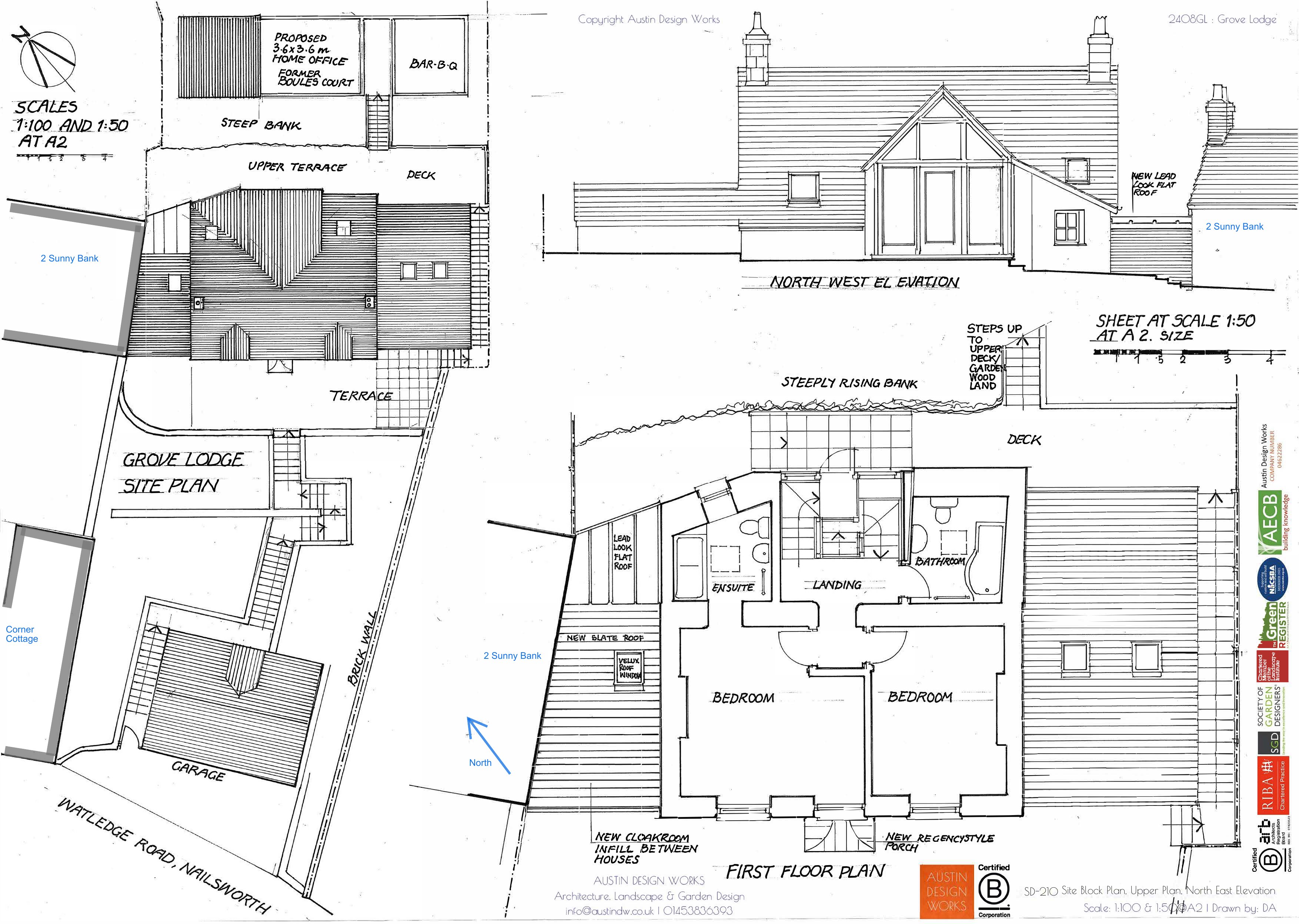
S.26/0024/HHOLD
Stroud District Council · IDOX
Status
Awaiting decision
Received
Last month
New dwellings
n/a
Full Proposal
Single storey side extension, ornate metal open porch and single-storey garden office.
Documents
Take Action
Make your voice heard. Authorities need to hear from people who support new homes.