← Back to Sunderland City Council

Status

Decided
Received
28 Mar 2025
New dwellings
n/a

Summary

Listed building consent to convert bank into five residential flats and a commercial unit (Class E).

Full Proposal

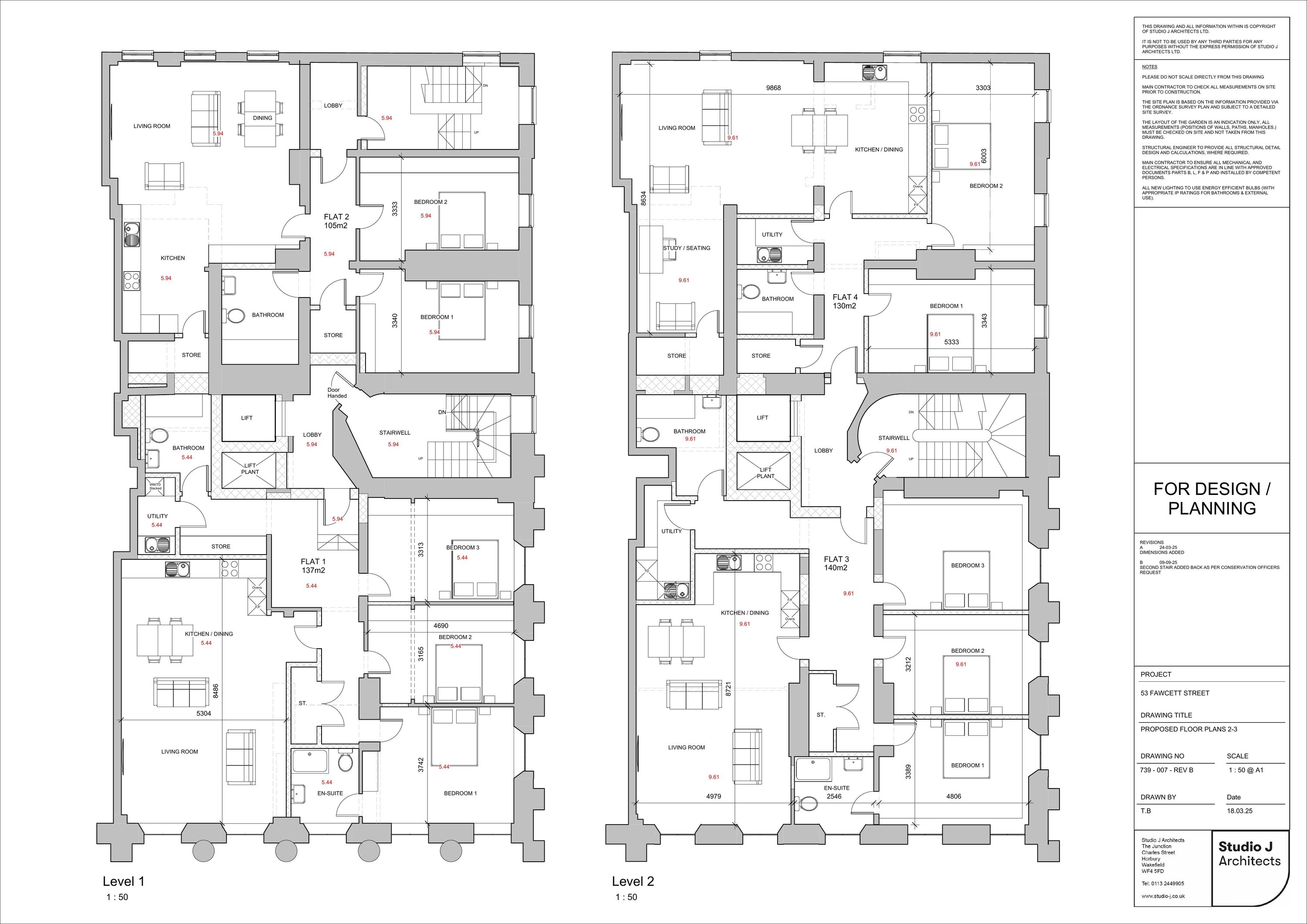
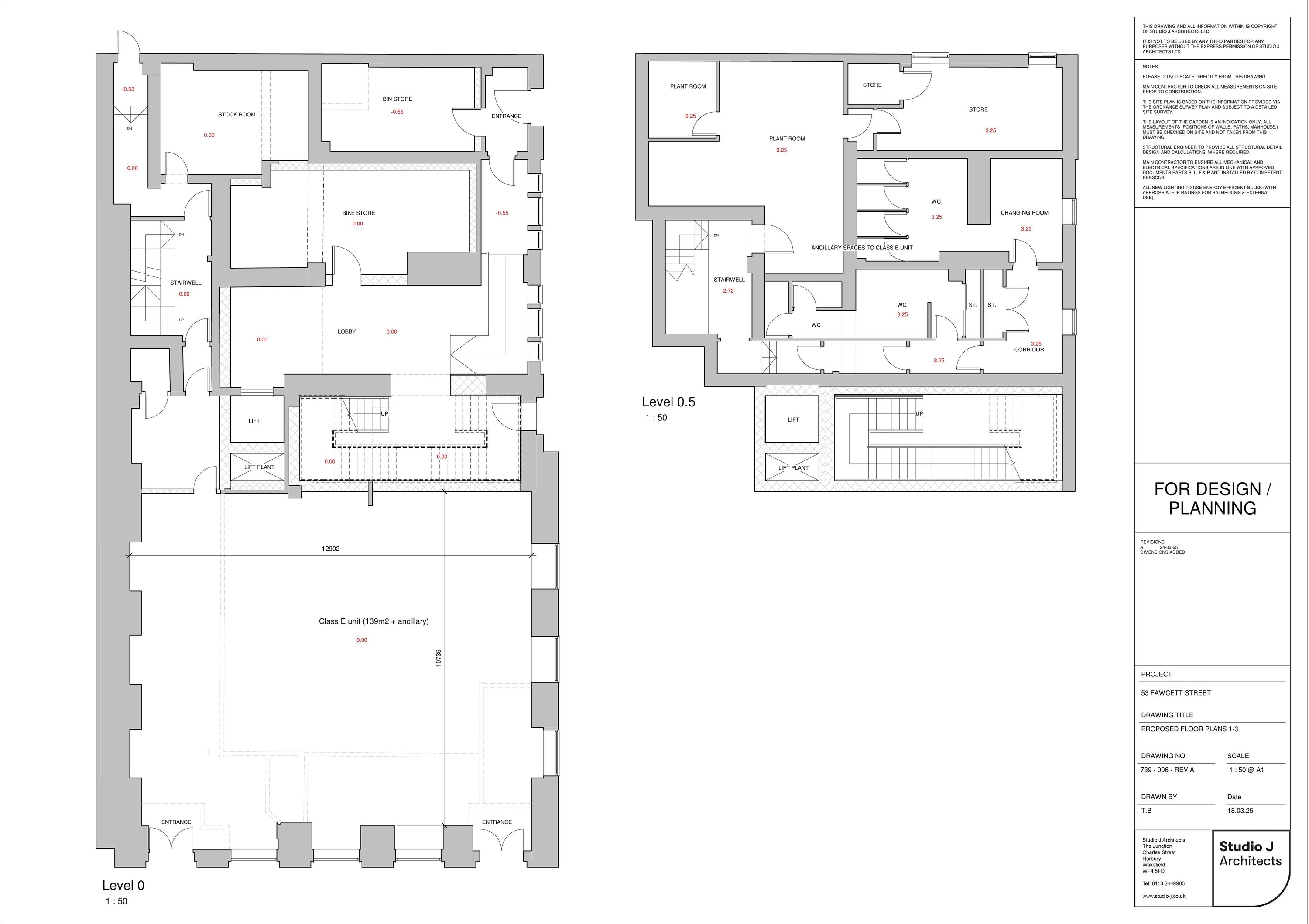
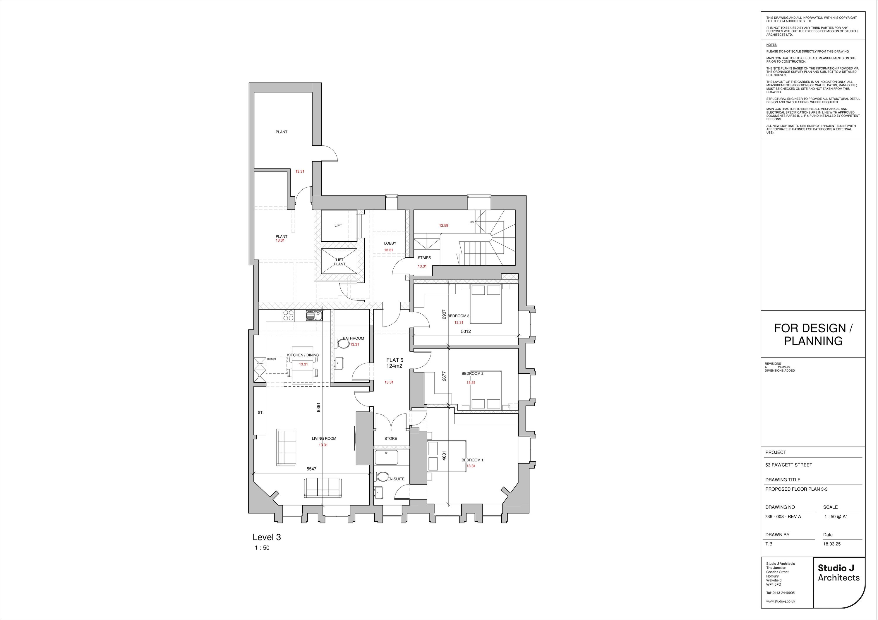
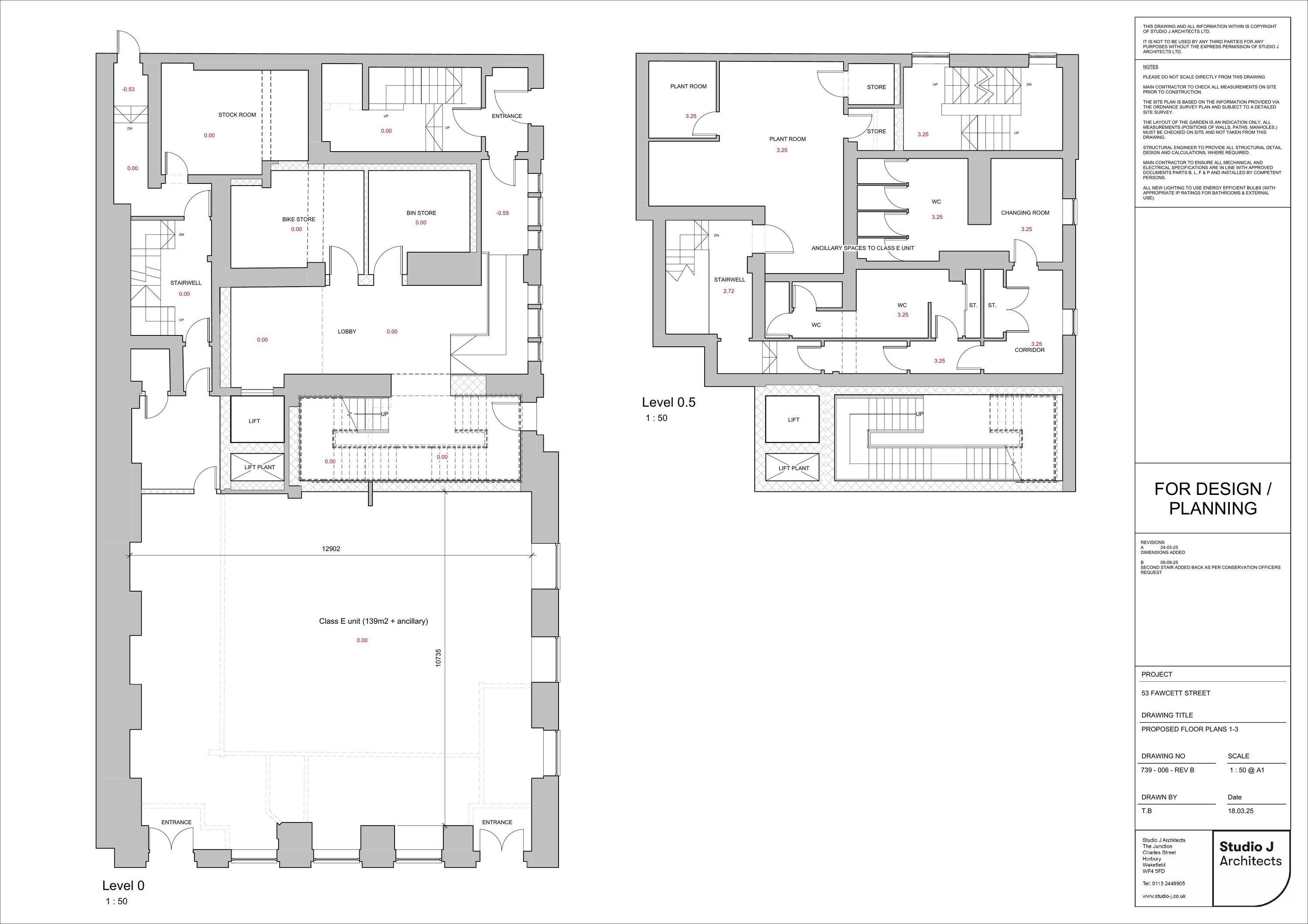
Conversion of bank to 5 residential flats and commercial unit (class E); including removal of internal walls and provision of new internal doors and walls

Documents

APPLICATIONFORMREDACTED
Application Form Redacted
Not archived · Council Link
CONSERVATION OFFICER
Consultee Response
Not archived · Council Link
CONSERVATION OFFICER
Consultee Response
Not archived · Council Link
CONSERVATION OFFICER
Consultee Response
Not archived · Council Link
Decision Notice
Decision Notice
Not archived · Council Link
DELEGATED REPORT
Delegated Decision
Not archived · Council Link
DESIGN ACCESS AND HERITAGE STATEMENT
Report/Statement
Not archived · Council Link
E-MAIL FROM AGENT - AMENDED PLANS
Application Correspondence
Not archived · Council Link
EXISTING ELEVATIONS
Plan/Drawing
Not archived · Council Link
EXISTING FLOOR PLAN 3-3
Plan/Drawing
Not archived · Council Link
EXISTING FLOOR PLANS 1-3
Plan/Drawing
Not archived · Council Link
EXISTING FLOOR PLANS 2-3
Plan/Drawing
Not archived · Council Link
EXTENSION OF TIME
Application Correspondence
Not archived · Council Link
EXTENSION OF TIME
Application Correspondence
Not archived · Council Link
EXTENSION OF TIME
Application Correspondence
Not archived · Council Link
EXTENSION OF TIME
Application Correspondence
Not archived · Council Link
EXTENSION OF TIME
Application Correspondence
Not archived · Council Link
EXTENSION OF TIME
Application Correspondence
Not archived · Council Link
EXTENSION OF TIME
Application Correspondence
Not archived · Council Link
HISTORIC ENGLAND
Consultee Response
Not archived · Council Link
LETTER TO AGENT
Application Correspondence
Not archived · Council Link
LOCAL HIGHWAY AUTHORITY
Consultee Response
Not archived · Council Link
NATURAL ENGLAND
Consultee Response
Not archived · Council Link
NORTHUMBRIA POLICE
Consultee Response
Not archived · Council Link
Press Notice
Press Notice
Not archived · Council Link
PROPOSED ELEVATIONS
Superseded
Not archived · Council Link
PROPOSED ELEVATIONS
Amended Plans/Drawing
Not archived · Council Link
Superseded
Archived · Council Link
Amended Plans/Drawing
Archived · Council Link
Superseded
Archived · Council Link
Amended Plans/Drawing
Archived · Council Link
Amended Plans/Drawing
Archived · Council Link
Superseded
Archived · Council Link
Site Notice
Site Notice
Not archived · Council Link

Take Action

Make your voice heard. Authorities need to hear from people who support new homes.

✉️ Write Email in Support View on Council Portal