← Back to Sunderland City Council

Status

Current
Received
19 Jun 2025
New dwellings
n/a

Summary

Construction of 58 dwellings with access, landscaping, open space and SuDS.

Full Proposal

Construction of No.58 Dwellings associated Access, Landscaping, Open Space and SuDS.

Documents

AIR QUALITY ASSESSMENT
Report/Statement
Not archived · Council Link
APPENDIX 1 - HOUSING TENURE PLAN - DUBMIRE
Amended Plans/Drawing
Not archived · Council Link
APPLICATIONFORMREDACTED
Application Form Redacted
Not archived · Council Link
ARBORICULTURAL IMPACT ASSESSMENT
Report/Statement
Not archived · Council Link
ARCHAEOLOGICAL DESK BASED ASSESSMENT
Report/Statement
Not archived · Council Link
ASSESSMENT OF AFFORDABLE HOUSING PROVISION
Report/Statement
Not archived · Council Link
BIODIVERSITY METRIC
Report/Statement
Not archived · Council Link
BIODIVERSITY NET GAIN ASSESSMENT
Report/Statement
Not archived · Council Link
BREEDING BIRD SURVEY
Report/Statement
Not archived · Council Link
COAL AUTHORITY
Consultee Response
Not archived · Council Link
COLIN GREENHOW - REQUEST TO SPEAK
Representation - Object Redacted
Not archived · Council Link
COMPLIANCE PLANS - THE BARNDALE
Plan/Drawing
Not archived · Council Link
COMPLIANCE PLANS - THE BRAMPTON
Plan/Drawing
Not archived · Council Link
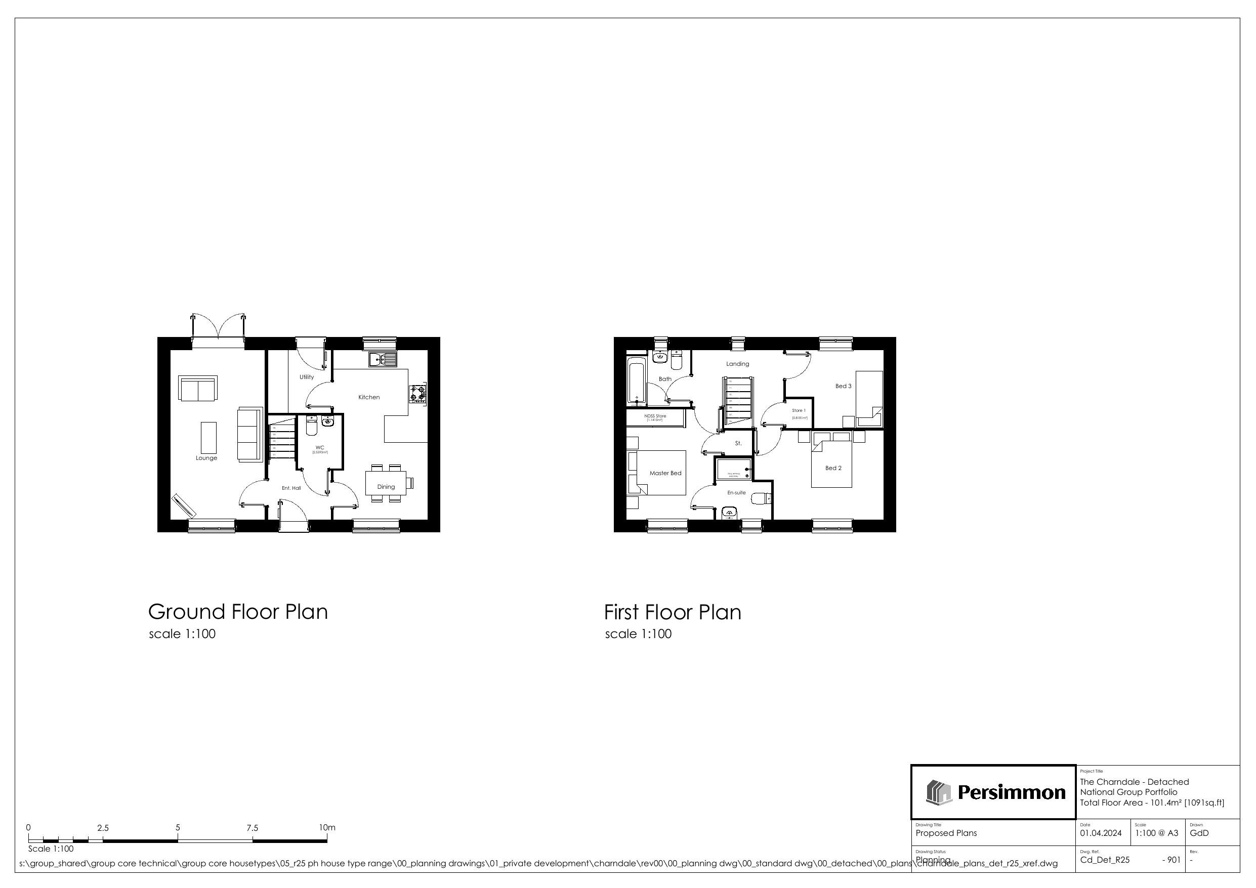
COMPLIANCE PLANS - THE CHARNDALE
Plan/Drawing
Not archived · Council Link
COMPLIANCE PLANS - THE HALDON
Plan/Drawing
Not archived · Council Link
COMPLIANCE PLANS - THE HALDON (MID)
Plan/Drawing
Not archived · Council Link
COMPLIANCE PLANS - THE KENNET
Plan/Drawing
Not archived · Council Link
COMPLIANCE PLANS - THE KINGLEY
Plan/Drawing
Not archived · Council Link
COMPLIANCE PLANS - THE SAUNTON
Plan/Drawing
Not archived · Council Link
COMPLIANCE PLANS - THE SHERWOOD
Plan/Drawing
Not archived · Council Link
COMPLIANCE PLANS - THE SILVERDALE
Plan/Drawing
Not archived · Council Link
COMPLIANCE PLANS- THE ADDLEBROUGH
Plan/Drawing
Not archived · Council Link
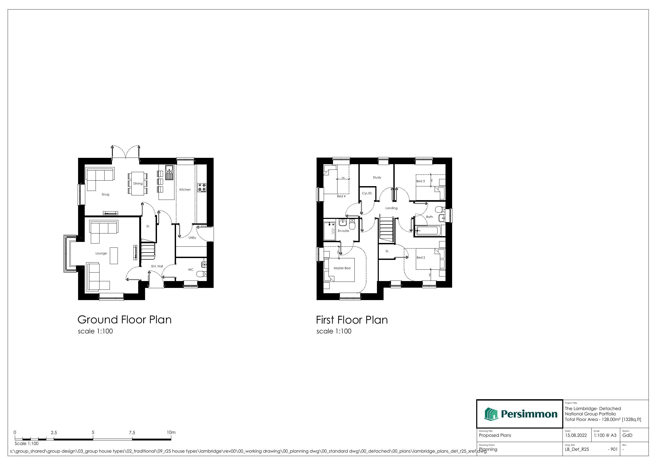
COMPLIANCE PLANS- THE LAMBRIDGE
Plan/Drawing
Not archived · Council Link
COMPLIANCE PLANS- THE RIVINGTON
Plan/Drawing
Not archived · Council Link
CONSERVATION OFFICER
Consultee Response
Not archived · Council Link
CONSTRUCTION MANAGEMENT PLAN
Report/Statement
Not archived · Council Link
CONSTRUCTION METHOD STATEMENT
Report/Statement
Not archived · Council Link
CONTAMINATED LAND OFFICER
Consultee Response
Not archived · Council Link
COUNTY ARCHAEOLOGIST
Consultee Response
Not archived · Council Link
COVERING LETTER
Application Correspondence
Not archived · Council Link
CPRE
Consultee Response
Not archived · Council Link
DESIGN AND ACCESS STATEMENT
Report/Statement
Not archived · Council Link
DETAILED LANDSCAPE PROPOSALS 1 OF 2
Plan/Drawing
Not archived · Council Link
DETAILED LANDSCAPE PROPOSALS 2 OF 2
Plan/Drawing
Not archived · Council Link
ECOLOGICAL IMPACT ASSESSMENT
Report/Statement
Not archived · Council Link
ECOLOGY
Consultee Response
Not archived · Council Link
EDUCATION
Consultee Response
Not archived · Council Link
ENVIRONMENT AGENCY
Consultee Response
Not archived · Council Link
ENVIRONMENTAL HEALTH OFFICER
Consultee Response
Not archived · Council Link
EXTENSION OF TIME
Application Correspondence
Not archived · Council Link
EXTENSION OF TIME LETTER - REDACTED
Application Correspondence Redacted
Not archived · Council Link
FIRE AND RESCUE
Consultee Response
Not archived · Council Link
FLOOD RISK ASSESSMENT AND DRAINAGE STRATEGY
Report/Statement
Not archived · Council Link
GROUND GAS ASSESSMENT
Report/Statement
Not archived · Council Link
INDICATIVE SITE CROSS SECTIONS
Plan/Drawing
Not archived · Council Link
J DOBSON REPRESENTATION OBJECT REDACTED
Representation - Object Redacted
Not archived · Council Link
JAMESON TATE - REQUEST TO SPEAK
Representation - Object Redacted
Not archived · Council Link
LANDSCAPE MASTERPLAN
Plan/Drawing
Not archived · Council Link
LANDSCAPE PROPOSALS OFFSITE BNG
Plan/Drawing
Not archived · Council Link
LEAD LOCAL FLOOD AUTHORITY
Consultee Response
Not archived · Council Link
LEAD LOCAL FLOOD AUTHORITY
Consultee Response
Not archived · Council Link
LEE TATE REQUEST TO SPEAK REDACTED
Application Correspondence
Not archived · Council Link
LETTER TO AGENT
Application Correspondence
Not archived · Council Link
LETTER TO AGENT
Application Correspondence
Not archived · Council Link
LISA TEARE REQUEST TO SPEAK REDACTED
Application Correspondence
Not archived · Council Link
LOCAL HIGHWAY AUTHORITY
Consultee Response
Not archived · Council Link
Location Plan
Location Plan
Not archived · Council Link
MATERIALS LAYOUT
Plan/Drawing
Not archived · Council Link
MISS W S WONG REPRESENTATION OBJECT REDACTED
Representation - Object Redacted
Not archived · Council Link
MR S K WONG REPRESENTATION OBJECT REDACTED
Representation - Object Redacted
Not archived · Council Link
MRS L K WONG REPRESENTATION OBJECT REDACTED
Representation - Object Redacted
Not archived · Council Link
NATURAL ENGLAND
Consultee Response
Not archived · Council Link
NOISE ASSESSMENT
Report/Statement
Not archived · Council Link
NORTHERN POWERGRID
Superseded
Not archived · Council Link
NORTHERN POWERGRID
Superseded
Not archived · Council Link
NORTHERN POWERGRID
Consultee Response
Not archived · Council Link
NORTHERN POWERGRID (PLAN)
Consultee Response
Not archived · Council Link
NORTHUMBRIA POLICE
Consultee Response
Not archived · Council Link
NORTHUMBRIAN WATER
Consultee Response
Not archived · Council Link
OBJECTION
Representation - Object Redacted
Not archived · Council Link
OFF-SITE BNG PLAN
Plan/Drawing
Not archived · Council Link
OPEN SPACE ASSESSMENT
Report/Statement
Not archived · Council Link
PETITION OBJECTION - REDACTED
Representation - Object Redacted
Not archived · Council Link
PHASE 1 GEOENVIRONMENTAL APPRAISAL AND COAL MINING RISK ASSESSMENT
Report/Statement
Not archived · Council Link
PHASE 2 GEOENVIRONMENTAL APPRAISAL
Report/Statement
Not archived · Council Link
PLANNING POLICY
Consultee Response
Not archived · Council Link
PLANNING STATEMENT
Report/Statement
Not archived · Council Link
Press Notice
Press Notice
Not archived · Council Link
PROPOSED DRAINAGE SHEET 1 OF 3
Plan/Drawing
Not archived · Council Link
PROPOSED DRAINAGE SHEET 2 OF 3
Plan/Drawing
Not archived · Council Link
PROPOSED DRAINAGE SHEET 3 OF 3
Plan/Drawing
Not archived · Council Link
PROPOSED FFLS SHEET 2 OF 2
Plan/Drawing
Not archived · Council Link
PROPOSED FFLS SHEET 2 OF 2
Plan/Drawing
Not archived · Council Link
PROPOSED FLOOD ROUTING
Plan/Drawing
Not archived · Council Link
PROPOSED HOUSETYPE BOOKLET
Report/Statement
Not archived · Council Link
Plan/Drawing
Archived · Council Link
Plan/Drawing
Archived · Council Link
Plan/Drawing
Archived · Council Link
Plan/Drawing
Archived · Council Link
Plan/Drawing
Archived · Council Link
Plan/Drawing
Archived · Council Link
Plan/Drawing
Archived · Council Link
Plan/Drawing
Archived · Council Link
Plan/Drawing
Archived · Council Link
PROPOSED VILLAGE ELEVATION - THE ADDLEBROUGH
Plan/Drawing
Not archived · Council Link
PROPOSED VILLAGE ELEVATION - THE BARNDALE
Plan/Drawing
Not archived · Council Link
PROPOSED VILLAGE ELEVATION - THE BRAMPTON
Plan/Drawing
Not archived · Council Link
PROPOSED VILLAGE ELEVATION - THE CHARNDALE
Plan/Drawing
Not archived · Council Link
PROPOSED VILLAGE ELEVATION - THE HALDON
Plan/Drawing
Not archived · Council Link
PROPOSED VILLAGE ELEVATION - THE HALDON
Plan/Drawing
Not archived · Council Link
PROPOSED VILLAGE ELEVATION - THE KENNET
Plan/Drawing
Not archived · Council Link
PROPOSED VILLAGE ELEVATION - THE KINGLEY
Plan/Drawing
Not archived · Council Link
PROPOSED VILLAGE ELEVATION - THE LAMBRIDGE
Plan/Drawing
Not archived · Council Link
PROPOSED VILLAGE ELEVATION - THE RIVINGTON
Plan/Drawing
Not archived · Council Link
PROPOSED VILLAGE ELEVATION - THE SAUNTON
Plan/Drawing
Not archived · Council Link
PROPOSED VILLAGE ELEVATION - THE SHERWOOD
Plan/Drawing
Not archived · Council Link
PROPOSED VILLAGE ELEVATION - THE SILVERDALE
Plan/Drawing
Not archived · Council Link
REPRESENTATION - OBJECT
Representation - Object
Not archived · Council Link
REPRESENTATION - OBJECT
Representation - Object
Not archived · Council Link
REPRESENTATION - OBJECT
Representation - Object
Not archived · Council Link
REPRESENTATION - REDACTED
Representation - Redacted
Not archived · Council Link
REPRESENTATION OBJECT - REDACTED
Representation - Object Redacted
Not archived · Council Link
REPRESENTATION OBJECT - REDACTED
Representation - Object Redacted
Not archived · Council Link
REQUEST TO SPEAK
Representation - Redacted
Not archived · Council Link
REQUEST TO SPEAK
Representation - Object Redacted
Not archived · Council Link
S106 HEADS OF TERMS
Report/Statement
Not archived · Council Link
SANDRA HOBSON- TATE REQUEST TO SPEAK REDACTED
Representation - Object Redacted
Not archived · Council Link
SANDRA HOBSON-TATE REPRESENTATION OBJECT REDACTED
Representation - Object Redacted
Not archived · Council Link
SETTLEMENT BREAK STATEMENT
Report/Statement
Not archived · Council Link
SIMON WISE REPRESENTATION OBJECT REDACTED
Representation - Object Redacted
Not archived · Council Link
SUSTAINABILITY STATEMENT
Report/Statement
Not archived · Council Link
TRANSPORT STATEMENT
Report/Statement
Not archived · Council Link
WORKING LAYOUT
Plan/Drawing
Not archived · Council Link

Take Action

Make your voice heard. Authorities need to hear from people who support new homes.

✉️ Write Email in Support View on Council Portal