← Back to Sunderland City Council

Status

Current
Received
26 Jun 2025
New dwellings
n/a

Full Proposal

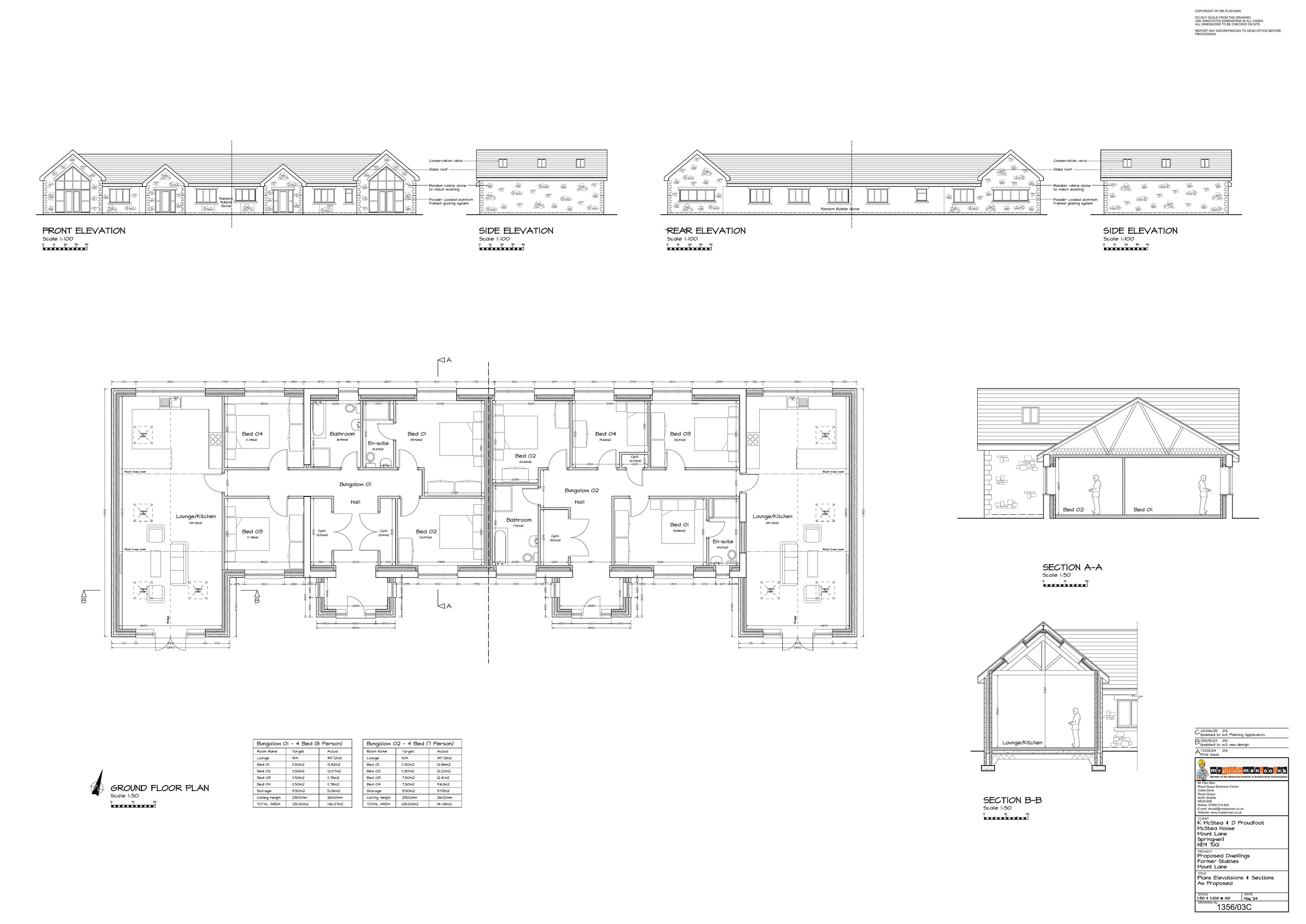
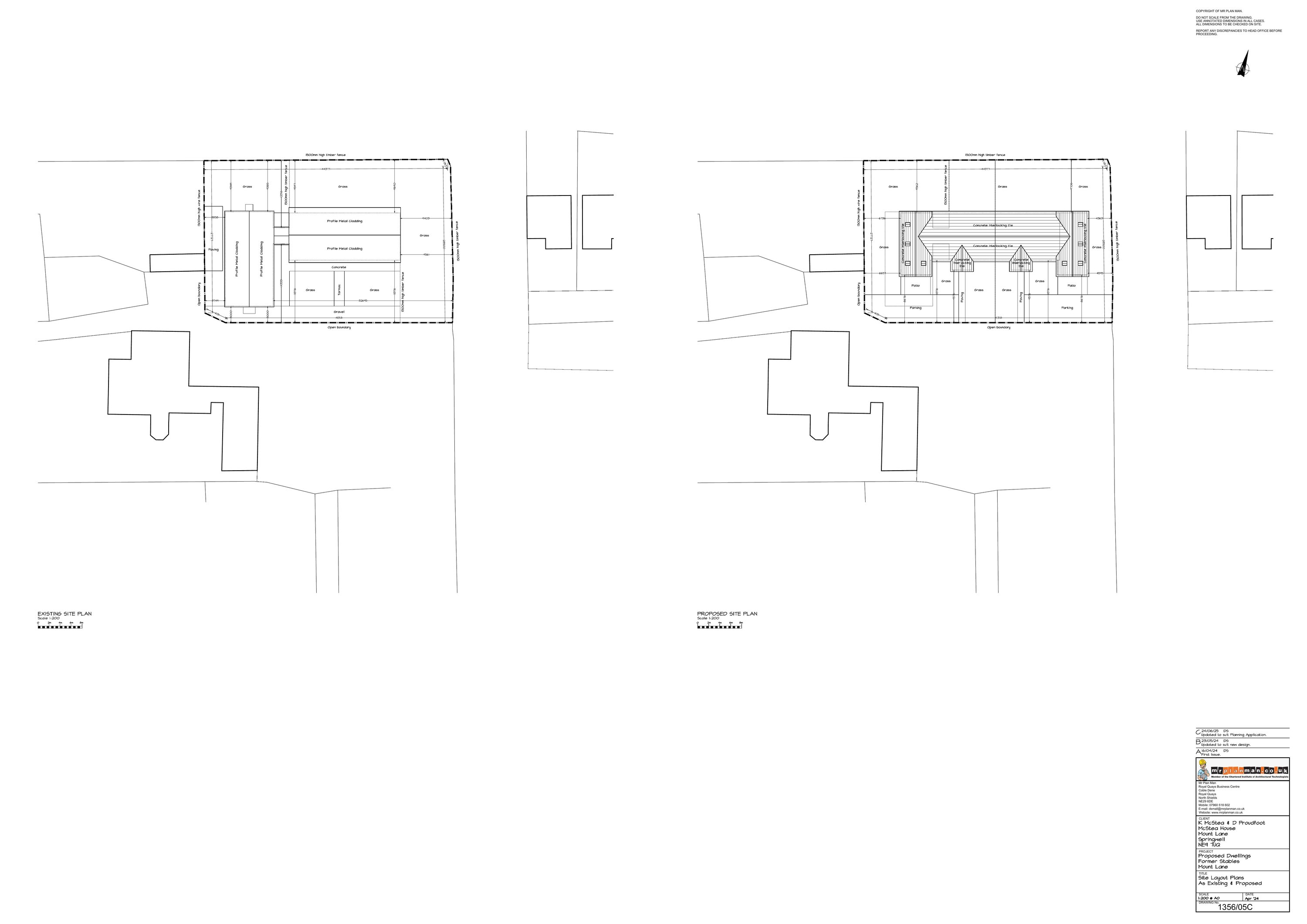
Change of use of redundant stables and creation of 2no dwellings. (Updated BNG information received 12.01.2026)

Documents

APPLICATIONFORMREDACTED
Application Form Redacted
Not archived · Council Link
BAT SURVEY
Report/Statement
Not archived · Council Link
BAT SURVEY V.1
Report/Statement
Not archived · Council Link
BNG CALCULATION
Application Correspondence
Not archived · Council Link
BNG METRIC
Other
Not archived · Council Link
BNG PLAN
Application Correspondence
Not archived · Council Link
CONTAMINATED LAND COMMENTS
Consultee Response
Not archived · Council Link
COUNTY ARCHAEOLOGIST CONSULTEE RESPONSE
Consultee Response
Not archived · Council Link
ECOLOGY COMMENTS
Consultee Response
Not archived · Council Link
ENGINEERS COMMENTS
Consultee Response
Not archived · Council Link
ENVIRONMENTAL HEALTH CONSULTEE RESPONSE
Consultee Response
Not archived · Council Link
Plan/Drawing
Archived · Council Link
EXTENSION OF TIME
Application Correspondence
Not archived · Council Link
LOCATION PLAN
Location Plan
Not archived · Council Link
PHASE 1 DESKTOP STUDY
Report/Statement
Not archived · Council Link
PLAND AND ELEVATIONS AS EXISTING
Plan/Drawing
Not archived · Council Link
PLANNING POLICY COMMENTS
Consultee Response
Not archived · Council Link
PLANNING STATEMENT
Report/Statement
Not archived · Council Link
PRESS NOTICE
Press Notice
Not archived · Council Link
Plan/Drawing
Archived · Council Link
Plan/Drawing
Archived · Council Link
SCREENING_ASSESSMENT_FORM_FILLABLE_PDF__V12.2__FERNHILL STABLES COU
Report/Statement
Not archived · Council Link
SITE NOTICE LOCATION
Site Notice
Not archived · Council Link
SITE NOTICE LOCATION
Site Notice
Not archived · Council Link
SITE NOTICE POSTED
Site Notice
Not archived · Council Link
Plan/Drawing
Archived · Council Link
SMALL SITES METRIC
Other
Not archived · Council Link
SSSI ADVICE NOTE
Consultee Response
Not archived · Council Link

Take Action

Make your voice heard. Authorities need to hear from people who support new homes.

✉️ Write Email in Support View on Council Portal