← Back to Sunderland City Council

Status

Current
Received
11 Nov 2025
New dwellings
n/a

Summary

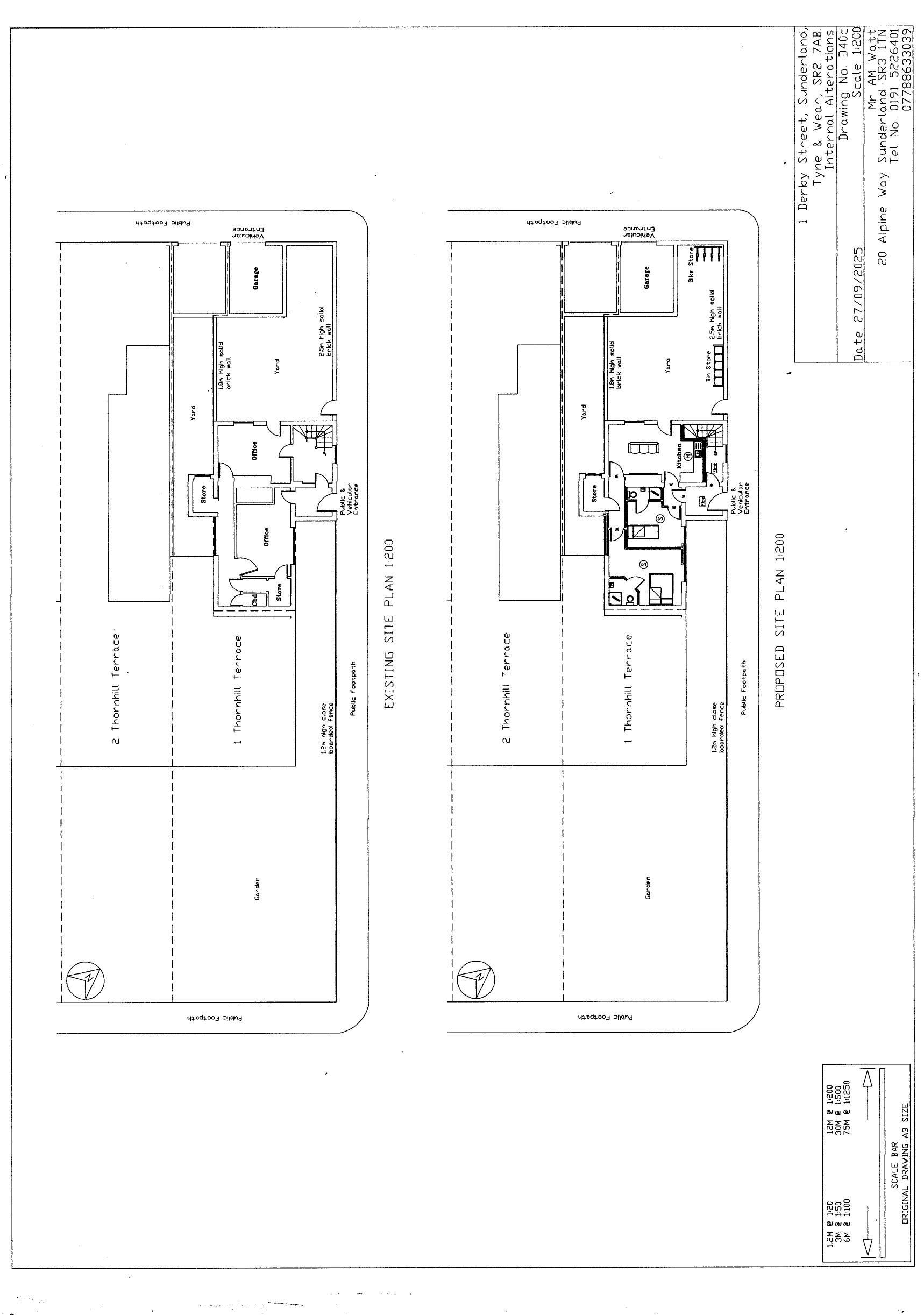
Change of use from vacant doctors surgery to two flats with front elevation alterations.

Full Proposal

Change of use from vacant doctors surgery to two flats including external alterations to front elevation.

Documents

APPLICATIONFORMREDACTED
Application Form Redacted
Not archived · Council Link
CONSERVATION TEAM COMMENTS
Consultee Response
Not archived · Council Link
CONSERVATION TEAM COMMENTS - ADDITIONAL INFORMATION
Consultee Response
Not archived · Council Link
DESIGN, ACCESS AND HERITAGE STATEMENT
Report/Statement
Not archived · Council Link
ENGINEERS COMMENTS
Consultee Response
Not archived · Council Link
EXISTING AND PROPOSED FRONT ELEVATIONS
Plan/Drawing
Not archived · Council Link
EXISTING AND PROPOSED ROOF PLANS
Plan/Drawing
Not archived · Council Link
LOCATION PLAN
Location Plan
Not archived · Council Link
POSTED SITE NOTICE
Site Notice
Not archived · Council Link
SSSI ADVICE NOTE
Consultee Response
Not archived · Council Link

Take Action

Make your voice heard. Authorities need to hear from people who support new homes.

✉️ Write Email in Support View on Council Portal