← Back to Surrey Heath Borough Council

Status

Registered
Received
06 Oct 2025
New dwellings
n/a

Summary

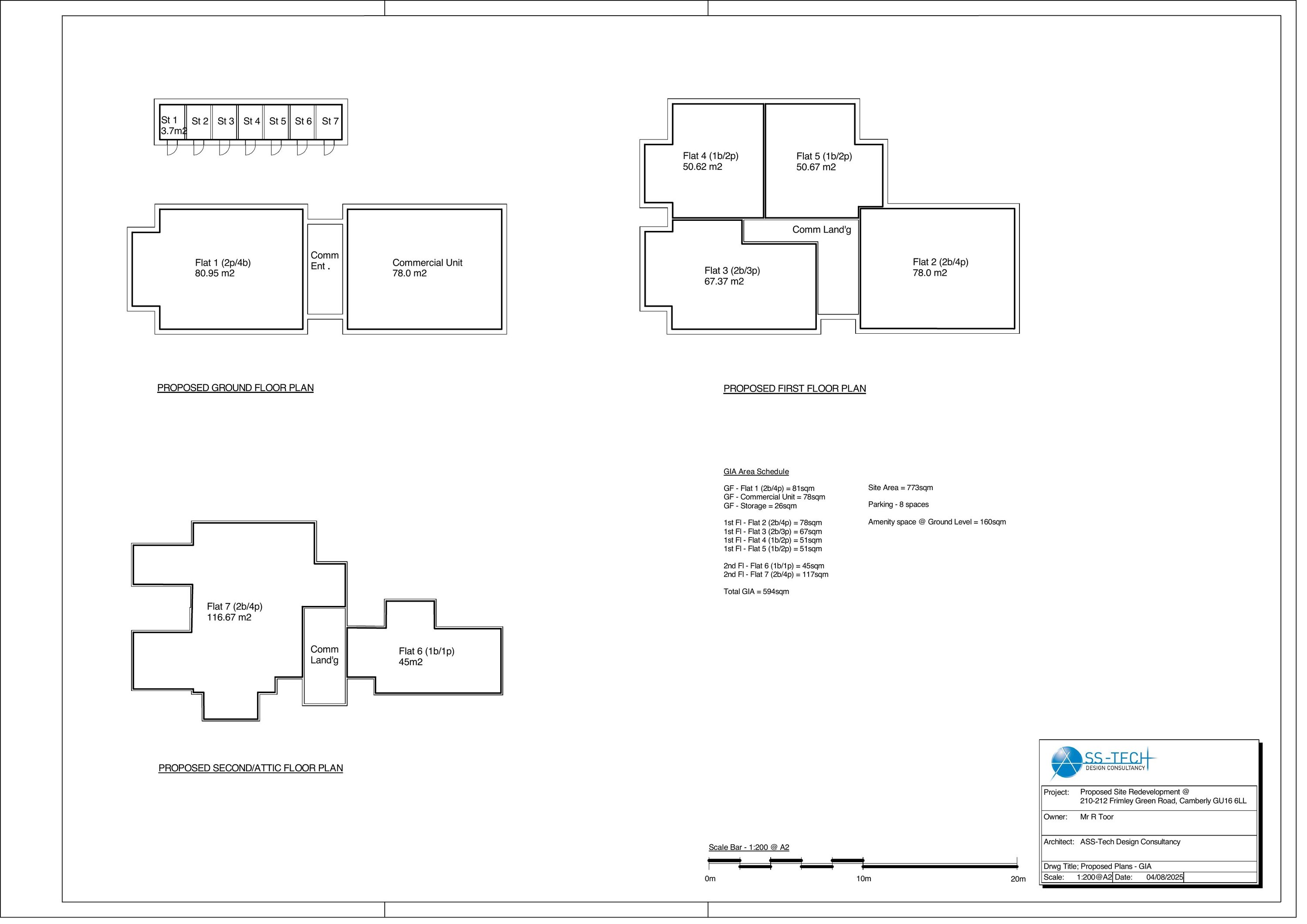
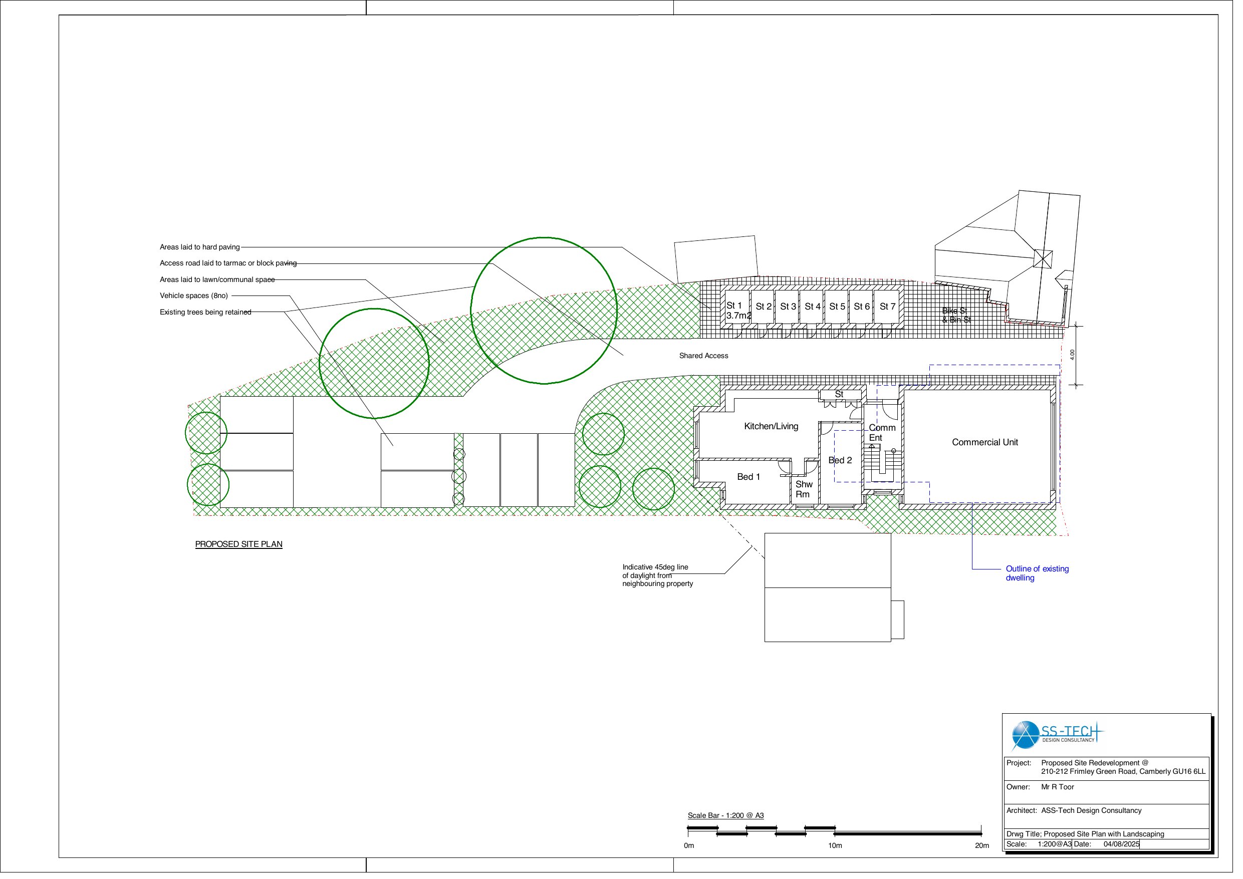
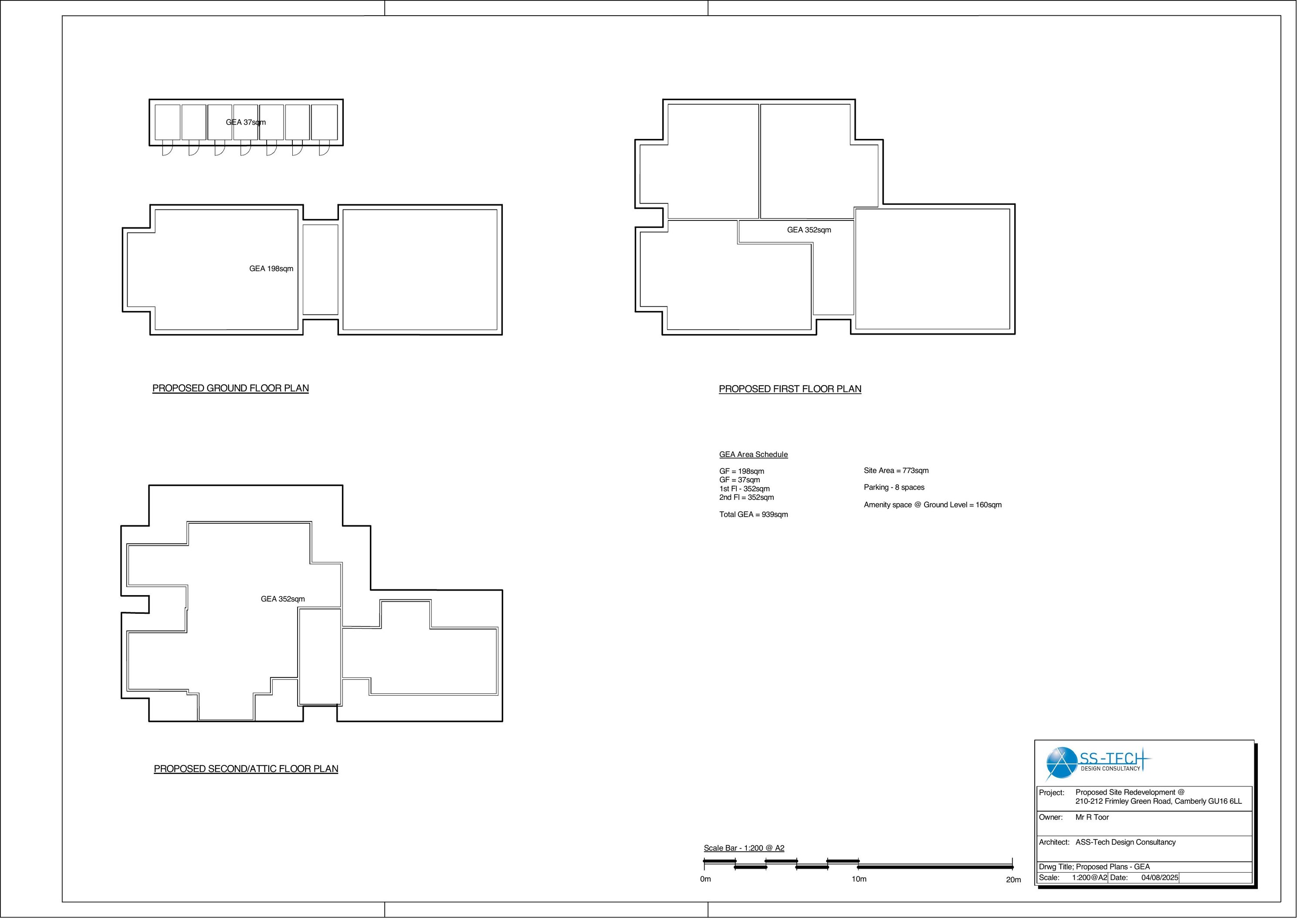
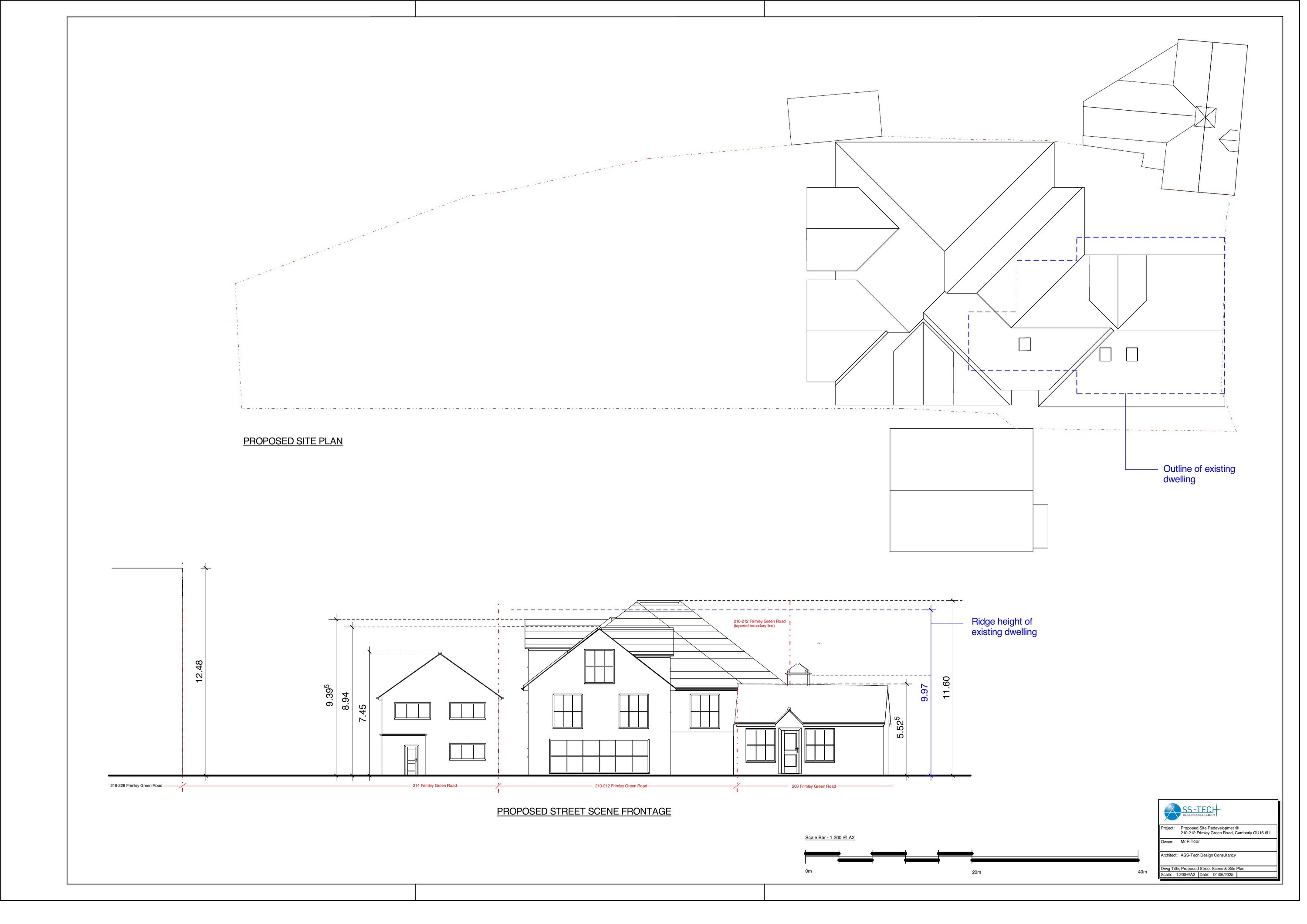
Three-storey mixed-use building: commercial ground floor and seven flats with landscaping, bin stores and parking.

Full Proposal

Erection of a three storey mixed use building, comprising of a commercial ground floor unit and 7no. residential flats at rear and first and second floor level with associated landscaping, bin stores and parking area following demolition of existing building and provision of new access.

Documents

APPLICATIONFORMREDACTED
Application Form
Not archived · Council Link
BAT ACTIVITY REPORT
Report
Not archived · Council Link
BIODIVERSITY STATEMENT
Report
Not archived · Council Link
CIL Forms
CIL Forms
Not archived · Council Link
COUNTY HIGHWAY AUTHORITY COMMENTS
Consultee Response
Not archived · Council Link
DESIGN AND ACCESS STATEMENT
Report
Not archived · Council Link
DRAINAGE ENGINEER COMMENTS
Consultee Response
Not archived · Council Link
ENERGY STATEMENT
Report
Not archived · Council Link
EXISTING ELEVATIONS
Plans
Not archived · Council Link
EXISTING FLOOR AND ROOF PLANS
Plans
Not archived · Council Link
LETTER RESPONSE FROM AGENT
Correspondence
Not archived · Council Link
LOCATION PLAN
Plans
Not archived · Council Link
MYTCHETT, FRIMLEY GREEN AND DEEPCUT SOCIETY OBJECTION
Objection Letter
Not archived · Council Link
Objection Letter
Objection Letter
Not archived · Council Link
Objection Letter
Objection Letter
Not archived · Council Link
Objection Letter
Objection Letter
Not archived · Council Link
Objection Letter
Objection Letter
Not archived · Council Link
Objection Letter
Objection Letter
Not archived · Council Link
Objection Letter
Objection Letter
Not archived · Council Link
Objection Letter
Objection Letter
Not archived · Council Link
Objection Letter
Objection Letter
Not archived · Council Link
Objection Letter
Objection Letter
Not archived · Council Link
Objection Letter
Objection Letter
Not archived · Council Link
Objection Letter
Objection Letter
Not archived · Council Link
Objection Letter
Objection Letter
Not archived · Council Link
Objection Letter
Objection Letter
Not archived · Council Link
Objection Letter
Objection Letter
Not archived · Council Link
Objection Letter
Objection Letter
Not archived · Council Link
Objection Letter
Objection Letter
Not archived · Council Link
OBJECTION LETTER AND PHOTOS
Objection Letter
Not archived · Council Link
OBJECTION LETTER AND PHOTOS
Objection Letter
Not archived · Council Link
OBJECTION LETTER AND PHOTOS
Objection Letter
Not archived · Council Link
OBJECTION LETTER AND PHOTOS
Objection Letter
Not archived · Council Link
OBJECTION LETTER AND PHOTOS
Objection Letter
Not archived · Council Link
OBJECTION LETTER AND PHOTOS
Objection Letter
Not archived · Council Link
OBJECTION LETTER AND PHOTOS
Objection Letter
Not archived · Council Link
OBJECTION LETTER AND PHOTOS
Objection Letter
Not archived · Council Link
OBJECTION LETTER AND PHOTOS
Objection Letter
Not archived · Council Link
OBJECTION LETTER AND PHOTOS
Objection Letter
Not archived · Council Link
OBJECTION LETTER AND PHOTOS
Objection Letter
Not archived · Council Link
OBJECTION LETTER AND PHOTOS
Objection Letter
Not archived · Council Link
OBJECTION LETTER AND PHOTOS
Objection Letter
Not archived · Council Link
OBJECTION LETTER AND PHOTOS
Objection Letter
Not archived · Council Link
OBJECTION LETTER AND PHOTOS
Objection Letter
Not archived · Council Link
OBJECTION LETTER AND PHOTOS
Objection Letter
Not archived · Council Link
OBJECTION LETTER AND PHOTOS
Objection Letter
Not archived · Council Link
OBJECTION LETTER AND PHOTOS
Objection Letter
Not archived · Council Link
OBJECTION LETTER AND PHOTOS
Objection Letter
Not archived · Council Link
OBJECTION LETTER AND PHOTOS
Objection Letter
Not archived · Council Link
OBJECTION LETTER AND PHOTOS
Objection Letter
Not archived · Council Link
OBJECTION LETTER AND PHOTOS
Objection Letter
Not archived · Council Link
OBJECTION LETTER AND PHOTOS
Objection Letter
Not archived · Council Link
OBJECTION LETTER AND PHOTOS
Objection Letter
Not archived · Council Link
OBJECTION LETTER AND PHOTOS
Objection Letter
Not archived · Council Link
OBJECTION LETTER AND PHOTOS
Objection Letter
Not archived · Council Link
OBJECTION LETTER AND PHOTOS
Objection Letter
Not archived · Council Link
OBJECTION LETTER AND PHOTOS
Objection Letter
Not archived · Council Link
OBJECTION LETTER AND PHOTOS
Objection Letter
Not archived · Council Link
OBJECTION LETTER AND PHOTOS
Objection Letter
Not archived · Council Link
OBJECTION LETTER AND PHOTOS
Objection Letter
Not archived · Council Link
OBJECTION LETTER AND PHOTOS
Objection Letter
Not archived · Council Link
OBJECTION LETTER AND PHOTOS
Objection Letter
Not archived · Council Link
OBJECTION LETTER AND PHOTOS
Objection Letter
Not archived · Council Link
OBJECTION LETTER AND PHOTOS
Objection Letter
Not archived · Council Link
OBJECTION LETTER AND PHOTOS
Objection Letter
Not archived · Council Link
OBJECTION LETTER AND PHOTOS
Objection Letter
Not archived · Council Link
ONLINE COMMENT
Objection Comment
Not archived · Council Link
ONLINE COMMENT
Objection Comment
Not archived · Council Link
ONLINE COMMENT
Objection Comment
Not archived · Council Link
ONLINE COMMENT
Objection Comment
Not archived · Council Link
ONLINE COMMENT
Objection Comment
Not archived · Council Link
ONLINE COMMENT
Objection Comment
Not archived · Council Link
ONLINE COMMENT
Objection Comment
Not archived · Council Link
ONLINE COMMENT
Objection Comment
Not archived · Council Link
ONLINE COMMENT
Objection Comment
Not archived · Council Link
ONLINE COMMENT
Objection Comment
Not archived · Council Link
ONLINE COMMENT
Objection Comment
Not archived · Council Link
ONLINE COMMENT
Objection Comment
Not archived · Council Link
PRELIMINARY ECOLOGICAL APPRAISAL REPORT
Report
Not archived · Council Link
PROPOSED ELEVATIONS
Plans
Not archived · Council Link
PROPOSED FLOOR AND ROOF PLANS
Plans
Not archived · Council Link
PROPOSED SECTIONS
Plans
Not archived · Council Link
SUSTAINABLE DRAINAGE STATEMENT
Report
Not archived · Council Link
TREE SURVEY REPORT
Report
Not archived · Council Link

Take Action

Make your voice heard. Authorities need to hear from people who support new homes.

✉️ Write Email in Support View on Council Portal