← Back to Surrey Heath Borough Council

Status

Registered
Received
22 Dec 2025
New dwellings
n/a

Full Proposal

Erection of three dwellings (one self-build), including landscaping and hardstanding following the demolition of the existing dwelling.

Documents

Application Form Redacted PDF
Application Form Redacted PDF
Not archived · Council Link
APPLICATIONFORMREDACTED
Application Form
Not archived · Council Link
BLOCK PLAN
Plans
Not archived · Council Link
BNG STATEMENT
Report
Not archived · Council Link
CIL Forms
CIL Forms
Not archived · Council Link
CIL Forms
CIL Forms
Not archived · Council Link
DESIGN AND ACCESS STATEMENT
General Correspondence
Not archived · Council Link
ENVIROMENTAL HEALTH RESPONSE
Consultee Response
Not archived · Council Link
EXISTING BLOCK PLAN
Plans
Not archived · Council Link
EXISTING FLOOR PLAN
Plans
Not archived · Council Link
JOINT WASTE SOLUTIONS
Consultee Response
Not archived · Council Link
LOCATION PLAN
Plans
Not archived · Council Link
ONLINE COMMENT
Objection Comment
Not archived · Council Link
ONLINE COMMENT
Objection Comment
Not archived · Council Link
ONLINE COMMENT
Objection Comment
Not archived · Council Link
PLANNING STATEMENT
Report
Not archived · Council Link
PROPOSED BLOCK PLAN
Plans
Not archived · Council Link
PROPOSED ELEVATIONS
Plans
Not archived · Council Link
PROPOSED ELEVATIONS
Plans
Not archived · Council Link
PROPOSED ELEVATIONS
Plans
Not archived · Council Link
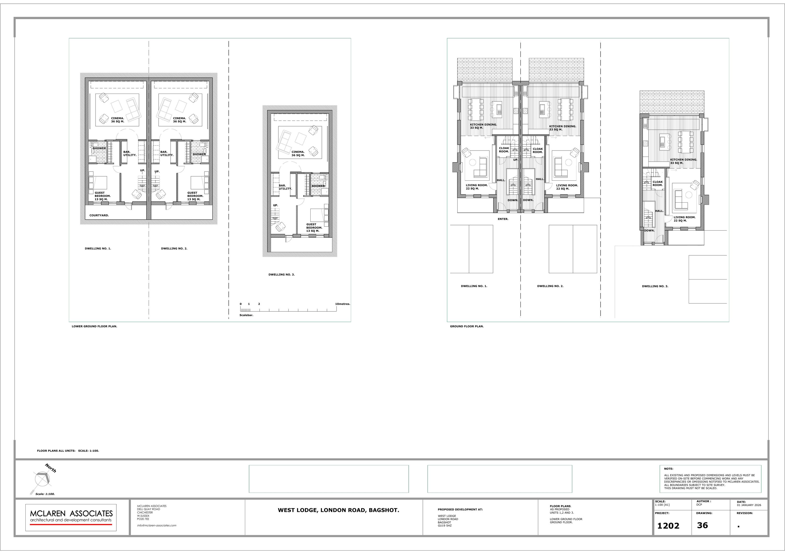
PROPOSED FLOOR PLANS
Plans
Not archived · Council Link
PROPOSED FLOOR PLANS
Plans
Not archived · Council Link
ROOF PLANS
Plans
Not archived · Council Link
SCC HIGHWAYS
Consultee Response
Not archived · Council Link
SELF BUILD EXEMPTION FORM
CIL Forms
Not archived · Council Link
SITE ARRANGEMENT
Plans
Not archived · Council Link
VOLUME CALCULATIONS
General Correspondence
Not archived · Council Link
WINDLESHAM PARISH COUNCIL
Consultee Response
Not archived · Council Link

Take Action

Make your voice heard. Authorities need to hear from people who support new homes.

✉️ Write Email in Support View on Council Portal