← Back to Sutton

Status

Prior Approval Not Required
Received
28 Feb 2025
New dwellings
n/a

Summary

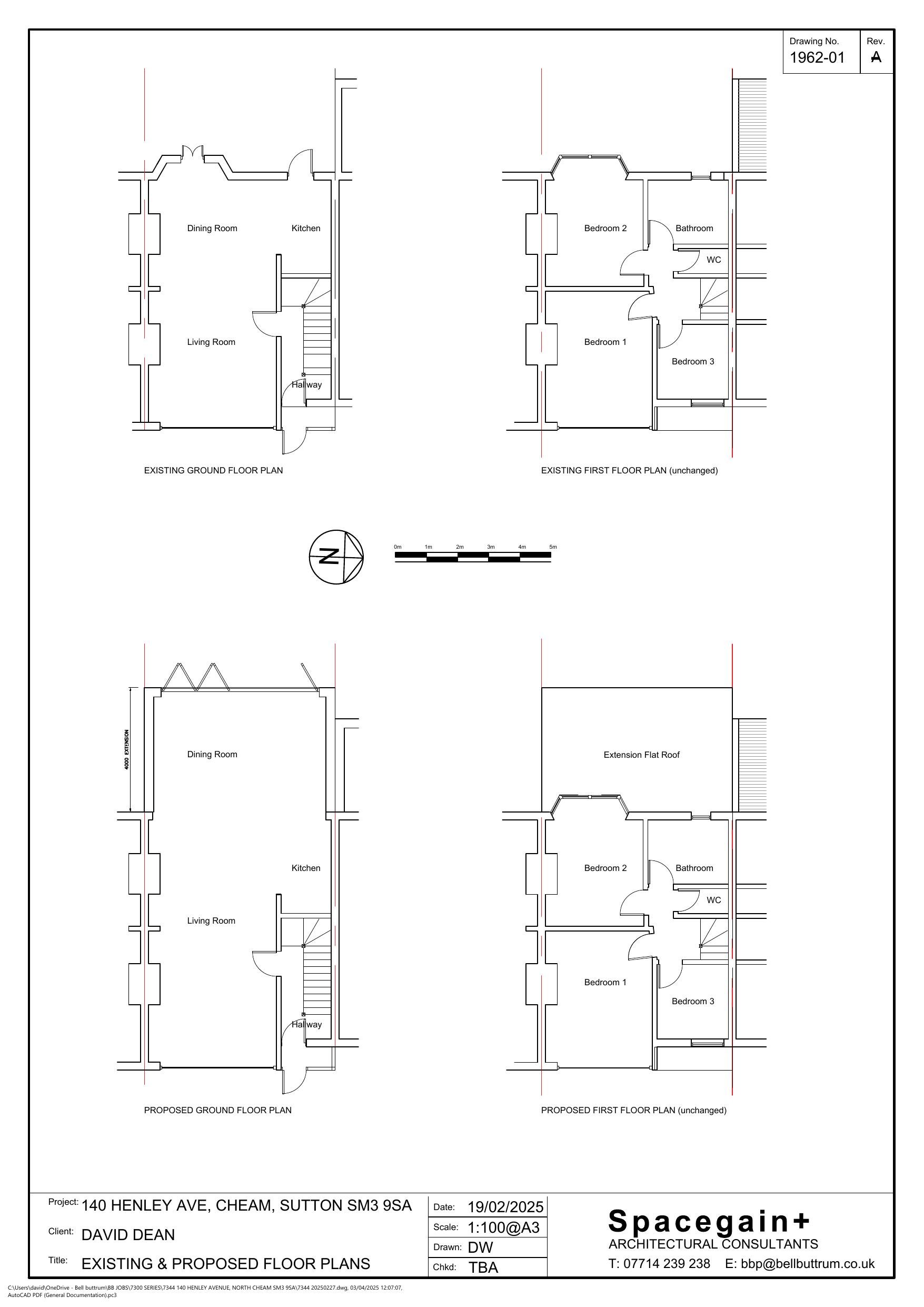
Prior approval for single-storey rear extension projecting 4m from the original house.

Full Proposal

Prior Approval for a single storey rear extension projecting from the rear of the original house by 4m.

Documents

Application Form (No personal data)
Application Form
Not archived · Council Link
DECISION NOTICE NOT REQUIRED PAEXT
Decision
Not archived · Council Link
DESIGN AND ACCESS STATEMENT
Supporting Document
Not archived · Council Link
EXISTING AND PROPOSED ELEVATIONS
Revised Drawing
Not archived · Council Link
Revised Drawing
Archived · Council Link
EXISTING AND PROPOSED SIDE ELEVATIONS/SECTIONS
Drawing
Not archived · Council Link
PD OFFICER REPORT
Officer Report
Not archived · Council Link

Take Action

Make your voice heard. Authorities need to hear from people who support new homes.

✉️ Write Email in Support View on Council Portal