← Back to Sutton

Status

Pending Consideration
Received
18 Mar 2025
New dwellings
n/a

Summary

First-floor extension above garages providing six self-contained residential units with amenity, parking, lift and refuse/cycle stores.

Full Proposal

Erection of a first floor extension with accommodation in roof space above existing garages to provide 6 self contained residential units and provision of private amenity spaces, refuse and cycle stores, parking at front, a passenger lift and two external staircases.

Documents

Application Form (No personal data)
Application Form
Not archived · Council Link
Arboricultural Report
Drawing
Not archived · Council Link
ARBORICULTURAL REPORT FOR BUCKINGHAM COURT AND SANDRINGHAM COURT REV C
Revised Supporting Document
Not archived · Council Link
BERS REPORT
Supporting Document
Not archived · Council Link
BIODIVERSITY NET GAIN ASSESSMENT
Supporting Document
Not archived · Council Link
CONCEPT FIRE STRATEGY
Supporting Document
Not archived · Council Link
COVER LETTER
Supporting Document
Not archived · Council Link
DAYLIGHT AND SUNLIGHT REPORT - NEIGHBOUR IMPACT
Supporting Document
Not archived · Council Link
DAYLIGHT AND SUNLIGHT REPORT - NEW DWELLINGS
Supporting Document
Not archived · Council Link
DESIGN AND ACCESS STATEMENT
Supporting Document
Not archived · Council Link
DORSET ROAD - GARAGE ROOF PROFESSIONAL OPINION
Revised Supporting Document
Not archived · Council Link
DORSET ROAD RESPONSE
Revised Supporting Document
Not archived · Council Link
ENERGY STATEMENT
Supporting Document
Not archived · Council Link
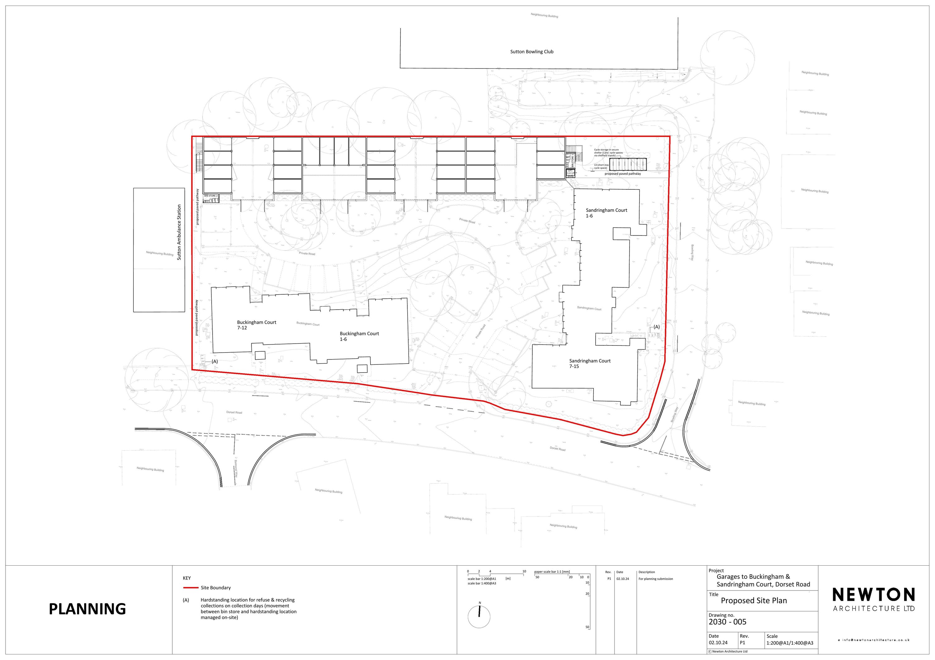
Existing Block Plan
Drawing
Not archived · Council Link
Existing Elevations
Drawing
Not archived · Council Link
Existing Ground Floor Plan
Drawing
Not archived · Council Link
Existing Roof Plan
Drawing
Not archived · Council Link
EXISTING SECTIONS
Revised Drawing
Not archived · Council Link
Existing Sections
Drawing
Not archived · Council Link
Drawing
Archived · Council Link
EXISTING SITE SECTIONS
Revised Drawing
Not archived · Council Link
Existing Site Sections
Drawing
Not archived · Council Link
FOUNDATION RECOMMENDATIONS
Supporting Document
Not archived · Council Link
GARAGES TO DORSET ROAD BUCKINGHAM AND SANDRINGHAM COURT-
Revised Supporting Document
Not archived · Council Link
GARAGES TO DORSET ROAD BUCKINGHAM AND SANDRINGHAM COURT-
Revised Supporting Document
Not archived · Council Link
J MITCHELL_ FLAT 11 SANDRINGHAM COURT, 11 DORSET ROAD
Public Comment
Not archived · Council Link
Location Plan
Drawing
Not archived · Council Link
M BENTLEY 11 BRASTED CLOSE
Public Comment
Not archived · Council Link
MAGNA TRANSPORT LETTER - 05.06.2025
Revised Supporting Document
Not archived · Council Link
P TENCHEVA 12 BUCKINGHAM COURT 9 DORSET ROAD_ PHOTOS TO ACCOMPANY COMMENTS
Public Comment
Not archived · Council Link
PLANNING STATEMENT
Supporting Document
Not archived · Council Link
PRELIMINARY ECOLOGICAL APPRAISAL AND ROOST ASSESSMENT
Supporting Document
Not archived · Council Link
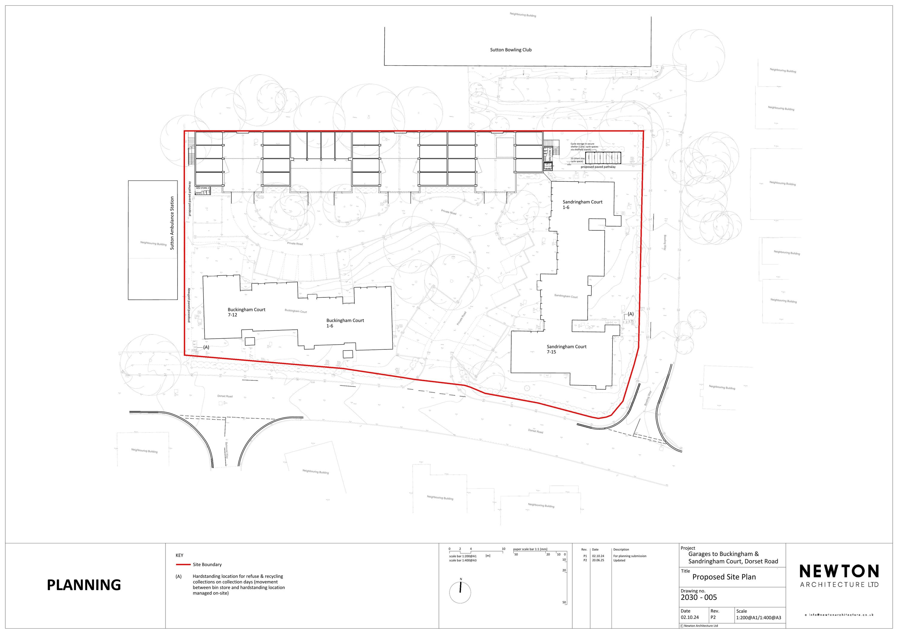
Proposed Block Plan
Drawing
Not archived · Council Link
PROPOSED ELEVATIONS
Revised Drawing
Not archived · Council Link
Proposed Elevations
Drawing
Not archived · Council Link
PROPOSED FIRST FLOOR PLAN
Revised Drawing
Not archived · Council Link
Proposed First Floor Plan
Drawing
Not archived · Council Link
PROPOSED GROUND FLOOR PLAN
Revised Drawing
Not archived · Council Link
Proposed Ground Floor Plan
Drawing
Not archived · Council Link
Proposed Roof Plan
Drawing
Not archived · Council Link
PROPOSED ROOF PLAN
Revised Drawing
Not archived · Council Link
Proposed Second Floor Plan
Drawing
Not archived · Council Link
PROPOSED SECOND FLOOR PLAN
Revised Drawing
Not archived · Council Link
PROPOSED SECTIONS
Revised Drawing
Not archived · Council Link
Proposed Sections
Drawing
Not archived · Council Link
Revised Drawing
Archived · Council Link
Drawing
Archived · Council Link
Proposed Site Sections
Drawing
Not archived · Council Link
PROPOSED SITE SECTIONS
Revised Drawing
Not archived · Council Link
Public Comment
Public Comment
Not archived · Council Link
PUBLIC COMMENT(FULL)
Public Comment
Not archived · Council Link
PUBLIC COMMENT(FULL)
Public Comment
Not archived · Council Link
PUBLIC COMMENT(FULL)
Public Comment
Not archived · Council Link
PUBLIC COMMENT(FULL)
Public Comment
Not archived · Council Link
PUBLIC COMMENT(FULL)
Public Comment
Not archived · Council Link
PUBLIC COMMENT(FULL)
Public Comment
Not archived · Council Link
PUBLIC COMMENT(FULL)
Public Comment
Not archived · Council Link
PUBLIC COMMENT(FULL)
Public Comment
Not archived · Council Link
PUBLIC COMMENT(FULL)
Public Comment
Not archived · Council Link
PUBLIC COMMENT(FULL)
Public Comment
Not archived · Council Link
PUBLIC COMMENT(FULL)
Public Comment
Not archived · Council Link
PUBLIC COMMENT(FULL)
Public Comment
Not archived · Council Link
PUBLIC COMMENT(FULL)
Public Comment
Not archived · Council Link
PUBLIC COMMENT(FULL)
Public Comment
Not archived · Council Link
PUBLIC COMMENT(FULL)
Public Comment
Not archived · Council Link
PUBLIC COMMENT(FULL)
Public Comment
Not archived · Council Link
PUBLIC COMMENT(FULL)
Public Comment
Not archived · Council Link
PUBLIC COMMENT(FULL)
Public Comment
Not archived · Council Link
PUBLIC COMMENT(FULL)
Public Comment
Not archived · Council Link
PUBLIC COMMENT(FULL)
Public Comment
Not archived · Council Link
PUBLIC COMMENT(FULL)
Public Comment
Not archived · Council Link
PUBLIC COMMENT(FULL)
Public Comment
Not archived · Council Link
PUBLIC COMMENT(FULL)
Public Comment
Not archived · Council Link
PUBLIC COMMENT(FULL)
Public Comment
Not archived · Council Link
PUBLIC COMMENT(FULL)
Public Comment
Not archived · Council Link
PUBLIC COMMENT(FULL)
Public Comment
Not archived · Council Link
PUBLIC COMMENT(FULL)
Public Comment
Not archived · Council Link
PUBLIC COMMENT(FULL)
Public Comment
Not archived · Council Link
PUBLIC COMMENT(FULL)
Public Comment
Not archived · Council Link
PUBLIC COMMENT(FULL)
Public Comment
Not archived · Council Link
S KAZMI 7 BUCKINGHAM COURT 9 DORSET ROAD_ TO ACCOMPANY ONLINE COMMENTS
Public Comment
Not archived · Council Link
Site Notice
Site Notice
Not archived · Council Link
Site Notice
Site Notice
Not archived · Council Link
STATUTORY BIODIVERSITY METRIC CALCULATION TOOL
Supporting Document
Not archived · Council Link
SUDS REPORT
Supporting Document
Not archived · Council Link
SWEPT PATH ANALYSIS
Revised Supporting Document
Not archived · Council Link
SWEPT PATH ANALYSIS
Revised Supporting Document
Not archived · Council Link

Take Action

Make your voice heard. Authorities need to hear from people who support new homes.

✉️ Write Email in Support View on Council Portal