← Back to Sutton

Status

Prior Approval Not Required
Received
24 Jul 2025
New dwellings
n/a

Summary

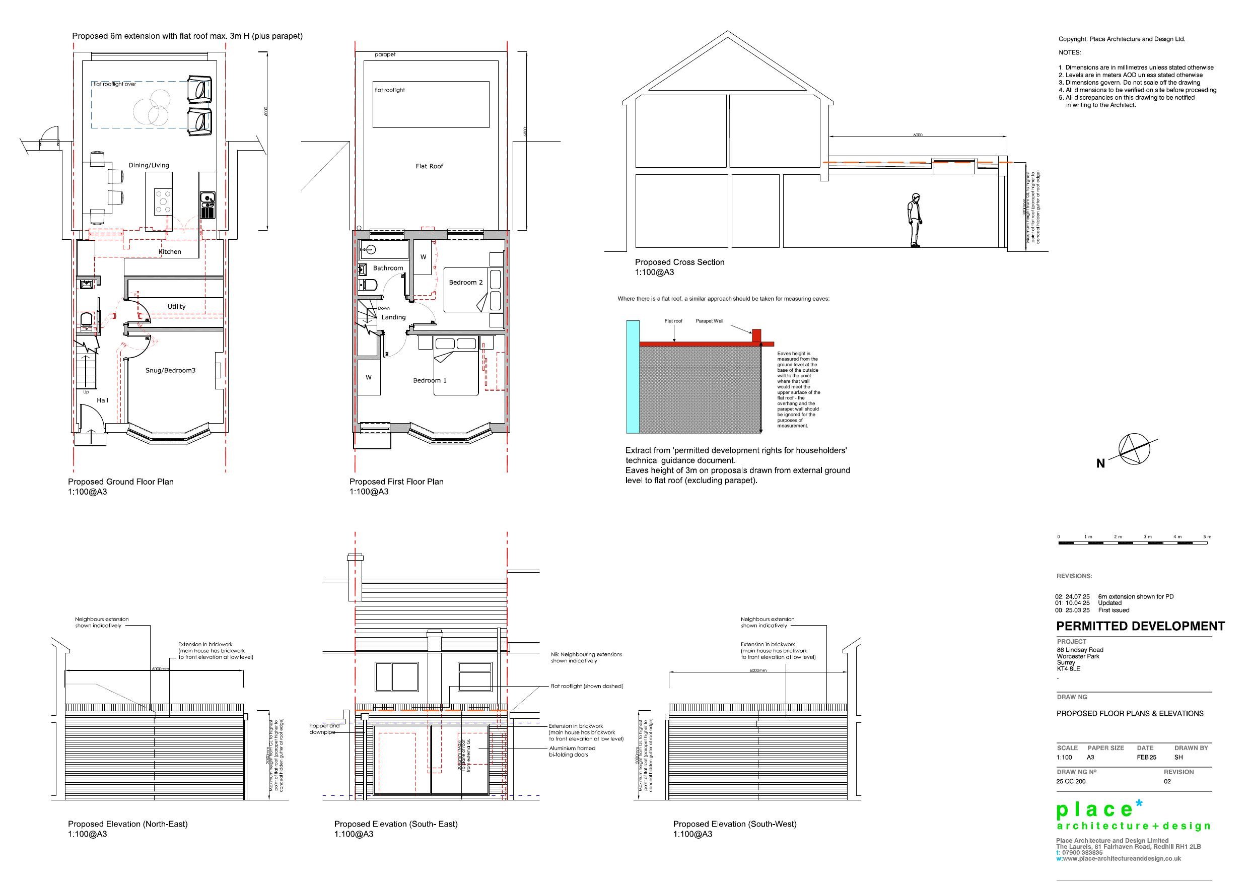
Prior approval for single-storey rear extension projecting 6m.

Full Proposal

Prior Approval for a single storey rear extension projecting from the rear of the original house by 6m.

Documents

Application Form (No personal data)
Application Form
Not archived · Council Link
DECISION NOTICE NOT REQUIRED PAEXT
Decision
Not archived · Council Link
Existing Plans and Elevations
Drawing
Not archived · Council Link
PD OFFICER REPORT
Officer Report
Not archived · Council Link
Proposed Site Block Plan
Drawing
Not archived · Council Link
Drawing
Archived · Council Link

Take Action

Make your voice heard. Authorities need to hear from people who support new homes.

✉️ Write Email in Support View on Council Portal