← Back to Sutton

Status

Pending Consideration
Received
09 Oct 2025
New dwellings
n/a

Summary

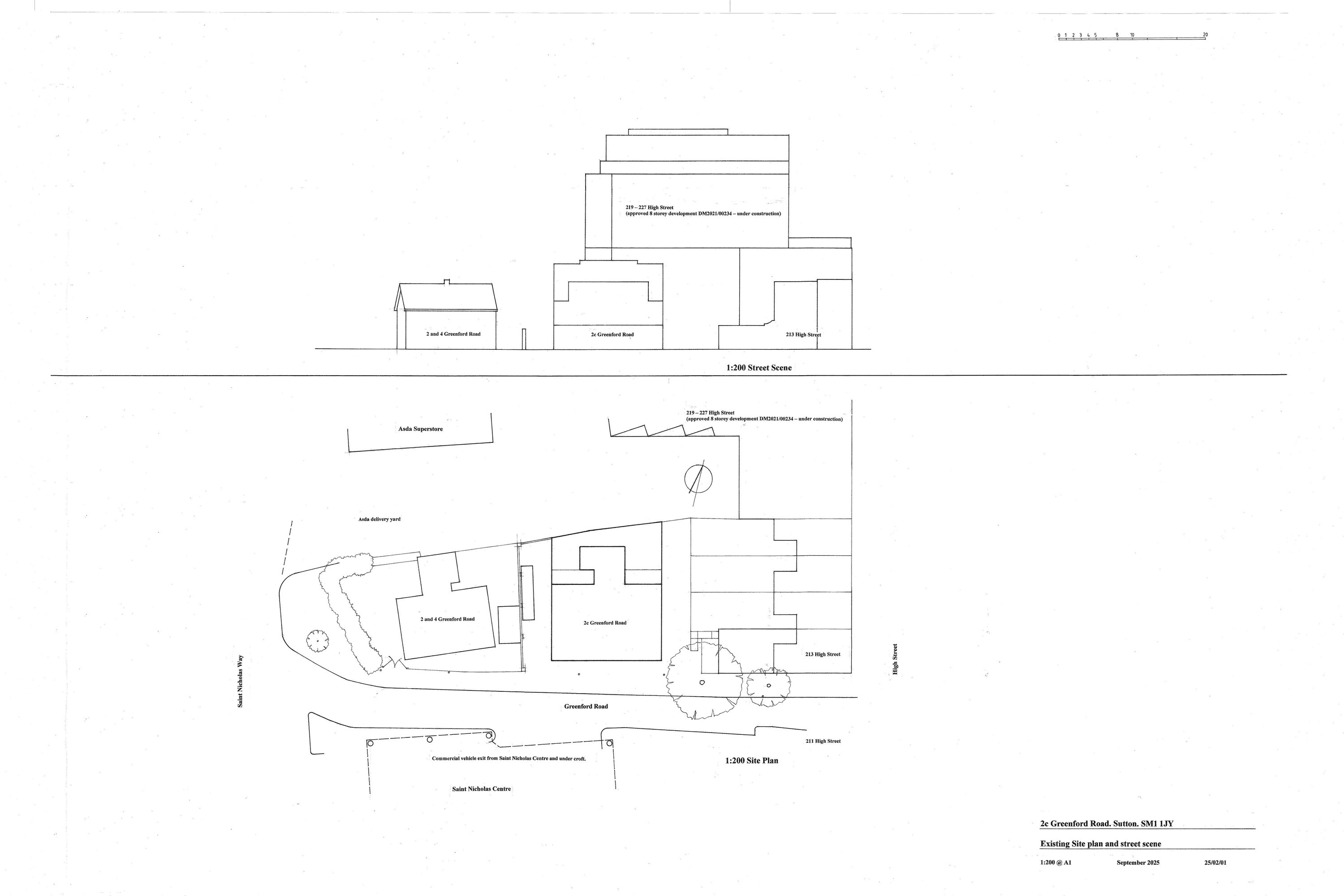
Add new floor to create one self-contained residential unit with balcony.

Full Proposal

Outline application to determine access and scale for the erection of a new floor to provide one self contained residential unit with a balcony.

Documents

APPLICATION FORM (NO PERSONAL DATA)
Application Form
Not archived · Council Link
DESIGN STATEMENT
Supporting Document
Not archived · Council Link
ENERGY STATEMENT
Supporting Document
Not archived · Council Link
FIRE SAFETY STRATEGY
Supporting Document
Not archived · Council Link
LOCATION PLAN
Site Plan
Not archived · Council Link
Site Notice
Site Notice
Not archived · Council Link
WASTE MANAGEMENT COMMENTS
Supporting Document
Not archived · Council Link

Take Action

Make your voice heard. Authorities need to hear from people who support new homes.

✉️ Write Email in Support View on Council Portal