DM2025/01340
Sutton · IDOX
Status
Pending Consideration
Received
27 Oct 2025
New dwellings
n/a
Full Proposal
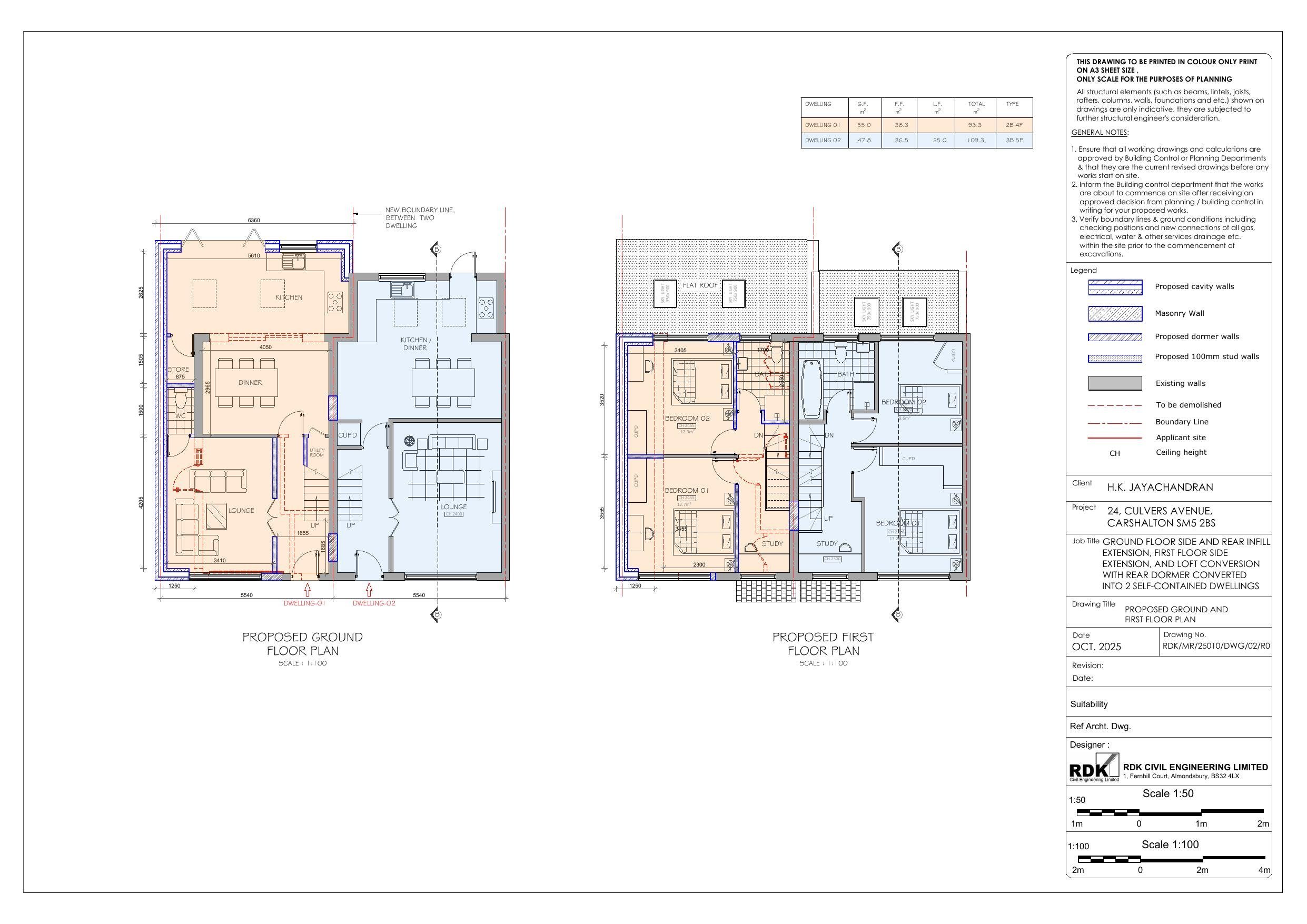
Erection of a part one, part two storey side and rear extension and conversion of loft space involving a dormer extension at rear and rooflights to front roofslope in connection with the conversion of the property into two attached two storey dwellings with alterations to front boundary wall and provision of cycle and refuse stores.
Documents
Take Action
Make your voice heard. Authorities need to hear from people who support new homes.