DM2025/01359
Sutton · IDOX
Status
Pending Consideration
Received
29 Oct 2025
New dwellings
n/a
Full Proposal
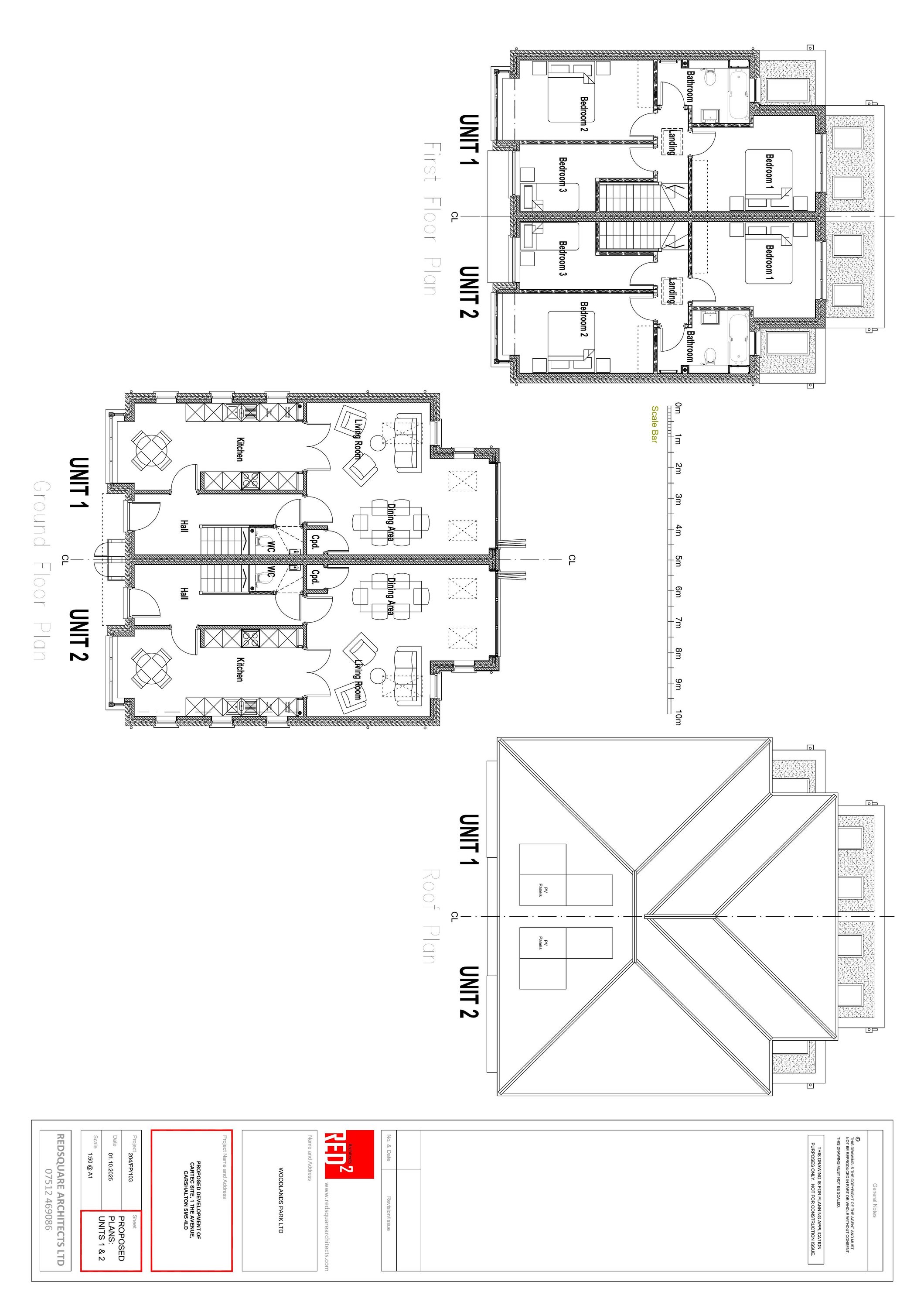
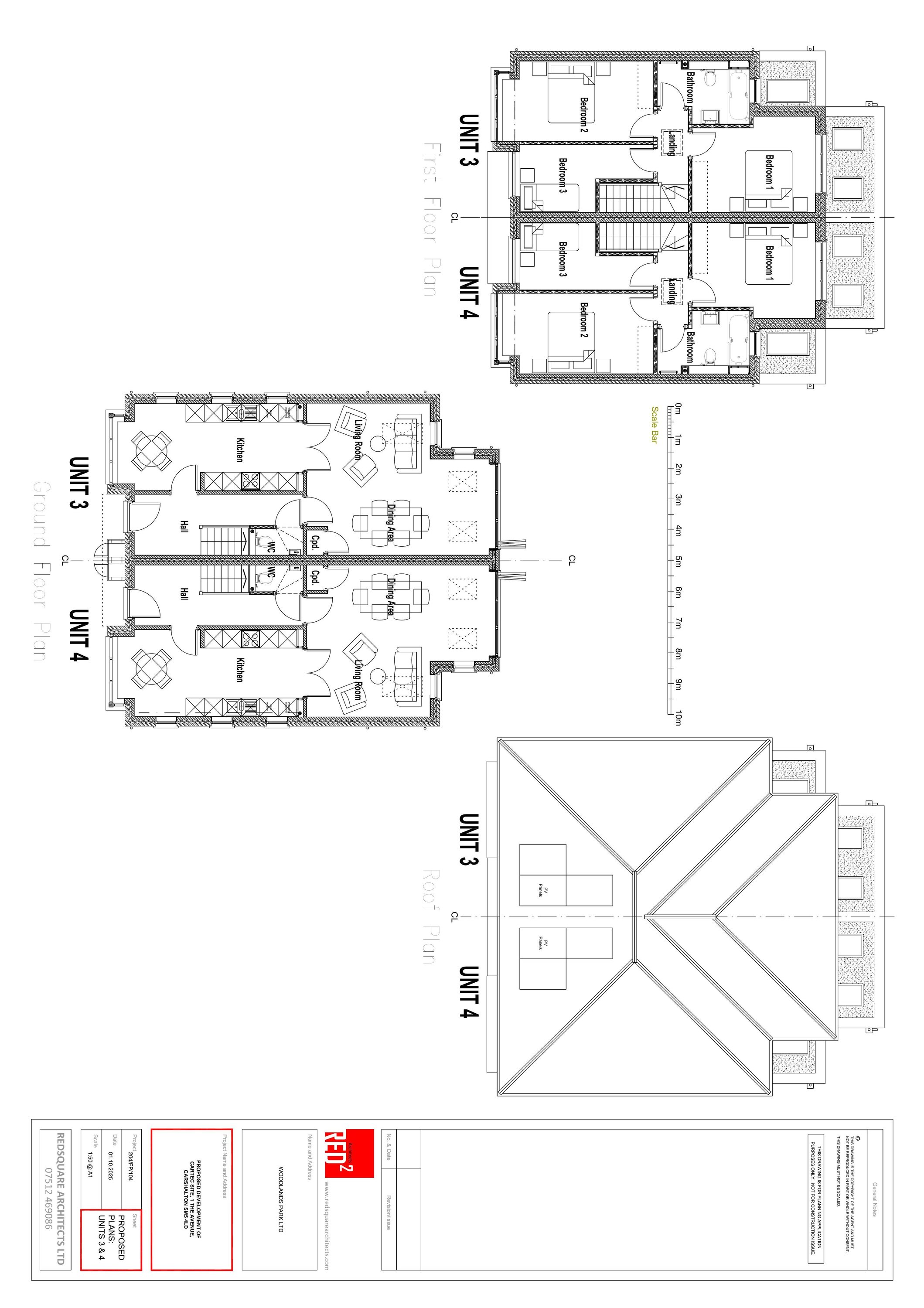
Demolition of the existing single storey building and erection of four semi detached two storey dwellings with solar panels to front roofslopes, refuse storage and parking to the front including new vehicular crossover access to/from the avenue, amenity areas and associated hard and soft landscaping.
Documents
OUTLINE DELIVERY AND SERVICING PLAN INCLUDING WASTE MANAGEMENT STRATEGY
Supporting Document
Not archived
· Council Link
Tree Protection Plan And Arboricultural Method Statement
Supporting Document
Not archived
· Council Link
Tree Survey And Arboricultural Impact Assessment Plan
Supporting Document
Not archived
· Council Link
Take Action
Make your voice heard. Authorities need to hear from people who support new homes.