← Back to Swale Borough Council

Status

Awaiting decision
Received
n/a
New dwellings
n/a

Summary

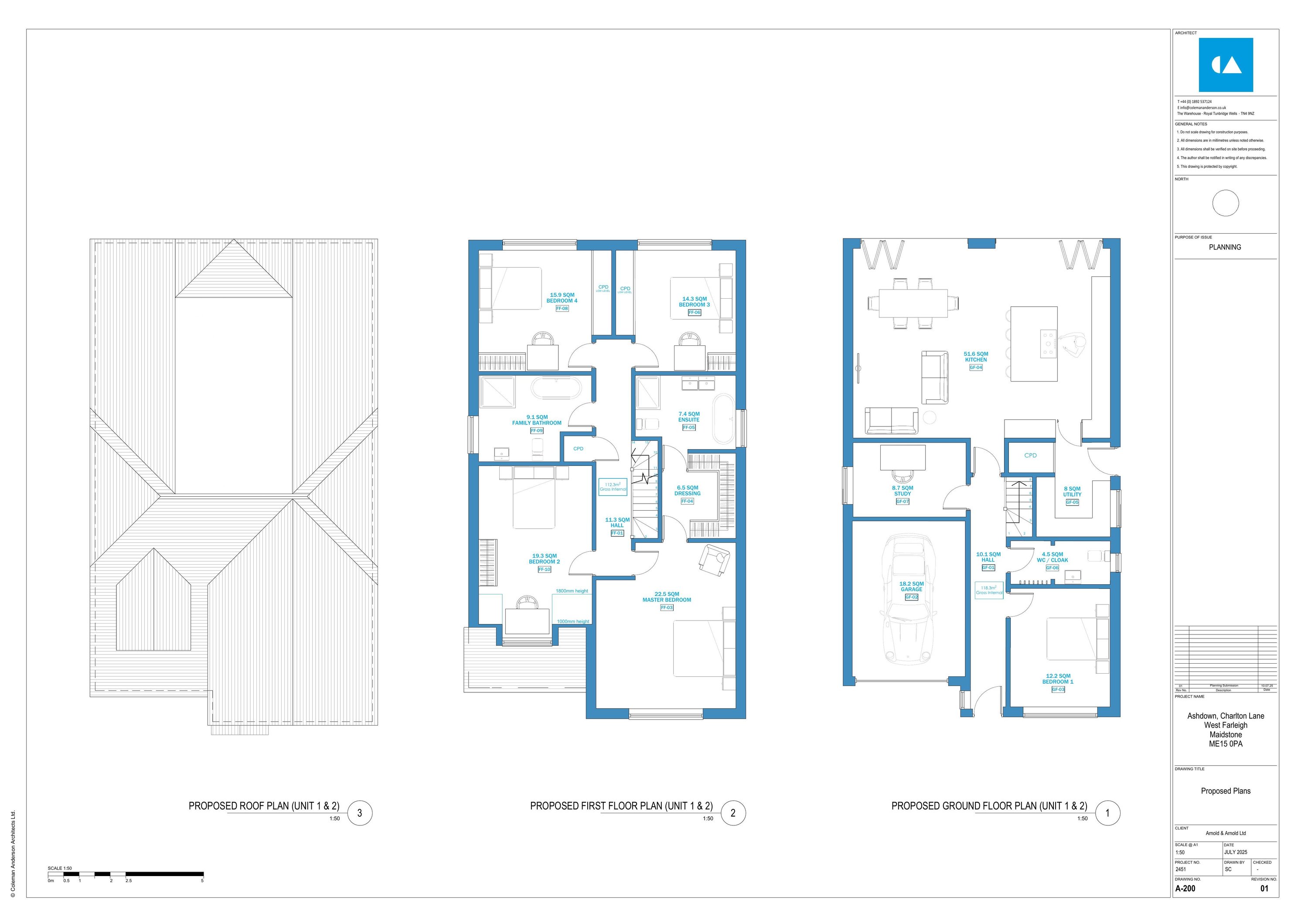
Demolish single dwelling and erect two four-bed houses with integral garages, access and four parking spaces.

Full Proposal

Demolition of single dwelling house and erection of 2no. 4-bed dwelling houses with integral garage, the provision of 4no. (2 for each dwelling) parking spaces and access.

Documents

. Environmental Protection Team MIDKENT Environmental Health
Consultee Comment
Not archived · Council Link
ApplicationFormRedacted
Application Details
Not archived · Council Link
Bat Survey Report
Biodiversity Survey/Report
Not archived · Council Link
Biodiversity Net Gain Assessment
Biodiversity Survey/Report
Not archived · Council Link
CIL Form 1
Section 106 / CIL Document
Not archived · Council Link
Ecological Response Letter/BNG
Biodiversity Report
Not archived · Council Link
Existing Location and Block Plan
Plan / Drawing
Not archived · Council Link
Existing Plans and Elevations
Plan / Drawing
Not archived · Council Link
Ext of Time Agreement
Correspondence
Not archived · Council Link
Inc Design and Access Statement
Planning Statement
Not archived · Council Link
KCC Highways and Transportation
Consultee Comment
Not archived · Council Link
Neighbour Comment
Neighbour Comments
Not archived · Council Link
Proposed Elevations
Plan / Drawing
Not archived · Council Link
Plan / Drawing
Archived · Council Link
Plan / Drawing
Archived · Council Link
The Statutory Biodiversity Metric Calculation Tool
Biodiversity Survey/Report
Not archived · Council Link

Take Action

Make your voice heard. Authorities need to hear from people who support new homes.

✉️ Write Email in Support View on Council Portal