← Back to Swale Borough Council
Summary
Erection of 20 dwellings (12 houses, 8 flats) with 40% affordable housing, play area and associated works.
Full Proposal
Change of use of land and erection of 20(no) residential units comprising 12(no) houses and a single block comprising 8(no) self-contained flats (with communal garden); and on site provision of 40% affordable housing and associated works including play area and land level changes, with vehicle access to and from Forest Hill
Documents
. Environmental Protection Team MIDKENT Environmental Health
Consultee Comment
. Kent Police
Consultee Comment
Advert in Paper - Kent Messenger
Planning Notice
Advert in Paper - Medway Messenger
Planning Notice
Affordable Housing Statement
Affordable Housing Statement
ApplicationFormRedacted
Application Details
Arboricultural Implications Assessment
Arboricultural Report
CIL Form 1
Section 106 / CIL Document
Design and Access Statement
Design and Access Statement
Drainage Strategy
Supporting Documents
Energy and Sustainability Report
Energy Statement
Environment Agency
Consultee Comment
Existing Location and Block Plan
Plan / Drawing
External Lighting Assessment
Supporting Documents
Fire Safety Strategy
Supporting Documents
Flat G and H Second floor and Roof Plan
Plan / Drawing
Flats A and B Lower Ground Floor Plan
Plan / Drawing
Flats C and F Ground and First Floor Plan
Plan / Drawing
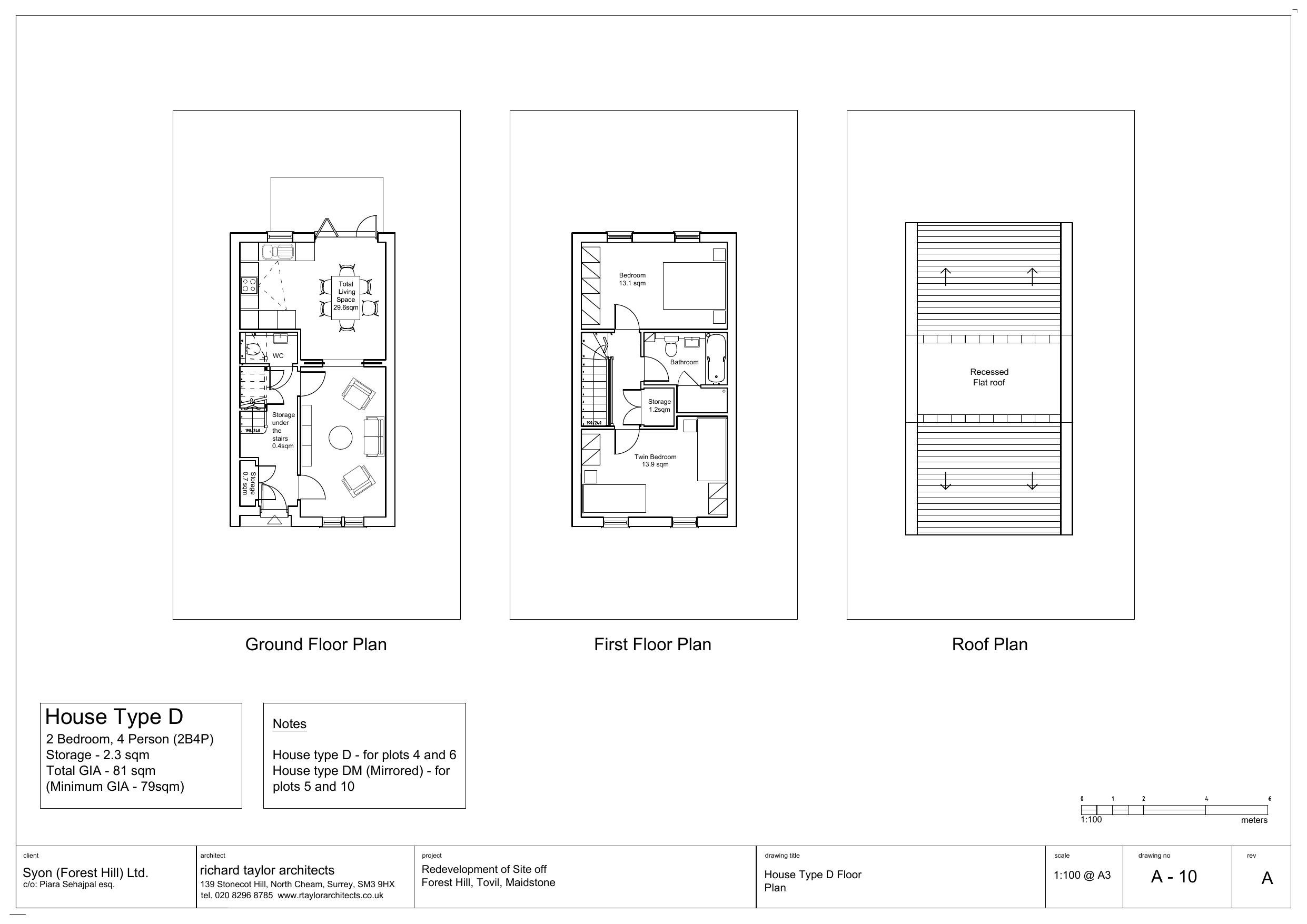
House Type D Elevation
Plan / Drawing
House Type D Proposed Elevation
Plan / Drawing
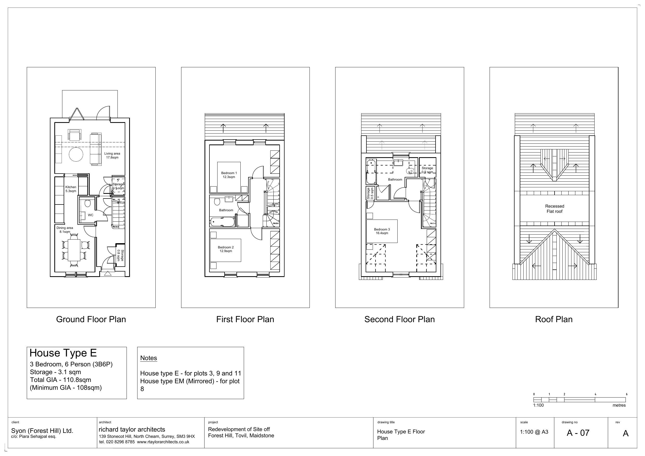
House Type E Proposed Elevation
Plan / Drawing
House Type F Elevation
Plan / Drawing
House Type F Proposed Elevation
Plan / Drawing
House Type G Proposed Elevation
Plan / Drawing
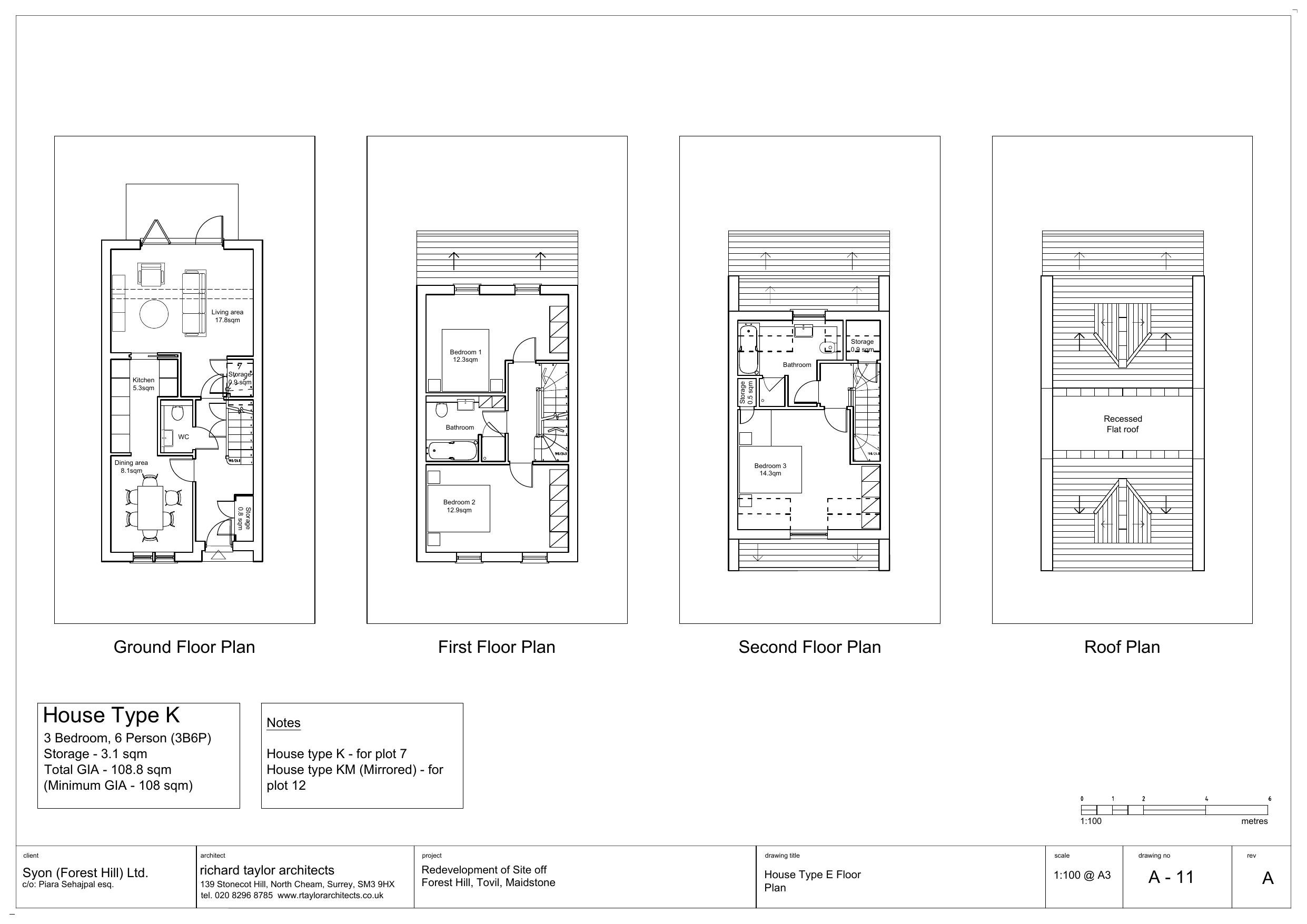
House Type K Proposed Elevation
Plan / Drawing
KCC Highways and Transportation
Consultee Comment
KCC Infrastructure
Consultee Comment
KCC Infrastructure Appendix 1
Consultee Comment
KCC Infrastructure Appendix 1A
Consultee Comment
KCC Infrastructure Appendix 2
Consultee Comment
KCC Infrastructure Appendix 3
Consultee Comment
KCC Infrastructure Appendix 4
Consultee Comment
KCC Parks and Open Spaces
Consultee Comment
MBC Housing
Consultee Comment
Neighbour Comment
Neighbour Comments
Neighbour Comment
Neighbour Comments
Neighbour Comments
Neighbour Comments
Neighbour Comments
Neighbour Comments
Noise Impact Assessment
Supporting Documents
North and North East Elevations for Flats
Plan / Drawing
Notice Photo
Planning Notice
Online Comment
Neighbour Comments
Online Comment
Neighbour Comments
Online Comment
Neighbour Comments
Online Comment
Neighbour Comments
Online Comment
Neighbour Comments
Online Comment
Neighbour Comments
Online Comment
Neighbour Comments
Online Comment
Neighbour Comments
Online Comment
Neighbour Comments
Online Comment
Neighbour Comments
Online Comment
Neighbour Comments
PEA and BNG Assessment Report
Biodiversity Survey/Report
Proposed East Site Elevation
Plan / Drawing
Proposed North and South Site Elevation
Plan / Drawing
Proposed Site Levels
Plan / Drawing
Proposed West Site Elevation
Plan / Drawing
Redevelopment of site-Comparison of Areas
Supporting Documents
Reptile and Bat Survey and Site Mitigation Proposal
Biodiversity Survey/Report
Reptile Survey Report Arc Ecology
Biodiversity Survey/Report
Site Block Plan with Proposed Roof Plan
Plan / Drawing
Site Investigation and Risk Report 1
Supporting Documents
Site Investigation and Risk Report 2
Supporting Documents
Site Investigation and Risk Report 3
Supporting Documents
Site Investigation and Risk Report 4
Supporting Documents
Site Investigation and Risk Report 5
Supporting Documents
Site Investigation and Risk Report 6
Supporting Documents
Site Investigation and Risk Report 7
Supporting Documents
Site Investigation and Risk Report 8
Supporting Documents
Site Levels
Plan / Drawing
Southern Water
Consultee Comment
Southern Water Plan
Consultee Comment
Statutory Biodiversity Metric Calculation Tool
Biodiversity Survey/Report
Tovil Parish Council
Parish Comments
Tovil Parish Council
Parish Comments
Transport Statement
Transport Assessment
West and South West Elevation for Flats
Plan / Drawing
Take Action
Make your voice heard. Authorities need to hear from people who support new homes.