← Back to Swansea Council

Status

Being Considered
Received
25 May 2023
New dwellings
n/a

Full Proposal

Erection of 29 residential units, access works, car parking, landscaping and associated works

Documents

ADDENDUM SITE INVESTIGATION REPORT PART 1
Dogfen Gyfredol - Current Document
Not archived · Council Link
AGENT RESPONSE TO HIGHWAY
Dogfen Gyfredol - Current Document
Not archived · Council Link
AIA REPORT
Dogfen a Ddisodlwyd - Superseded Document
Not archived · Council Link
AIA REPORT PLANS
Dogfen a Ddisodlwyd - Superseded Document
Not archived · Council Link
APPLICATION FORM
Dogfen Gyfredol - Current Document
Not archived · Council Link
ARBORICULTURAL IMPACT ASSESSMENT
Dogfen Gyfredol - Current Document
Not archived · Council Link
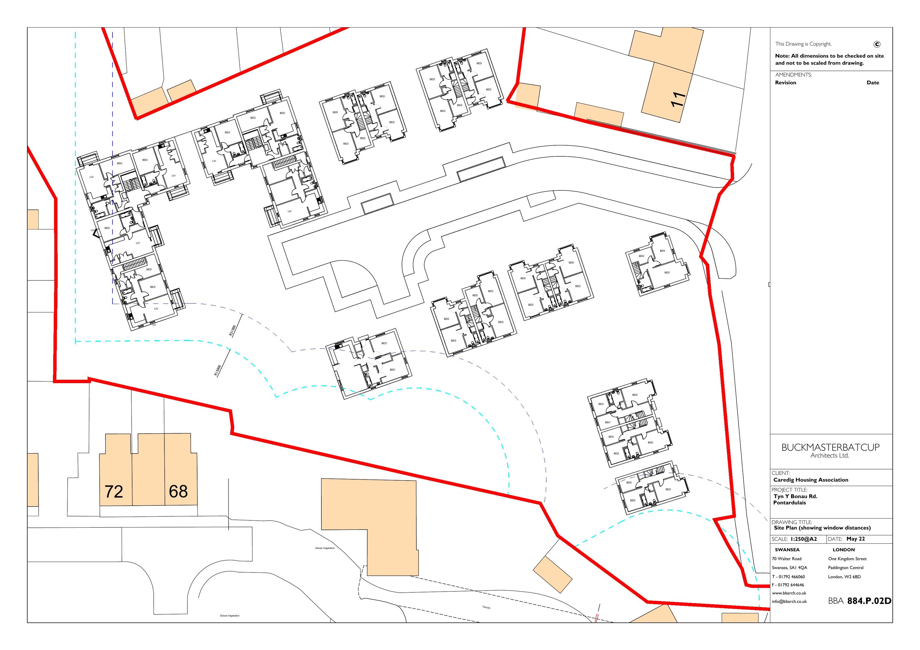
BLOCK PLAN
Dogfen Gyfredol - Current Document
Not archived · Council Link
BLOCK PLAN
Dogfen a Ddisodlwyd - Superseded Document
Not archived · Council Link
BLOCK PLAN
Dogfen a Ddisodlwyd - Superseded Document
Not archived · Council Link
BLOCK PLAN
Dogfen a Ddisodlwyd - Superseded Document
Not archived · Council Link
BLOCK PLAN
Dogfen a Ddisodlwyd - Superseded Document
Not archived · Council Link
COMMENT - DESIGNING OUT CRIME
Gohebiaeth - Correspondence
Not archived · Council Link
COMMENT - DWR CYMRU WELSH WATER
Gohebiaeth - Correspondence
Not archived · Council Link
COMMENT - EDUCATION
Gohebiaeth - Correspondence
Not archived · Council Link
COMMENT - HOUSING ENABLING
Gohebiaeth - Correspondence
Not archived · Council Link
COMMENT - MID AND WEST WALES FIRE & RESCUE SERVICE
Gohebiaeth - Correspondence
Not archived · Council Link
COMMENT - NATURAL RESOURCES WALES
Gohebiaeth - Correspondence
Not archived · Council Link
COMMENT - PARKS DEPARTMENT
Gohebiaeth - Correspondence
Not archived · Council Link
COMMENT - THE COAL AUTHORITY
Gohebiaeth - Correspondence
Not archived · Council Link
COVER LETTER
Dogfen Gyfredol - Current Document
Not archived · Council Link
DESIGN AND ACCESS STATEMENT
Dogfen Gyfredol - Current Document
Not archived · Council Link
DRAINAGE STRATEGY
Dogfen Gyfredol - Current Document
Not archived · Council Link
ELEVATIONS 2
Dogfen Gyfredol - Current Document
Not archived · Council Link
ELEVATIONS FLATS 15-20
Dogfen a Ddisodlwyd - Superseded Document
Not archived · Council Link
ELEVATIONS FLATS 15-20
Dogfen a Ddisodlwyd - Superseded Document
Not archived · Council Link
ELEVATIONS FLATS 15-20
Dogfen Gyfredol - Current Document
Not archived · Council Link
ELEVATIONS SHEET 1
Dogfen a Ddisodlwyd - Superseded Document
Not archived · Council Link
ELEVATIONS SHEET 1
Dogfen a Ddisodlwyd - Superseded Document
Not archived · Council Link
ELEVATIONS SHEET 1
Dogfen Gyfredol - Current Document
Not archived · Council Link
ELEVATIONS SHEET 1
Dogfen a Ddisodlwyd - Superseded Document
Not archived · Council Link
ELEVATIONS SHEET 2
Dogfen a Ddisodlwyd - Superseded Document
Not archived · Council Link
ELEVATIONS SHEET 2
Dogfen a Ddisodlwyd - Superseded Document
Not archived · Council Link
ELEVATIONS SHEET 3
Dogfen a Ddisodlwyd - Superseded Document
Not archived · Council Link
ELEVATIONS SHEET 3
Dogfen a Ddisodlwyd - Superseded Document
Not archived · Council Link
ELEVATIONS SHEET 3
Dogfen Gyfredol - Current Document
Not archived · Council Link
ELEVATIONS SHEET 3
Dogfen a Ddisodlwyd - Superseded Document
Not archived · Council Link
ENCLOSURE TO COVER LETTER - PRE-APP ADVICE
Dogfen Gyfredol - Current Document
Not archived · Council Link
ERADICATION OF INVASIVE NON-NATIVE SPECIES
Dogfen Gyfredol - Current Document
Not archived · Council Link
F.FL FLATS
Dogfen a Ddisodlwyd - Superseded Document
Not archived · Council Link
F.FL FLATS
Dogfen a Ddisodlwyd - Superseded Document
Not archived · Council Link
F.FL FLATS
Dogfen Gyfredol - Current Document
Not archived · Council Link
FIRST FLOOR FLATS
Dogfen a Ddisodlwyd - Superseded Document
Not archived · Council Link
FLOOD CONSEQUENCES ASSESSMENT
Dogfen Gyfredol - Current Document
Not archived · Council Link
G.FL FLATS
Dogfen a Ddisodlwyd - Superseded Document
Not archived · Council Link
G.FL FLATS 1-13
Dogfen Gyfredol - Current Document
Not archived · Council Link
G.FL FLATS 1-14
Dogfen a Ddisodlwyd - Superseded Document
Not archived · Council Link
G.FL FLATS 1-14
Dogfen a Ddisodlwyd - Superseded Document
Not archived · Council Link
GREEN INFRASTRUCTURE STATEMENT
Dogfen Gyfredol - Current Document
Not archived · Council Link
GREEN INFRASTRUCTURE STATEMENT
Dogfen Gyfredol - Current Document
Not archived · Council Link
GREEN INFRASTRUCTURE STATEMENT V4
Dogfen a Ddisodlwyd - Superseded Document
Not archived · Council Link
HYS210010 - PAC REPORT V1
Dogfen Gyfredol - Current Document
Not archived · Council Link
Hysbysiad Safle - Site Notice
Hysbysiad Safle - Site Notice
Not archived · Council Link
JBA CONSULTING
Dogfen Gyfredol - Current Document
Not archived · Council Link
LANDSCAPE PLAN
Dogfen a Ddisodlwyd - Superseded Document
Not archived · Council Link
LANDSCAPE PLANS
Dogfen Gyfredol - Current Document
Not archived · Council Link
LANDSCAPE SCHEDULE AND SPECIFICATIONS
Dogfen Gyfredol - Current Document
Not archived · Council Link
LANDSCAPE STRATEGY
Dogfen a Ddisodlwyd - Superseded Document
Not archived · Council Link
LANDSCAPE STRATEGY
Dogfen Gyfredol - Current Document
Not archived · Council Link
LANDSCAPE STRATEGY
Dogfen Gyfredol - Current Document
Not archived · Council Link
LIGHTING CALCULATIONS
Dogfen Gyfredol - Current Document
Not archived · Council Link
LIGHTING LAYOUT
Dogfen Gyfredol - Current Document
Not archived · Council Link
Llythyr Cydnabyddiaeth -Acknowledgement Letter
Llythyr Cydnabyddiaeth -Acknowledgement Letter
Not archived · Council Link
LOCATION PLAN
Dogfen Gyfredol - Current Document
Not archived · Council Link
LOCATION PLAN
Dogfen Gyfredol - Current Document
Not archived · Council Link
PEA ADDENDUM
Dogfen Gyfredol - Current Document
Not archived · Council Link
PEA PART 1
Dogfen Gyfredol - Current Document
Not archived · Council Link
PEA PART 2
Dogfen Gyfredol - Current Document
Not archived · Council Link
PEA PART 3
Dogfen Gyfredol - Current Document
Not archived · Council Link
PLANS & ELEVATIONS PLOTS 1,2,3 & 4
Dogfen a Ddisodlwyd - Superseded Document
Not archived · Council Link
PLANS & ELEVS PLOT 10
Dogfen a Ddisodlwyd - Superseded Document
Not archived · Council Link
PLANS & ELEVS PLOT 13
Dogfen a Ddisodlwyd - Superseded Document
Not archived · Council Link
PLANS & ELEVS PLOTS 1,2,3 &4
Dogfen Gyfredol - Current Document
Not archived · Council Link
PLANS & ELEVS PLOTS 5&6
Dogfen Gyfredol - Current Document
Not archived · Council Link
PLANS & ELEVS PLOTS 6 & 7
Dogfen a Ddisodlwyd - Superseded Document
Not archived · Council Link
PLANS & ELEVS PLOTS 7&8
Dogfen Gyfredol - Current Document
Not archived · Council Link
PLANS & ELEVS. PLOT 9
Dogfen a Ddisodlwyd - Superseded Document
Not archived · Council Link
PLANS & ELEVS. PLOT 9
Dogfen Gyfredol - Current Document
Not archived · Council Link
PLANS AND ELEVATIONS PLOT 5
Dogfen a Ddisodlwyd - Superseded Document
Not archived · Council Link
PLANS AND ELEVATIONS PLOTS 8 AND 9
Dogfen a Ddisodlwyd - Superseded Document
Not archived · Council Link
PLANS FLATS 15-20
Dogfen a Ddisodlwyd - Superseded Document
Not archived · Council Link
PLANS FLATS 15-20
Dogfen a Ddisodlwyd - Superseded Document
Not archived · Council Link
PLANS FLATS 15-20
Dogfen Gyfredol - Current Document
Not archived · Council Link
PLANS/ELEVATIONSS PLOTS 11 & 12
Dogfen a Ddisodlwyd - Superseded Document
Not archived · Council Link
PLANTING PLAN
Dogfen Gyfredol - Current Document
Not archived · Council Link
PLANTING PLAN
Dogfen a Ddisodlwyd - Superseded Document
Not archived · Council Link
PLANTING PLAN
Dogfen a Ddisodlwyd - Superseded Document
Not archived · Council Link
PROPOSED SUDS PLAN
Dogfen Gyfredol - Current Document
Not archived · Council Link
ROAD SAFETY AUDIT - STAGE 1
Dogfen Gyfredol - Current Document
Not archived · Council Link
ROOF PLAN FLATS
Dogfen Gyfredol - Current Document
Not archived · Council Link
SCHEDULE OF CURRENT DRAWINGS
Dogfen a Ddisodlwyd - Superseded Document
Not archived · Council Link
SCHEDULE OF SUBMITTED DRAWINGS
Dogfen a Ddisodlwyd - Superseded Document
Not archived · Council Link
SCHEDULES AND SPECIFICATION
Dogfen Gyfredol - Current Document
Not archived · Council Link
SCHEDULES AND SPECIFICATIONS
Dogfen a Ddisodlwyd - Superseded Document
Not archived · Council Link
SECOND FLOOR FLATS
Dogfen a Ddisodlwyd - Superseded Document
Not archived · Council Link
SI PART 10
Dogfen Gyfredol - Current Document
Not archived · Council Link
SI PART 2
Dogfen Gyfredol - Current Document
Not archived · Council Link
SI PART 3
Dogfen Gyfredol - Current Document
Not archived · Council Link
SI PART 4
Dogfen Gyfredol - Current Document
Not archived · Council Link
SI PART 5
Dogfen Gyfredol - Current Document
Not archived · Council Link
SI PART 6
Dogfen Gyfredol - Current Document
Not archived · Council Link
SI PART 7
Dogfen Gyfredol - Current Document
Not archived · Council Link
SI PART 8
Dogfen Gyfredol - Current Document
Not archived · Council Link
SI PART 9
Dogfen Gyfredol - Current Document
Not archived · Council Link
SITE LAYOUT
Dogfen a Ddisodlwyd - Superseded Document
Not archived · Council Link
SITE LAYOUT
Dogfen a Ddisodlwyd - Superseded Document
Not archived · Council Link
Dogfen a Ddisodlwyd - Superseded Document
Archived · Council Link
Dogfen a Ddisodlwyd - Superseded Document
Archived · Council Link
Dogfen Gyfredol - Current Document
Archived · Council Link
Dogfen Gyfredol - Current Document
Archived · Council Link
Dogfen a Ddisodlwyd - Superseded Document
Archived · Council Link
Dogfen a Ddisodlwyd - Superseded Document
Archived · Council Link
SITE SECTIONS
Dogfen a Ddisodlwyd - Superseded Document
Not archived · Council Link
SITE SECTIONS
Dogfen a Ddisodlwyd - Superseded Document
Not archived · Council Link
SITE SECTIONS
Dogfen a Ddisodlwyd - Superseded Document
Not archived · Council Link
SITE SECTIONS
Dogfen Gyfredol - Current Document
Not archived · Council Link
TYB BONAU TREE SURVEY APPENDIX
Dogfen a Ddisodlwyd - Superseded Document
Not archived · Council Link
TYB TRANSPORT STATEMENT PART ONE
Dogfen Gyfredol - Current Document
Not archived · Council Link
TYB TRANSPORT STATEMENT PART TWO
Dogfen Gyfredol - Current Document
Not archived · Council Link
TYN Y BONAU PROPOSED MATERIALS
Dogfen Gyfredol - Current Document
Not archived · Council Link
UTILITIES PART 2
Dogfen Gyfredol - Current Document
Not archived · Council Link
UTILLITIES PART 1
Dogfen Gyfredol - Current Document
Not archived · Council Link
WELSH LANGUAGE ACTION PLAN
Dogfen Gyfredol - Current Document
Not archived · Council Link
Ymgynghoriad Ymgyngoreion - Consultee Consultation
Ymgynghoriad Ymgyngoreion - Consultee Consultation
Not archived · Council Link
Ymgynghoriad Ymgyngoreion - Consultee Consultation
Ymgynghoriad Ymgyngoreion - Consultee Consultation
Not archived · Council Link
Ymgynghoriad Ymgyngoreion - Consultee Consultation
Ymgynghoriad Ymgyngoreion - Consultee Consultation
Not archived · Council Link
Ymgynghoriad Ymgyngoreion - Consultee Consultation
Ymgynghoriad Ymgyngoreion - Consultee Consultation
Not archived · Council Link
Ymgynghoriad Ymgyngoreion - Consultee Consultation
Ymgynghoriad Ymgyngoreion - Consultee Consultation
Not archived · Council Link
Ymgynghoriad Ymgyngoreion - Consultee Consultation
Ymgynghoriad Ymgyngoreion - Consultee Consultation
Not archived · Council Link
Ymgynghoriad Ymgyngoreion - Consultee Consultation
Ymgynghoriad Ymgyngoreion - Consultee Consultation
Not archived · Council Link
Ymgynghoriad Ymgyngoreion - Consultee Consultation
Ymgynghoriad Ymgyngoreion - Consultee Consultation
Not archived · Council Link
Ymgynghoriad Ymgyngoreion - Consultee Consultation
Ymgynghoriad Ymgyngoreion - Consultee Consultation
Not archived · Council Link
Ymgynghoriad Ymgyngoreion - Consultee Consultation
Ymgynghoriad Ymgyngoreion - Consultee Consultation
Not archived · Council Link
Ymgynghoriad Ymgyngoreion - Consultee Consultation
Ymgynghoriad Ymgyngoreion - Consultee Consultation
Not archived · Council Link
Ymgynghoriad Ymgyngoreion - Consultee Consultation
Ymgynghoriad Ymgyngoreion - Consultee Consultation
Not archived · Council Link
Ymgynghoriad Ymgyngoreion - Consultee Consultation
Ymgynghoriad Ymgyngoreion - Consultee Consultation
Not archived · Council Link
Ymgynghoriad Ymgyngoreion - Consultee Consultation
Ymgynghoriad Ymgyngoreion - Consultee Consultation
Not archived · Council Link
Ymgynghoriad Ymgyngoreion - Consultee Consultation
Ymgynghoriad Ymgyngoreion - Consultee Consultation
Not archived · Council Link

Take Action

Make your voice heard. Authorities need to hear from people who support new homes.

✉️ Write Email in Support View on Council Portal