← Back to Swansea Council

Status

Being Considered
Received
23 Jan 2025
New dwellings
n/a

Full Proposal

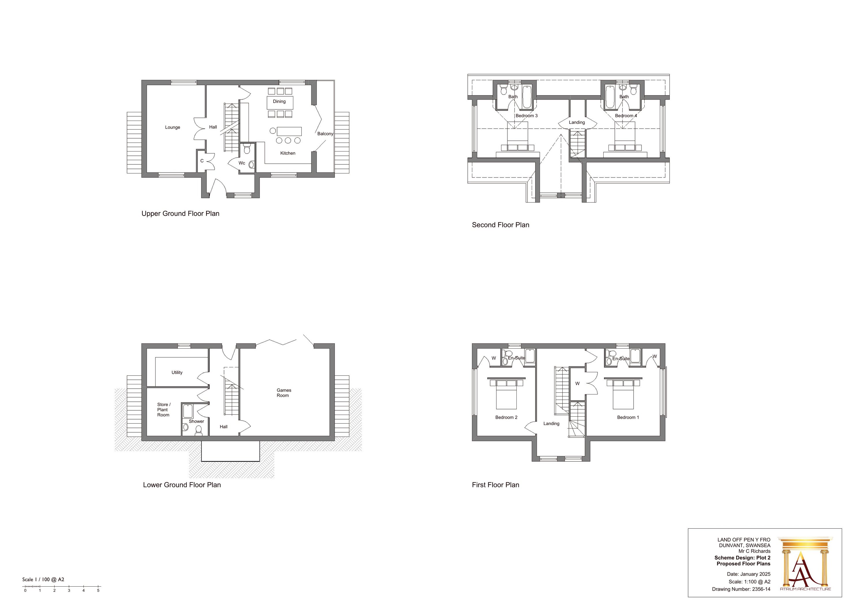
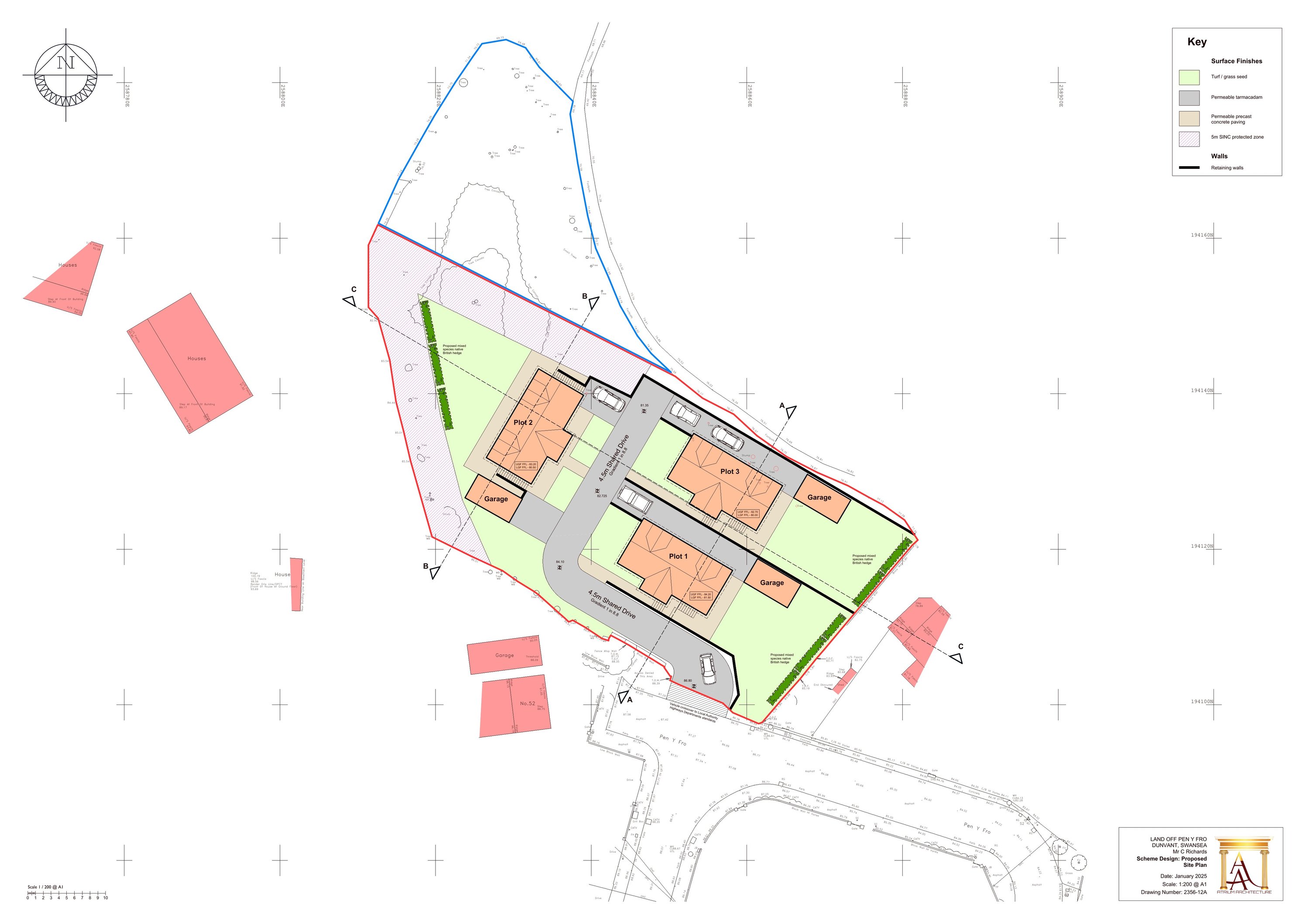
Three detached dwellings, garages and associated works including retaining walls.

Documents

APPLICATIONFORMREDACTED
Dogfen Gyfredol - Current Document
Not archived · Council Link
Dogfen Gyfredol - Current Document
Archived · Council Link
GREEN INFRASTRUCTURE ASSESSMENT
Dogfen Gyfredol - Current Document
Not archived · Council Link
Llythyr Cydnabyddiaeth -Acknowledgement Letter
Llythyr Cydnabyddiaeth -Acknowledgement Letter
Not archived · Council Link
LOCATION PLAN
Dogfen Gyfredol - Current Document
Not archived · Council Link
Dogfen Gyfredol - Current Document
Archived · Council Link
PLOT 2 PROPOSED ELEVATIONS
Dogfen Gyfredol - Current Document
Not archived · Council Link
Dogfen Gyfredol - Current Document
Archived · Council Link
PLOTS 1 AND 3 PROPOSED ELEVATIONS
Dogfen Gyfredol - Current Document
Not archived · Council Link
PRELIMINARY ECOLOGICAL ASSESSMENT
Dogfen Gyfredol - Current Document
Not archived · Council Link
PROPOSED GARAGE FLOOR PLAN AND ELEVATIONS
Dogfen Gyfredol - Current Document
Not archived · Council Link
PROPOSED RETAINING WALL DETAILS
Dogfen Gyfredol - Current Document
Not archived · Council Link
Dogfen Gyfredol - Current Document
Archived · Council Link
PROPOSED SITE SECTIONS
Dogfen Gyfredol - Current Document
Not archived · Council Link
Ymgynghoriad Ymgyngoreion - Consultee Consultation
Ymgynghoriad Ymgyngoreion - Consultee Consultation
Not archived · Council Link
Ymgynghoriad Ymgyngoreion - Consultee Consultation
Ymgynghoriad Ymgyngoreion - Consultee Consultation
Not archived · Council Link
Ymgynghoriad Ymgyngoreion - Consultee Consultation
Ymgynghoriad Ymgyngoreion - Consultee Consultation
Not archived · Council Link
Ymgynghoriad Ymgyngoreion - Consultee Consultation
Ymgynghoriad Ymgyngoreion - Consultee Consultation
Not archived · Council Link
Ymgynghoriad Ymgyngoreion - Consultee Consultation
Ymgynghoriad Ymgyngoreion - Consultee Consultation
Not archived · Council Link
Ymgynghoriad Ymgyngoreion - Consultee Consultation
Ymgynghoriad Ymgyngoreion - Consultee Consultation
Not archived · Council Link
Ymgynghoriad Ymgyngoreion - Consultee Consultation
Ymgynghoriad Ymgyngoreion - Consultee Consultation
Not archived · Council Link
Ymgynghoriad Ymgyngoreion - Consultee Consultation
Ymgynghoriad Ymgyngoreion - Consultee Consultation
Not archived · Council Link

Take Action

Make your voice heard. Authorities need to hear from people who support new homes.

✉️ Write Email in Support View on Council Portal