← Back to Swansea Council

Status

Being Considered
Received
02 Sep 2025
New dwellings
n/a

Full Proposal

Demolition of existing dwelling and replacement two storey dwelling

Documents

APPLICATIONFORMREDACTED
Dogfen Gyfredol - Current Document
Not archived · Council Link
BAT SURVEY REPORT
Dogfen Gyfredol - Current Document
Not archived · Council Link
CONSTRUCTION ENVIRONMENTAL MANAGEMENT PLAN
Dogfen Gyfredol - Current Document
Not archived · Council Link
DESIGN AND ACCESS STATEMENT
Dogfen Gyfredol - Current Document
Not archived · Council Link
DRAINAGE STRATEGY PLAN
Dogfen Gyfredol - Current Document
Not archived · Council Link
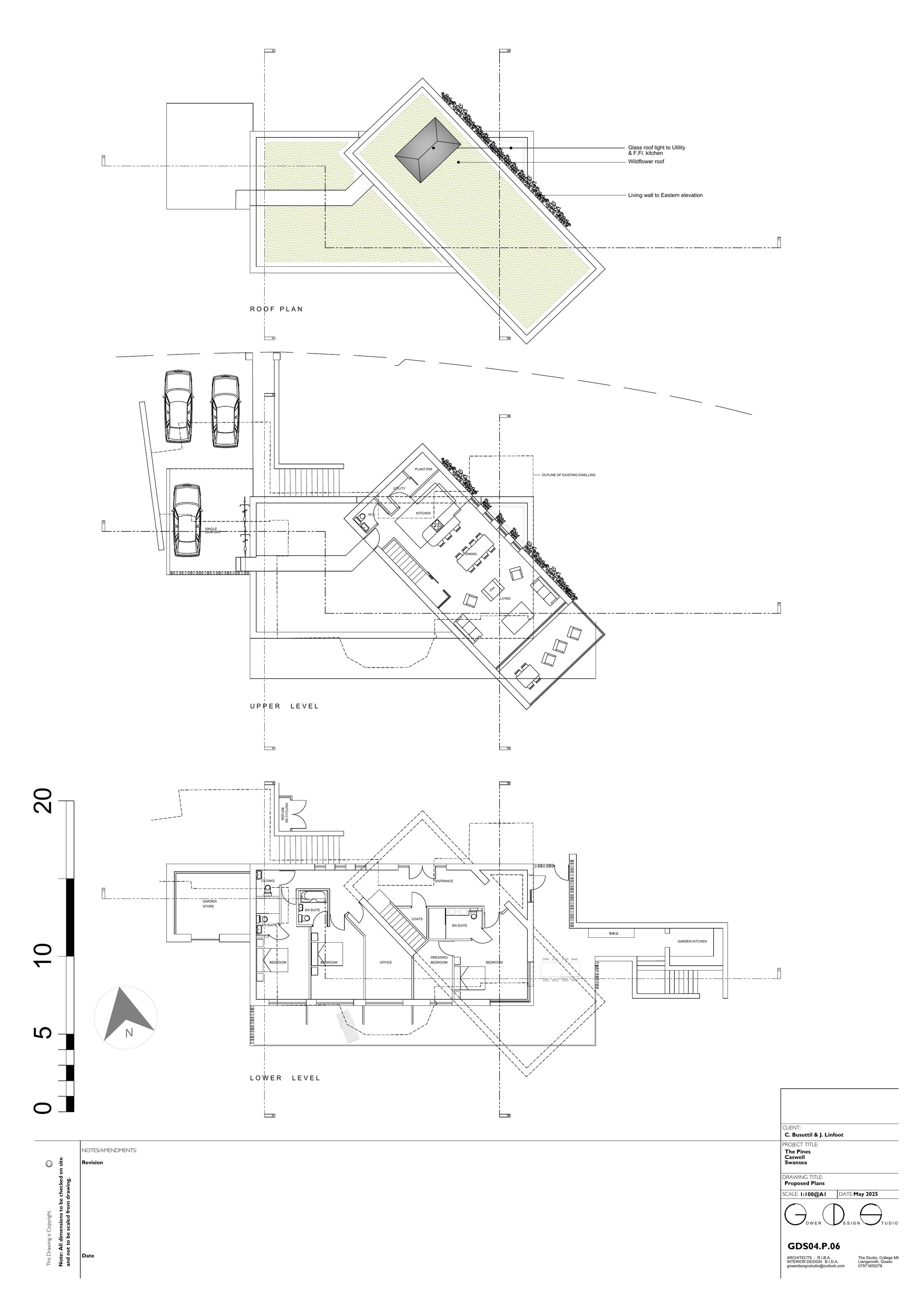
EXISITING PLANS
Dogfen Gyfredol - Current Document
Not archived · Council Link
Dogfen Gyfredol - Current Document
Archived · Council Link
EXISITNG ELEVATIONS AND SITE SECTIONS
Dogfen Gyfredol - Current Document
Not archived · Council Link
GREEN INFRASSTRUCTURE STATEMENT AND BIODIVERSITY ENHANCEMENT SCHEME
Dogfen Gyfredol - Current Document
Not archived · Council Link
LANDSCAPE CHARACTER AND VISUAL IMPACT ASSESSMENT
Dogfen Gyfredol - Current Document
Not archived · Council Link
Llythyr Cydnabyddiaeth -Acknowledgement Letter
Llythyr Cydnabyddiaeth -Acknowledgement Letter
Not archived · Council Link
LOCATION PLAN
Dogfen Gyfredol - Current Document
Not archived · Council Link
PROPOSED ELEVATIONS
Dogfen Gyfredol - Current Document
Not archived · Council Link
Dogfen Gyfredol - Current Document
Archived · Council Link
PROPOSED SECTIONS
Dogfen Gyfredol - Current Document
Not archived · Council Link
PROPOSED SITE LOCATION
Dogfen Gyfredol - Current Document
Not archived · Council Link
TREE SURVEY
Dogfen Gyfredol - Current Document
Not archived · Council Link
Ymgynghoriad Ymgyngoreion - Consultee Consultation
Ymgynghoriad Ymgyngoreion - Consultee Consultation
Not archived · Council Link
Ymgynghoriad Ymgyngoreion - Consultee Consultation
Ymgynghoriad Ymgyngoreion - Consultee Consultation
Not archived · Council Link
Ymgynghoriad Ymgyngoreion - Consultee Consultation
Ymgynghoriad Ymgyngoreion - Consultee Consultation
Not archived · Council Link
Ymgynghoriad Ymgyngoreion - Consultee Consultation
Ymgynghoriad Ymgyngoreion - Consultee Consultation
Not archived · Council Link

Take Action

Make your voice heard. Authorities need to hear from people who support new homes.

✉️ Write Email in Support View on Council Portal