← Back to Swansea Council

Status

Being Considered
Received
08 Oct 2025
New dwellings
n/a

Full Proposal

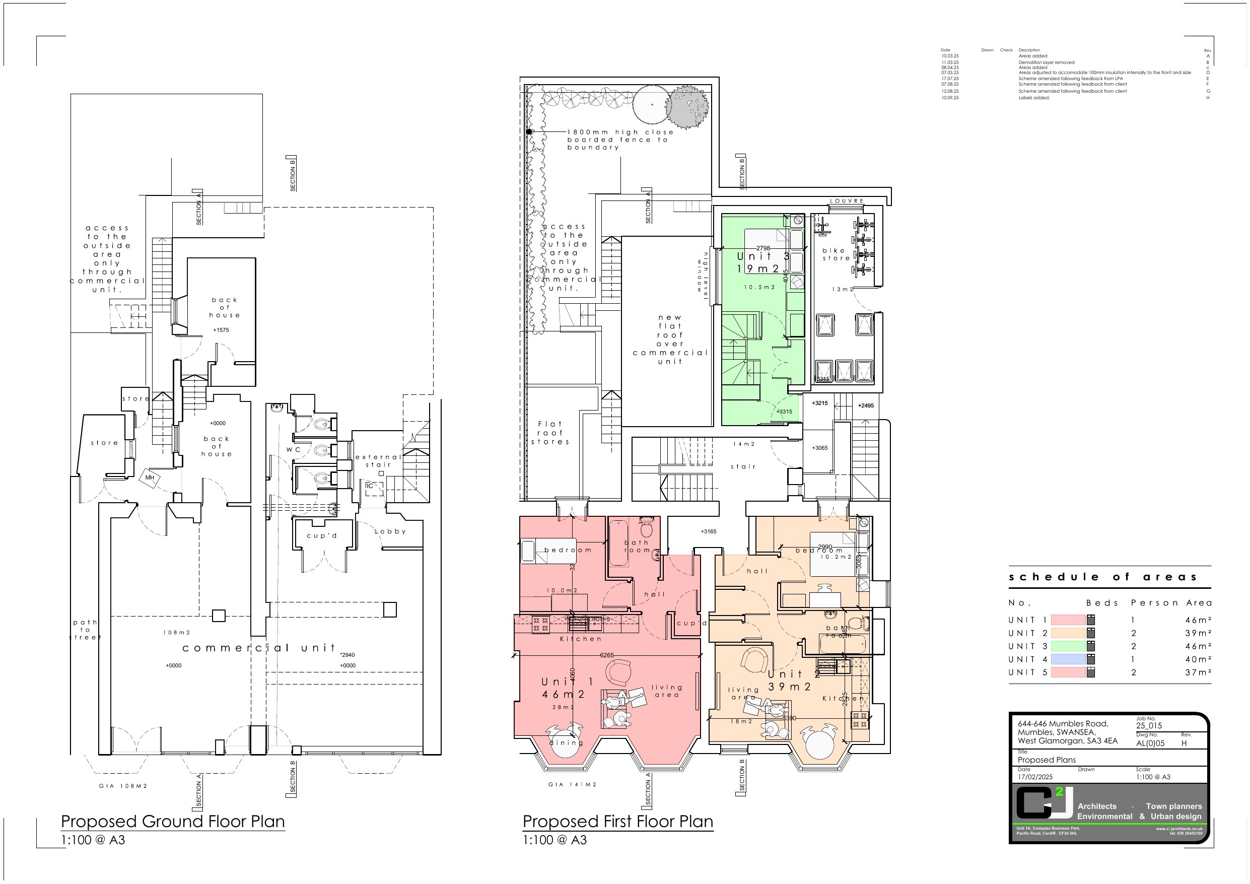
Part demolition of the rear annexe building and the construction of a new central annexe extension, fenestration alterations and the use of extended annexe building and first and second floors of existing building as five affordable (social rented) residential flats (application for Conservation Area Consent)

Documents

APPLICATION FORM
Dogfen Gyfredol - Current Document
Not archived · Council Link
Datganiad i'r Wasg - Press Notice
Datganiad i'r Wasg - Press Notice
Not archived · Council Link
DESIGN AND ACCESS STATEMENT
Dogfen Gyfredol - Current Document
Not archived · Council Link
DRAINAGE STATEMENT
Dogfen Gyfredol - Current Document
Not archived · Council Link
EXISTING ELEVATIONS
Dogfen Gyfredol - Current Document
Not archived · Council Link
EXISTING PLANS
Dogfen Gyfredol - Current Document
Not archived · Council Link
EXISTING SECTIONS
Dogfen Gyfredol - Current Document
Not archived · Council Link
EXISTING TOPOGRAPHICAL SURVEY
Dogfen Gyfredol - Current Document
Not archived · Council Link
FLOOD CONSEQUENCE ASSESSMENT
Dogfen Gyfredol - Current Document
Not archived · Council Link
HERITAGE IMPACT ASSESSMENT
Dogfen Gyfredol - Current Document
Not archived · Council Link
Llythyr Cydnabyddiaeth -Acknowledgement Letter
Llythyr Cydnabyddiaeth -Acknowledgement Letter
Not archived · Council Link
LOCATION PLAN
Dogfen Gyfredol - Current Document
Not archived · Council Link
PRELIMINARY ROOST ASSESSMENT AND BAT ACTIVITY REPORT
Dogfen Gyfredol - Current Document
Not archived · Council Link
PROPOSED ECOLOGICAL ENHANCEMENTS
Dogfen Gyfredol - Current Document
Not archived · Council Link
PROPOSED ELEVATIONS
Dogfen Gyfredol - Current Document
Not archived · Council Link
PROPOSED ELEVATIONS SHEET TWO
Dogfen Gyfredol - Current Document
Not archived · Council Link
Dogfen Gyfredol - Current Document
Archived · Council Link
Dogfen Gyfredol - Current Document
Archived · Council Link
PROPOSED SECTIONS
Dogfen Gyfredol - Current Document
Not archived · Council Link

Take Action

Make your voice heard. Authorities need to hear from people who support new homes.

✉️ Write Email in Support View on Council Portal