2025/2609/FUL
Swansea Council · IDOX
Status
Being Considered
Received
10 Dec 2025
New dwellings
n/a
Full Proposal
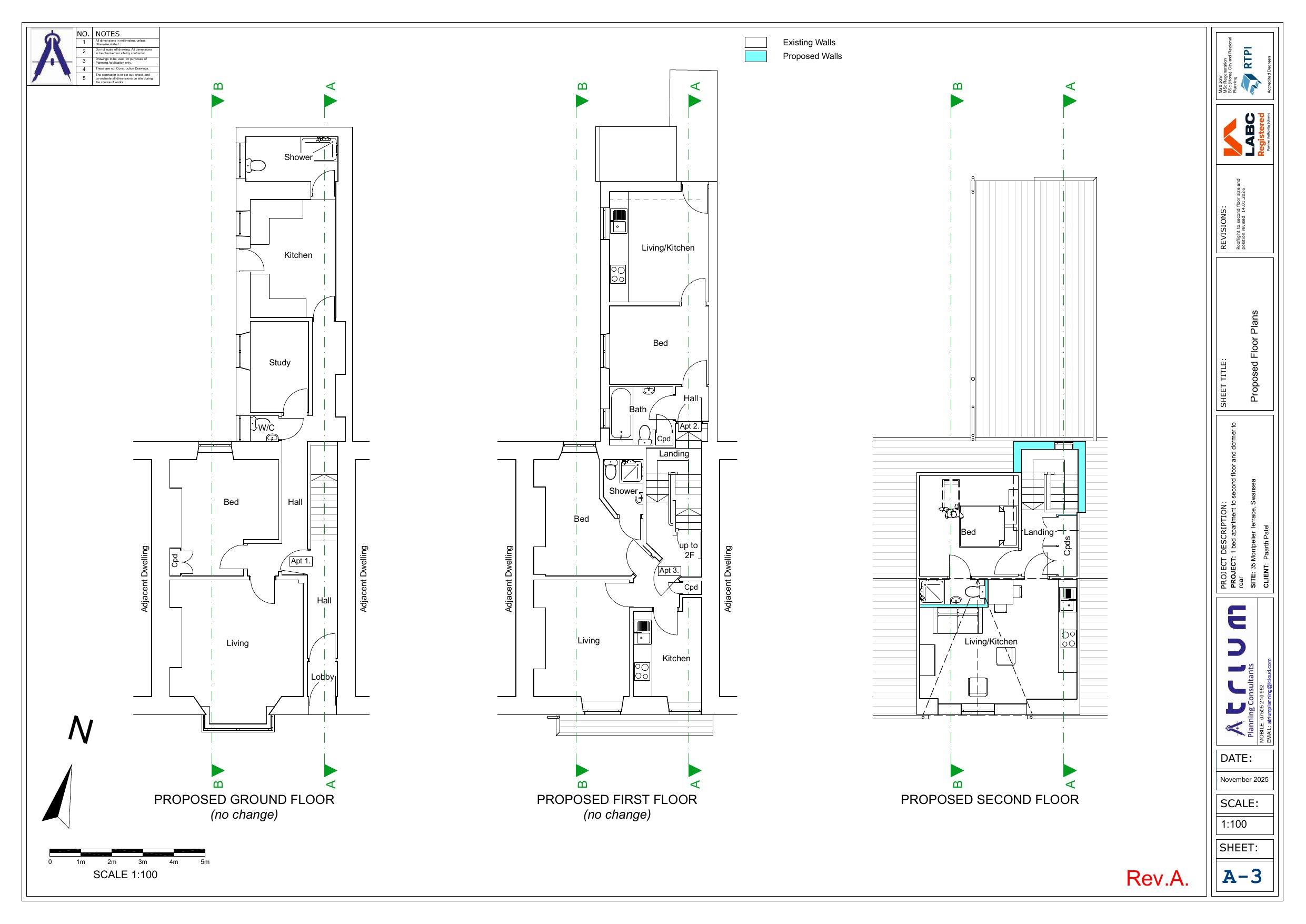
Change of use of 3 no. one bedroom flats to 4 no. one bedroom flats with rear dormer insertion, and creation of rear access with a parking space
Documents
Llythyr Cydnabyddiaeth -Acknowledgement Letter
Llythyr Cydnabyddiaeth -Acknowledgement Letter
Not archived
· Council Link
PROPOSED BLOCK PLAN AND LOCATION PLAN
Dogfen Gyfredol - Current Document
Not archived
· Council Link
SUPERSEDED PROPOSED ELEVATIONS
Dogfen a Ddisodlwyd - Superseded Document
Not archived
· Council Link
SUPERSEDED PROPOSED LOCATION AND BLOCK PLAN
Dogfen a Ddisodlwyd - Superseded Document
Not archived
· Council Link
SUPERSEDED PROPOSED SECTION A-A
Dogfen a Ddisodlwyd - Superseded Document
Not archived
· Council Link
Ymgynghoriad Ymgyngoreion - Consultee Consultation
Ymgynghoriad Ymgyngoreion - Consultee Consultation
Not archived
· Council Link
Ymgynghoriad Ymgyngoreion - Consultee Consultation
Ymgynghoriad Ymgyngoreion - Consultee Consultation
Not archived
· Council Link
Take Action
Make your voice heard. Authorities need to hear from people who support new homes.