← Back to Swindon Borough Council

Status

Application Pending Decision
Received
28 Aug 2025
New dwellings
n/a

Full Proposal

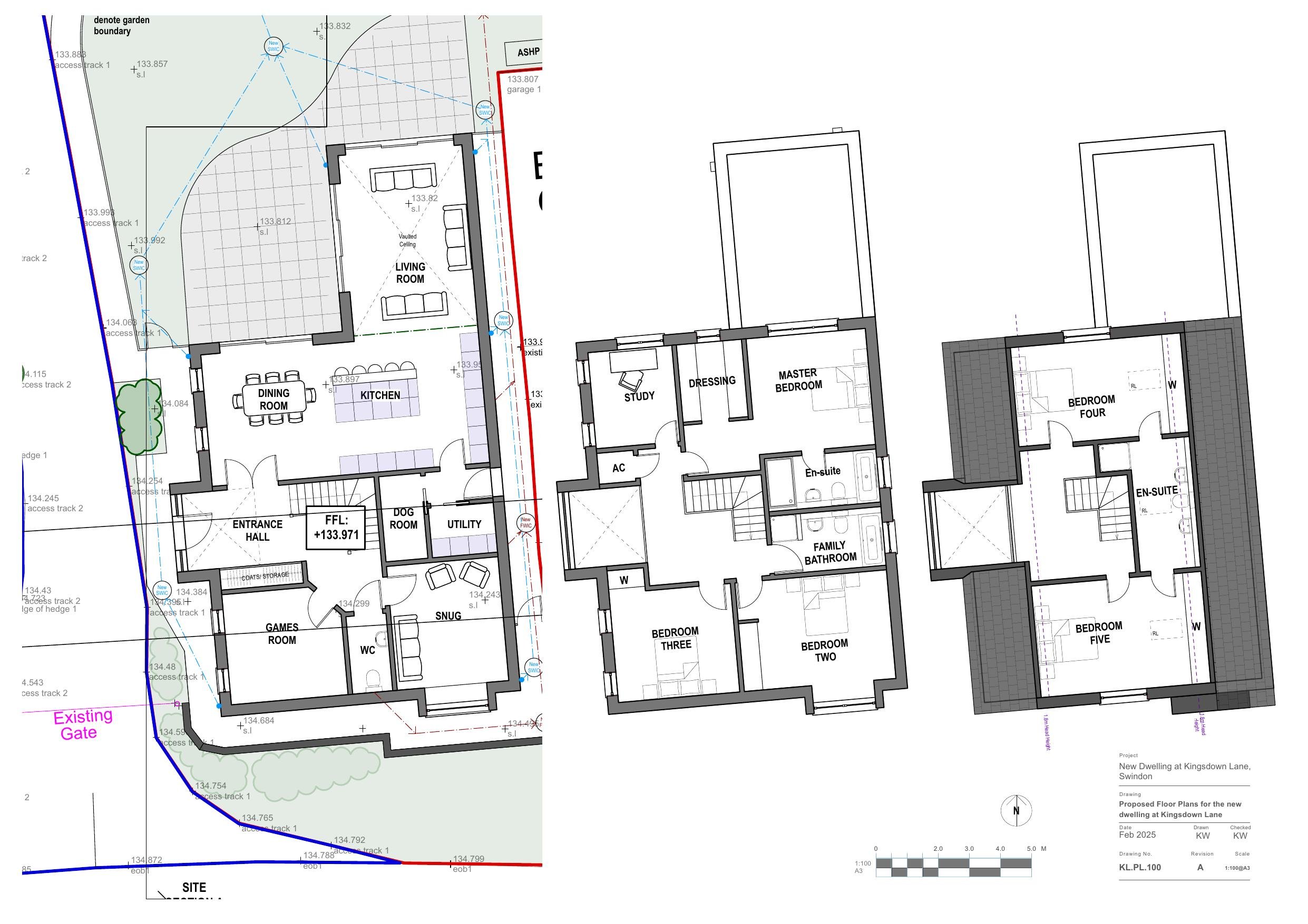
Erection of 1 no. self build dwelling with associated external works including new driveway off the existing access, erection of garage with home office accommodation.

Documents

3D IMAGES
Drawing
Not archived · Council Link
APPLICATION FORM
Application Form
Not archived · Council Link
ARCHAEOLOGY
Consultee Comment
Not archived · Council Link
BLUNSDON PARISH COUNCIL
Consultee Comment
Not archived · Council Link
CIL FORM
Supporting Documents
Not archived · Council Link
DESIGN AND ACCESS STATEMENT
Supporting Documents
Not archived · Council Link
ECOLOGY
Consultee Comment
Not archived · Council Link
ECOLOGY
Consultee Comment
Not archived · Council Link
HIGHWAYS COMMENTS
Consultee Comment
Not archived · Council Link
PLANNING STATEMENT
Supporting Documents
Not archived · Council Link
PRELIMINARY ECOLOGICAL APPRAISAL
Supporting Documents
Not archived · Council Link
PROPOSED AREA FOR CIL
Drawing
Not archived · Council Link
PROPOSED ELEVATIONS
Drawing
Not archived · Council Link
Drawing
Archived · Council Link
PROPOSED GARAGE AREAS FOR CIL
Drawing
Not archived · Council Link
PROPOSED GARAGE PLANS
Drawing
Not archived · Council Link
Drawing
Archived · Council Link
SITE LEVELS
Drawing
Not archived · Council Link
Drawing
Archived · Council Link
SITE SECTIONS B AND C
Drawing
Not archived · Council Link
TOPOGRAPHICAL SURVEY
Drawing
Not archived · Council Link

Take Action

Make your voice heard. Authorities need to hear from people who support new homes.

✉️ Write Email in Support View on Council Portal