← Back to Swindon Borough Council

Status

Application Pending Decision
Received
26 Sep 2025
New dwellings
n/a

Full Proposal

Change of use from a dwellinghouse (C3), to a Residential Institution (C2) for a residential care home for children.

Documents

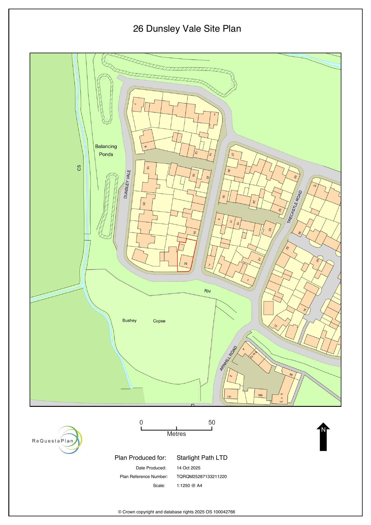
1 TRECASTLE ROAD, SWINDON
Public Comment
Not archived · Council Link
36 TRECASTLE ROAD, SWINDON
Public Comment
Not archived · Council Link
36 TRECASTLE ROAD, SWINDON
Public Comment
Not archived · Council Link
40 TRECASTLE ROAD, SWINDON
Public Comment
Not archived · Council Link
7 TRECASTLE ROAD, SWINDON
Public Comment
Not archived · Council Link
9 TRECASTLE ROAD, SWINDON
Public Comment
Not archived · Council Link
Application Form
Application Form
Not archived · Council Link
ENVIRONMENTAL HEALTH OFFICER COMMENTS
Consultee Comment
Not archived · Council Link
FLOOR PLAN
Drawing
Not archived · Council Link
HIGHWAYS COMMENTS
Consultee Comment
Not archived · Council Link
Drawing
Archived · Council Link

Take Action

Make your voice heard. Authorities need to hear from people who support new homes.

✉️ Write Email in Support View on Council Portal