← Back to Swindon Borough Council

Status

Application Pending Decision
Received
18 Nov 2025
New dwellings
n/a

Summary

Erection of five dwellings.

Full Proposal

Erection of 5No dwellings.

Documents

Application Form
Application Form
Not archived · Council Link
APPLICATION FORM
CIL
Not archived · Council Link
ARBORICULTURAL METHOD STATEMENT
Supporting Documents
Not archived · Council Link
BIODIVERSITY NET GAIN ASSESSMENT
Supporting Documents
Not archived · Council Link
BLUNSDON PARISH COUNCIL
Public Comment
Not archived · Council Link
BNG METRIC
Supporting Documents
Not archived · Council Link
CONTAMINATED LAND OFFICER COMMENTS
Consultee Comment
Not archived · Council Link
DRAINAGE COMMENTS
Consultee Comment
Not archived · Council Link
DRAINAGE COMMENTS
Consultee Comment
Not archived · Council Link
ECOLOGICAL IMPACT ASSESSMENT
Supporting Documents
Not archived · Council Link
ECOLOGIST COMMENTS
Consultee Comment
Not archived · Council Link
EXISTING SITE/BLOCK PLAN
Drawing
Not archived · Council Link
GEOTECHNICAL & GEO-ENVIRONMENTAL SITE INVESTIGATION
Supporting Documents
Not archived · Council Link
HIGHWAYS COMMENTS
Consultee Comment
Not archived · Council Link
LOCATION PLAN
Drawing
Not archived · Council Link
NATIONAL HIGHWAYS COMMENTS
Consultee Comment
Not archived · Council Link
NORTH WILTSHIRE SWIFTS, BEAUMONT HAMEL, WYNDHAM ROAD, SALISBURY
Public Comment
Not archived · Council Link
PHASE 1 AND 2 REPORT PART 3 OF 3
Drawing
Not archived · Council Link
PHASE 1 AND PHASE 2 REPORT
Drawing
Not archived · Council Link
PHASE 2 ENGINEERING
Revised Drawing
Not archived · Council Link
PHASE 2 ENGINEERING LAYOUT
Drawing
Not archived · Council Link
PLANNING STATEMENT (INCLUDING DESIGN COMMENTARY
Supporting Documents
Not archived · Council Link
PLOT 1 SOAKAWAY
Supporting Documents
Not archived · Council Link
PLOT 2 AND 3 SOAKAWAY
Supporting Documents
Not archived · Council Link
PLOT 2 SOAKAWAY
Supporting Documents
Not archived · Council Link
PLOT 4 SOAKAWAY
Supporting Documents
Not archived · Council Link
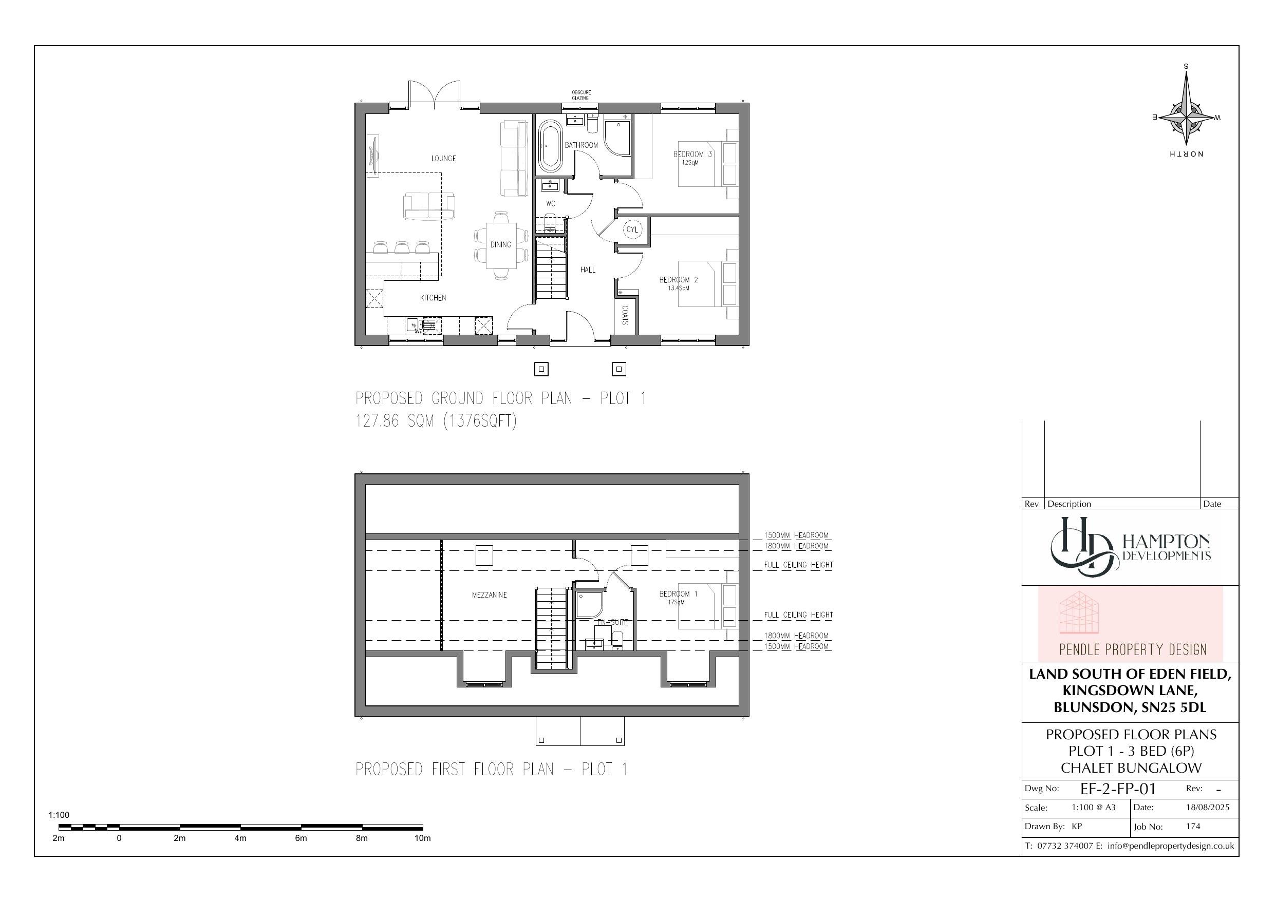
PROPOSED ELEVATIONS PLOT 1 - 3 BED (6P) CHALET BUNGALOW
Drawing
Not archived · Council Link
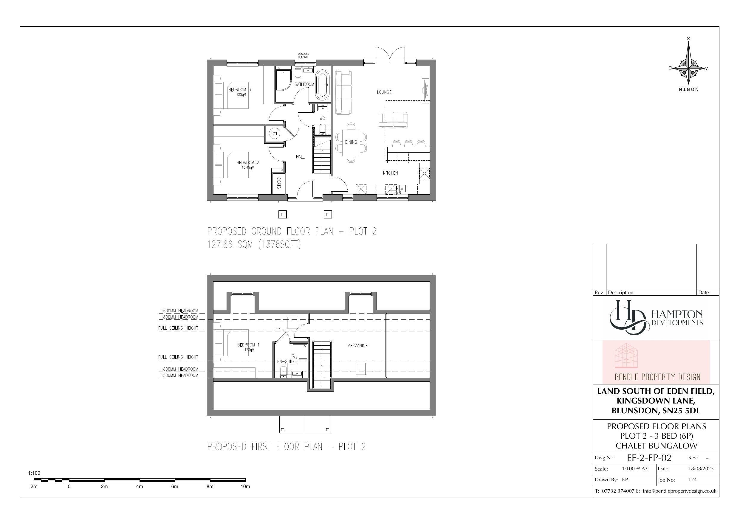
PROPOSED ELEVATIONS PLOT 2 - 3 BED (6P) CHALET BUNGALOW
Drawing
Not archived · Council Link
PROPOSED ELEVATIONS PLOT 3 - 3 BED (6P) CHALET BUNGALOW
Drawing
Not archived · Council Link
PROPOSED ELEVATIONS PLOTS 4 & 5 - 3 BED (5P) BUNGALOW
Drawing
Not archived · Council Link
PROPOSED FLOOR PLAN PLOTS 4 & 5 - 3 BED (5P) BUNGALOW
Drawing
Not archived · Council Link
PROPOSED SITE/BLOCK PLANS
Drawing
Not archived · Council Link
SOFTSCAPE
Drawing
Not archived · Council Link
SUDS MANAGEMENT & MAINTENANCE PLAN
Supporting Documents
Not archived · Council Link
TOPOGRAPHICAL SURVEY
Revised Drawing
Not archived · Council Link

Take Action

Make your voice heard. Authorities need to hear from people who support new homes.

✉️ Write Email in Support View on Council Portal