← Back to Swindon Borough Council

Status

Decided
Received
09 Oct 2025
New dwellings
n/a

Summary

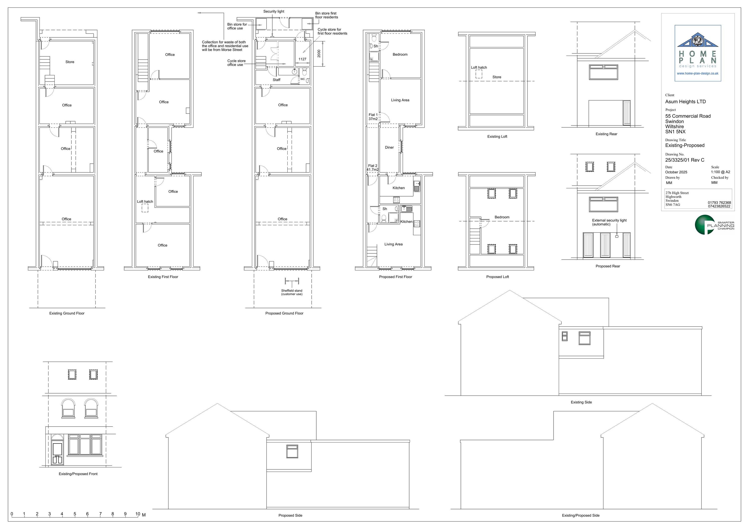
Change of use of first floor and loft from Class E to two residential flats; ground floor retained commercial.

Full Proposal

Prior Approval Notification for the Change of use of first floor & loft from (Class E) to 2 no residential flats. Ground floor to remain (Class E).

Documents

000008372-REQUEST_-_PROMPTER_LETTER.
CIL
Not archived · Council Link
APPLICATION FORM
Application Form
Not archived · Council Link
BLOCK PLAN
Supporting Documents
Not archived · Council Link
CIL FORM
Supporting Documents
Not archived · Council Link
Decision
Decision
Not archived · Council Link
Delegated Report
Delegated Report
Not archived · Council Link
ENVIRONMENTAL HEALTH OFFICER COMMENTS
Consultee Comment
Not archived · Council Link
FULL PLANS
Revised Drawing
Not archived · Council Link
HIGHWAYS
Consultee Comment
Not archived · Council Link
HIGHWAYS COMMENTS
Consultee Comment
Not archived · Council Link
Drawing
Archived · Council Link

Take Action

Make your voice heard. Authorities need to hear from people who support new homes.

✉️ Write Email in Support View on Council Portal