← Back to Swindon Borough Council

Status

Application Permitted
Received
12 Aug 2025
New dwellings
n/a

Summary

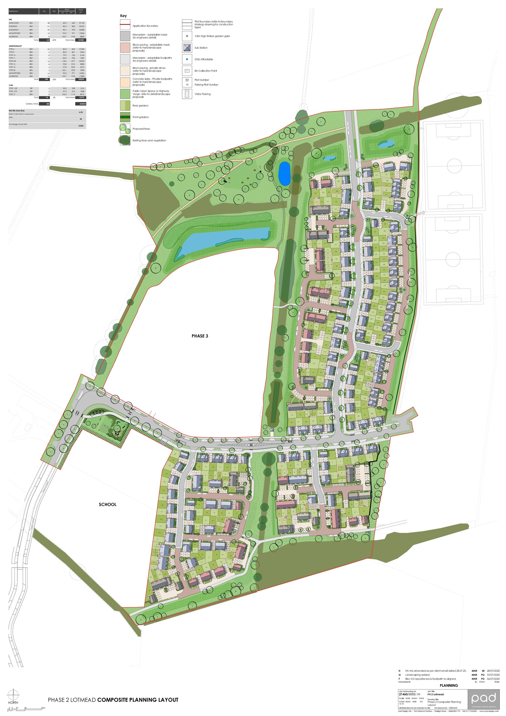
Reserved matters for erection of 283 dwellings with associated works and landscaping.

Full Proposal

Erection of 283no. dwellings and associated works (Phase 2) for the layout, scale, appearance, access (other than access from Wanborough Road, as already approved by the outline permission) and landscaping - Reserved Matters from previous outline permission S/OUT/19/0582.

Documents

A SUMMARY OF THE ATTACHMENTS IN THE PROPOSAL
Correspondence
Not archived · Council Link
ACCOMMODATION SCHEDULE
Supporting Documents
Not archived · Council Link
ACCOMMODATION SCHEDULE
Supporting Documents
Not archived · Council Link
ACCOMODATION SCHEDULE - LEAMP APPENDIX 7
Supporting Documents
Not archived · Council Link
ADOPTABLE AREAS STRATEGY
Revised Drawing
Not archived · Council Link
ADOPTABLE AREAS STRATEGY
Revised Drawing
Not archived · Council Link
ADOPTABLE AREAS STRATEGY
Drawing
Not archived · Council Link
ADVER LIST 05.09.25
BackGround Papers
Not archived · Council Link
AFFORDABLE HOUSING STRATEGY
Revised Drawing
Not archived · Council Link
APPLICATION FORM
Application Form
Not archived · Council Link
ARBORICULTURAL ASSESSMENT & METHOD STATEMENT - LEAMP APPENDIX 4
Supporting Documents
Not archived · Council Link
ARBORICULTURAL ASSESSMENT & METHOD STATEMENT - LEAMP APPENDIX 4
Supporting Documents
Not archived · Council Link
ARBORICULTURAL ASSESSMENT & METHOD STATEMENT 1 OF 2
Supporting Documents
Not archived · Council Link
ARBORICULTURAL ASSESSMENT & METHOD STATEMENT 2 OF 2
Supporting Documents
Not archived · Council Link
ARBORICULTURAL ASSESSMENT AND METHOD STATEMENT
Supporting Documents
Not archived · Council Link
ARBORICULTURAL ASSESSMENT METHOD STATEMENT
Supporting Documents
Not archived · Council Link
ARCHAEOLOGIST COMMENTS
Consultee Comment
Not archived · Council Link
BAT AND BIRDBOX PLAN
Drawing
Not archived · Council Link
BAT AND BIRDBOX PLAN
Drawing
Not archived · Council Link
BIRD AND BAT BOXES
Drawing
Not archived · Council Link
BIRD AND BAT NEST BOXES
Revised Drawing
Not archived · Council Link
BIRD AND BAT NEST BOXES
Drawing
Not archived · Council Link
BIRD AND BAT NEST BOXES - LEAMP APPENDIX 7
Revised Drawing
Not archived · Council Link
BNG - PHASE 2 STATUTORY METRIC
Supporting Documents
Not archived · Council Link
BNG TECHNICAL NOTE
Supporting Documents
Not archived · Council Link
BNG TECHNICAL NOTE
Supporting Documents
Not archived · Council Link
BOUNDARY TREATMENT STRATEGY
Revised Drawing
Not archived · Council Link
BOUNDARY TREATMENT STRATEGY
Revised Drawing
Not archived · Council Link
BOUNDARY TREATMENT STRATEGY
Drawing
Not archived · Council Link
BUILDING HEIGHT STRATEGY
Drawing
Not archived · Council Link
BUILDING HEIGHT STRATEGY
Revised Drawing
Not archived · Council Link
BUILDING HEIGHT STRATEGY
Revised Drawing
Not archived · Council Link
CAR BARNS
Revised Drawing
Not archived · Council Link
CHARACTER AREA DEVELOPMENT
Revised Drawing
Not archived · Council Link
CHARACTER AREA DEVELOPMENT
Revised Drawing
Not archived · Council Link
CHARACTER AREA SCHEDULE
Supporting Documents
Not archived · Council Link
CHARACTER AREA SCHEDULE
Revised Drawing
Not archived · Council Link
CHARACTER AREA SCHEDULE
Revised Drawing
Not archived · Council Link
CHARACTER AREA STRATEGY
Revised Drawing
Not archived · Council Link
CHARACTER AREA STRATEGY
Revised Drawing
Not archived · Council Link
CHARACTER AREA STRATEGY
Drawing
Not archived · Council Link
CIL ADDITIONAL INFORMATION
CIL
Not archived · Council Link
COMMUNITY INFRASTRUCTURE LEVY - COMPLETED FORM
Correspondence
Not archived · Council Link
Revised Drawing
Archived · Council Link
Revised Drawing
Archived · Council Link
Revised Drawing
Archived · Council Link
COVERING LETTER
Correspondence
Not archived · Council Link
COVERING LETTER
Correspondence
Not archived · Council Link
Decision
Decision
Not archived · Council Link
Delegated Report
Delegated Report
Not archived · Council Link
DESIGN COMPLIANCE STATEMENT
Supporting Documents
Not archived · Council Link
DESIGN COMPLIANCE STATEMENT PART 1
Supporting Documents
Not archived · Council Link
DESIGN COMPLIANCE STATEMENT PART 2
Supporting Documents
Not archived · Council Link
DESIGNING OUT CRIME OFFICER COMMENTS
Consultee Comment
Not archived · Council Link
DITCH REPROFILING WORKS
Supporting Documents
Not archived · Council Link
DRAINAGE COMMENTS
Consultee Comment
Not archived · Council Link
DRAINAGE COMMENTS
Consultee Comment
Not archived · Council Link
DRAINAGE LAYOUT SHEET 1
Revised Drawing
Not archived · Council Link
DRAINAGE LAYOUT SHEET 2
Revised Drawing
Not archived · Council Link
DRAINAGE LAYOUT SHEET 3
Revised Drawing
Not archived · Council Link
DRAINAGE LAYOUT SHEET 4
Revised Drawing
Not archived · Council Link
DRAINAGE LAYOUT SHEET 5
Revised Drawing
Not archived · Council Link
ECOLOGICAL ENHANCEMENTS PLAN - LEAMP APPENDIX 7
Supporting Documents
Not archived · Council Link
ECOLOGICAL ENHANCEMENTS PLAN - LEAMP APPENDIX 7
Supporting Documents
Not archived · Council Link
ECOLOGICAL MITIGATION AND MANAGEMENT FRAMEWORK
Drawing
Not archived · Council Link
ECOLOGICAL MITIGATION AND MANAGEMENT FRAMEWORK
Supporting Documents
Not archived · Council Link
ECOLOGICAL MITIGATION AND MANAGEMENT FRAMEWORK - LEAMP APPENDIX 2
Supporting Documents
Not archived · Council Link
ECOLOGY COMMENTS
Consultee Comment
Not archived · Council Link
ECOLOGY SCHEDULE
Supporting Documents
Not archived · Council Link
ECOLOGY SCHEDULE - LEAMP APPENDIX 7
Supporting Documents
Not archived · Council Link
ECOLOGY STATEMENT
Supporting Documents
Not archived · Council Link
FACING MATERIALS STRATEGY
Correspondence
Not archived · Council Link
FLOOR PLANS AND ELEVATIONS
Drawing
Not archived · Council Link
FLOOR PLANS AND ELEVATIONS
Drawing
Not archived · Council Link
GENERAL ARRANGEMENT SHEET 1
Revised Drawing
Not archived · Council Link
GENERAL ARRANGEMENT SHEET 2
Revised Drawing
Not archived · Council Link
GENERAL ARRANGEMENT SHEET 3
Revised Drawing
Not archived · Council Link
GENERAL ARRANGEMENT SHEET 4
Revised Drawing
Not archived · Council Link
HABITAT MANAGEMENT AND MONITORING PLAN
Supporting Documents
Not archived · Council Link
HABITAT MANAGEMENT AND MONITORING PLAN - LEAMP APPENDIX 8
Supporting Documents
Not archived · Council Link
HARD SURFACE & BOUNDARY TREATMENT PROPOSALS
Revised Drawing
Not archived · Council Link
HARD SURFACE & BOUNDARY TREATMENT PROPOSALS
Revised Drawing
Not archived · Council Link
HARD SURFACE & BOUNDARY TREATMENTS
Revised Drawing
Not archived · Council Link
HARD SURFACE & BOUNDARY TREATMENTS
Revised Drawing
Not archived · Council Link
HARD SURFACE AND BOUNDARY TREATMENT PROPOSALS
Drawing
Not archived · Council Link
HARD SURFACE AND BOUNDARY TREATMENT PROPOSALS 2 OF 2
Drawing
Not archived · Council Link
HIGHWAYS COMMENTS
Consultee Comment
Not archived · Council Link
HIGHWAYS COMMENTS
Consultee Comment
Not archived · Council Link
HMMP PHASE 2
Supporting Documents
Not archived · Council Link
HOUSE TYPE
Revised Drawing
Not archived · Council Link
HOUSE TYPES PART 1
Revised Drawing
Not archived · Council Link
HOUSE TYPES PART 2
Revised Drawing
Not archived · Council Link
HOUSE TYPES PT1
Revised Drawing
Not archived · Council Link
HOUSE TYPES PT2
Revised Drawing
Not archived · Council Link
HYDRANT LOCATION STRATEGY
Revised Drawing
Not archived · Council Link
ILLUSTRATIVE MASTERPLAN
Drawing
Not archived · Council Link
ILLUSTRATIVE MASTERPLAN
Revised Drawing
Not archived · Council Link
ILLUSTRATIVE MASTERPLAN - LEAMP APPENDIX 5
Revised Drawing
Not archived · Council Link
INDICATIVE LEVELS SHEET 1
Revised Drawing
Not archived · Council Link
INDICATIVE LEVELS SHEET 2
Revised Drawing
Not archived · Council Link
INDICATIVE LEVELS SHEET 3
Revised Drawing
Not archived · Council Link
INDICATIVE LEVELS SHEET 4
Revised Drawing
Not archived · Council Link
LANDSCAPE ARCHITECT
Consultee Comment
Not archived · Council Link
LANDSCAPE ARCHITECT COMMENTS
Consultee Comment
Not archived · Council Link
LANDSCAPE COORDINATION PLAN
Drawing
Not archived · Council Link
LANDSCAPE COORDINATION PLAN
Revised Drawing
Not archived · Council Link
LANDSCAPE COORDINATION PLAN
Revised Drawing
Not archived · Council Link
LANDSCAPE MASTERPLAN
Revised Drawing
Not archived · Council Link
LANDSCAPE MASTERPLAN
Revised Drawing
Not archived · Council Link
LANDSCAPE MASTERPLAN
Drawing
Not archived · Council Link
LANDSCAPE MASTERPLAN
Revised Drawing
Not archived · Council Link
LANDSCAPE MASTERPLAN
Revised Drawing
Not archived · Council Link
LANDSCAPE MASTERPLAN - LEAMP APPENDIX 1
Revised Drawing
Not archived · Council Link
LANDSCAPE NOTE
Revised Drawing
Not archived · Council Link
LANDSCAPE, ECOLOGY & ARBORICULTURAL MANAGEMENT PLAN
Supporting Documents
Not archived · Council Link
LANDSCAPE, ECOLOGY & ARBORICULTURAL MANAGEMENT PLAN
Supporting Documents
Not archived · Council Link
LANDSCAPE, ECOLOGY, ARBORICULTURAL MANAGEMENT PLAN
Supporting Documents
Not archived · Council Link
LANDSCAPING MASTERPLAN
Drawing
Not archived · Council Link
LEAP PROPOSALS
Revised Drawing
Not archived · Council Link
LEAP PROPOSALS
Drawing
Not archived · Council Link
LIABILITY_NOTICE_REDACTED
Appeal Correspondence
Not archived · Council Link
LOTMEAD FARM PHASE 2 DESIGN COMPLIANCE STATEMENT PART 1
Supporting Documents
Not archived · Council Link
LOTMEAD FARM PHASE 2 DESIGN COMPLIANCE STATEMENT PART 2
Supporting Documents
Not archived · Council Link
MATERIALS STRATEGY
Revised Drawing
Not archived · Council Link
MATERIALS STRATEGY
Revised Drawing
Not archived · Council Link
MATERIALS STRATEGY
Drawing
Not archived · Council Link
NET GAIN IN BIODIVERSITY
Supporting Documents
Not archived · Council Link
NORTH WILTSHIRE SWIFTS, BEAUMONT HAMEL, WYNDHAM ROAD, SALISBURY
Public Comment
Not archived · Council Link
PARAMETER PLAN
Drawing
Not archived · Council Link
PARAMETER PLAN GREEN INFRASTRUCTURE
Revised Drawing
Not archived · Council Link
PARAMETER PLAN-GREEN INFRASTRUCTURE - LEAMP APPENDIX 6
Revised Drawing
Not archived · Council Link
PARKING STRATEGY
Revised Drawing
Not archived · Council Link
PARKING STRATEGY
Revised Drawing
Not archived · Council Link
PARKING STRATEGY
Revised Drawing
Not archived · Council Link
PARKING STRATEGY
Drawing
Not archived · Council Link
Revised Drawing
Archived · Council Link
Correspondence
Archived · Council Link
PHASE 2 STATUTORY METRIC
Supporting Documents
Not archived · Council Link
PHASE 2/3 JUNCTION AT PRIMARY STREET INTERSECTION
Drawing
Not archived · Council Link
PLANTING PROPOSALS 1 OF 20
Revised Drawing
Not archived · Council Link
PLANTING PROPOSALS 1 OF 20
Revised Drawing
Not archived · Council Link
PLANTING PROPOSALS 10 OF 20
Revised Drawing
Not archived · Council Link
PLANTING PROPOSALS 11 OF 20
Revised Drawing
Not archived · Council Link
PLANTING PROPOSALS 12 OF 20
Revised Drawing
Not archived · Council Link
PLANTING PROPOSALS 13 OF 20
Revised Drawing
Not archived · Council Link
PLANTING PROPOSALS 14 OF 20
Revised Drawing
Not archived · Council Link
PLANTING PROPOSALS 15 OF 20
Revised Drawing
Not archived · Council Link
PLANTING PROPOSALS 16 OF 20
Revised Drawing
Not archived · Council Link
PLANTING PROPOSALS 16 OF 20
Revised Drawing
Not archived · Council Link
PLANTING PROPOSALS 17 OF 20
Revised Drawing
Not archived · Council Link
PLANTING PROPOSALS 17 OF 20
Revised Drawing
Not archived · Council Link
PLANTING PROPOSALS 18 OF 20
Revised Drawing
Not archived · Council Link
PLANTING PROPOSALS 18 OF 20
Revised Drawing
Not archived · Council Link
PLANTING PROPOSALS 19 OF 20
Revised Drawing
Not archived · Council Link
PLANTING PROPOSALS 19 OF 20
Revised Drawing
Not archived · Council Link
PLANTING PROPOSALS 2 OF 20
Revised Drawing
Not archived · Council Link
PLANTING PROPOSALS 20 OF 20
Revised Drawing
Not archived · Council Link
PLANTING PROPOSALS 3 OF 20
Revised Drawing
Not archived · Council Link
PLANTING PROPOSALS 3 OF 20
Revised Drawing
Not archived · Council Link
PLANTING PROPOSALS 4 OF 20
Revised Drawing
Not archived · Council Link
PLANTING PROPOSALS 4 OF 20
Revised Drawing
Not archived · Council Link
PLANTING PROPOSALS 5 OF 20
Revised Drawing
Not archived · Council Link
PLANTING PROPOSALS 6 OF 20
Revised Drawing
Not archived · Council Link
PLANTING PROPOSALS 7 OF 20
Revised Drawing
Not archived · Council Link
PLANTING PROPOSALS 7 OF 20
Revised Drawing
Not archived · Council Link
PLANTING PROPOSALS 8 OF 20
Revised Drawing
Not archived · Council Link
PLANTING PROPOSALS 9 OF 20
Revised Drawing
Not archived · Council Link
PLANTING PROPOSALS SHEET 1 OF 20 DR-0004
Drawing
Not archived · Council Link
PLANTING PROPOSALS SHEET 10/20
Drawing
Not archived · Council Link
PLANTING PROPOSALS SHEET 11/20
Drawing
Not archived · Council Link
PLANTING PROPOSALS SHEET 12/20
Drawing
Not archived · Council Link
PLANTING PROPOSALS SHEET 13/20
Correspondence
Not archived · Council Link
PLANTING PROPOSALS SHEET 14/20
Drawing
Not archived · Council Link
PLANTING PROPOSALS SHEET 15/20
Drawing
Not archived · Council Link
PLANTING PROPOSALS SHEET 16/20
Drawing
Not archived · Council Link
PLANTING PROPOSALS SHEET 17/20
Drawing
Not archived · Council Link
PLANTING PROPOSALS SHEET 18/20
Correspondence
Not archived · Council Link
PLANTING PROPOSALS SHEET 2/20
Drawing
Not archived · Council Link
PLANTING PROPOSALS SHEET 20/20
Drawing
Not archived · Council Link
PLANTING PROPOSALS SHEET 3/20
Drawing
Not archived · Council Link
PLANTING PROPOSALS SHEET 4/20
Drawing
Not archived · Council Link
PLANTING PROPOSALS SHEET 5/10
Drawing
Not archived · Council Link
PLANTING PROPOSALS SHEET 7/20
Drawing
Not archived · Council Link
PLANTING PROPOSALS SHEET 8/20
Drawing
Not archived · Council Link
PLANTING PROPOSALS SHEET 8/20
Drawing
Not archived · Council Link
PLANTING PROPOSALS SHEET 9/10
Drawing
Not archived · Council Link
PROJECT TEAM RESPONSE TO CONSULTEE COMMENTS
Correspondence
Not archived · Council Link
PROPOSAL
Correspondence
Not archived · Council Link
PROPOSED LEVELS PLAN SHEET 1
Drawing
Not archived · Council Link
PROPOSED LEVELS PLAN SHEET 2
Drawing
Not archived · Council Link
PROPOSED LEVELS PLAN SHEET 3
Drawing
Not archived · Council Link
PROPOSED LEVELS PLAN SHEET 4
Drawing
Not archived · Council Link
PROPOSED TREE, SWALE AND SERVICES SECTION
Drawing
Not archived · Council Link
REFUSE COLLECTION STRATEGY
Revised Drawing
Not archived · Council Link
REFUSE COLLECTION STRATEGY
Revised Drawing
Not archived · Council Link
REFUSE COLLECTION STRATEGY
Drawing
Not archived · Council Link
RESPONSE TO ECOLOGY
Correspondence
Not archived · Council Link
REVISED COVER LETTER
Correspondence
Not archived · Council Link
REVISED COVER LETTER
Correspondence
Not archived · Council Link
RIVER CONDITION ASSESSMENT RECOMMENDATIONS
Supporting Documents
Not archived · Council Link
SAFE ROUTES TO SCHOOL
Drawing
Not archived · Council Link
SAFE ROUTES TO SCHOOL PLAN
Revised Drawing
Not archived · Council Link
SBC HOUSING DEPARTMENT
Consultee Comment
Not archived · Council Link
SCHEDULE OF PROJECT TEAM RESPONSES
Supporting Documents
Not archived · Council Link
SCHEDULE OF PROJECT TEAM RESPONSES
Supporting Documents
Not archived · Council Link
Revised Drawing
Archived · Council Link
Drawing
Archived · Council Link
STREET SCENES
Drawing
Not archived · Council Link
STREET SCENES
Revised Drawing
Not archived · Council Link
STREET SCENES
Revised Drawing
Not archived · Council Link
SURFACE WATER DRAINAGE STRATEGY - 1OF4
Revised Drawing
Not archived · Council Link
SURFACE WATER DRAINAGE STRATEGY - 2OF4
Revised Drawing
Not archived · Council Link
SURFACE WATER DRAINAGE STRATEGY - 3OF4
Revised Drawing
Not archived · Council Link
SURFACE WATER DRAINAGE STRATEGY - 4OF4
Revised Drawing
Not archived · Council Link
THE MEADOW LEAP PROPOSALS
Revised Drawing
Not archived · Council Link
THE_STATUTORY_METRIC
Supporting Documents
Not archived · Council Link
TRANSPORT NOTE
Supporting Documents
Not archived · Council Link
TRANSPORT NOTE OCT 2025 FINAL ATTACHMENTS 4-6
Supporting Documents
Not archived · Council Link
TRANSPORT NOTE OCT 2025 FINAL ATTACHMENTS 7-8
Supporting Documents
Not archived · Council Link
TRANSPORT NOTE OCT 2025 FINAL ATTACHMENTS1-3
Supporting Documents
Not archived · Council Link
TRANSPORT NOTE OCT 2025 FINAL TEXT
Supporting Documents
Not archived · Council Link
TREE PLANTING DETAILS
Drawing
Not archived · Council Link
TREE PLANTING DETAILS
Drawing
Not archived · Council Link
TREE PROTECTION PLAN
Drawing
Not archived · Council Link
TREE PROTECTION PLAN
Drawing
Not archived · Council Link
TREE RETENTION PLAN
Drawing
Not archived · Council Link
TREE RETENTION PLAN
Drawing
Not archived · Council Link
TREE SURVEY PLAN
Drawing
Not archived · Council Link
TRIM TRAIL STATION
Revised Drawing
Not archived · Council Link
TYPICAL PROPOSED TREE SWALE & SERVICES SECTION
Revised Drawing
Not archived · Council Link
TYPICAL TREE PLANTING DETAILS
Revised Drawing
Not archived · Council Link
UPDATE ECOLOGICAL APPRAISAL
Supporting Documents
Not archived · Council Link
UPDATE ECOLOGICAL APPRAISAL
Supporting Documents
Not archived · Council Link
UPDATE ECOLOGICAL APPRAISAL - LEAMP APPENDIX 3
Supporting Documents
Not archived · Council Link
UPDATE ECOLOGICAL APPRAISAL - LEAMP APPENDIX 3
Supporting Documents
Not archived · Council Link
WANBOROUGH PARISH COUNCIL COMMENTS
Consultee Comment
Not archived · Council Link

Take Action

Make your voice heard. Authorities need to hear from people who support new homes.

✉️ Write Email in Support View on Council Portal