← Back to Tameside Metropolitan Borough Council

Status

Awaiting decision
Received
06 Oct 2025
New dwellings
n/a

Full Proposal

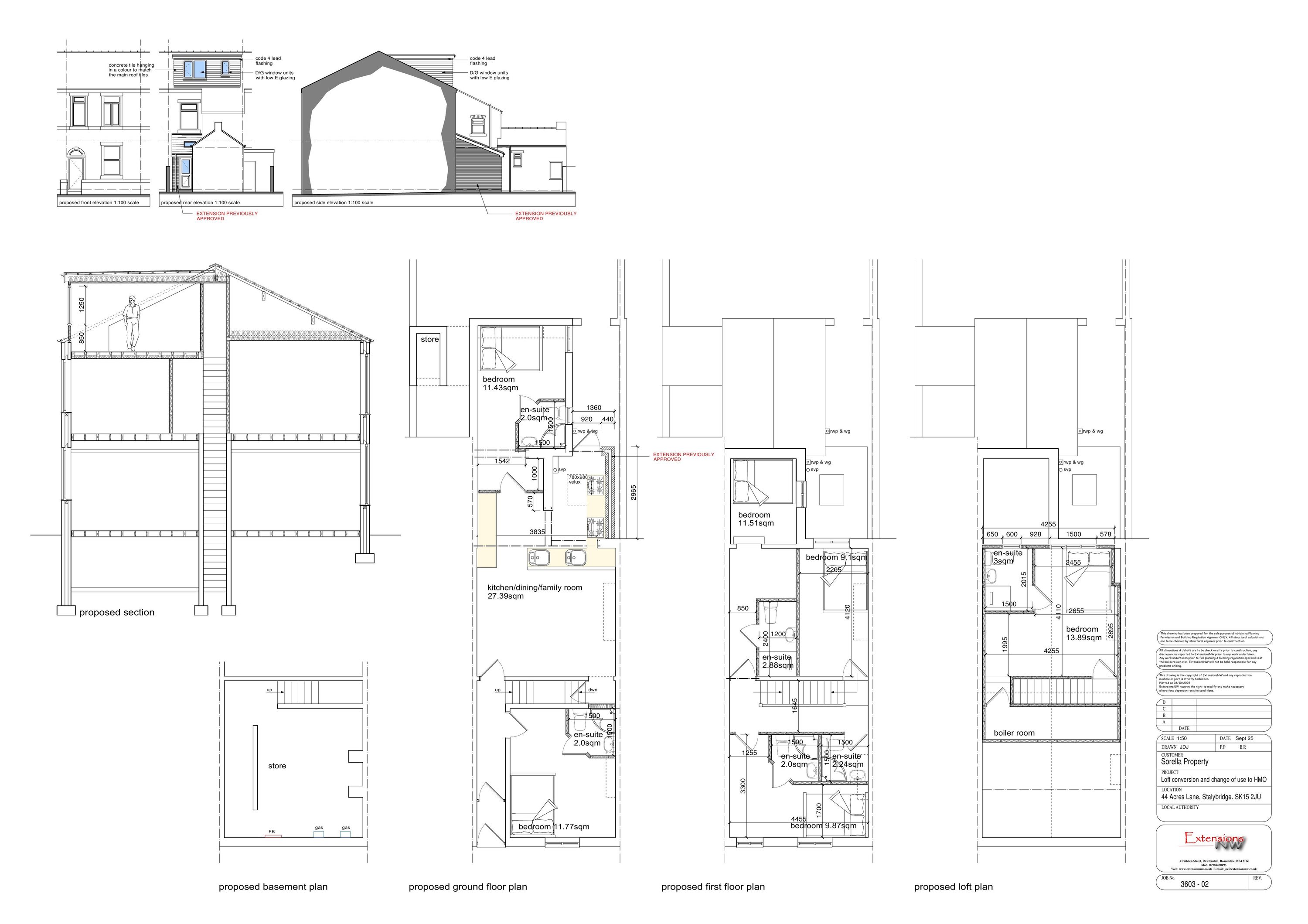
Change of use from a dwellinghouse (Use Class C3) to a 6 bedroom/person HMO (Use Class C4). Dormer loft conversion to the rear elevation

Documents

APPLICATION FORM - WITHOUT PERSONAL INFORMATION
Application Form
Not archived · Council Link
BLOCK PLAN
Drawings
Not archived · Council Link
CONSULTATION RESPONSE - CONTAMINATED LAND
Consultee Comment
Not archived · Council Link
CONSULTATION RESPONSE - ENVIRO SERVICES
Consultee Comment
Not archived · Council Link
CONSULTATION RESPONSE - HOUSING STANDARDS
Consultee Comment
Not archived · Council Link
CONSULTATION RESPONSE - LHA
Consultee Comment
Not archived · Council Link
CONSULTATION RESPONSE - WASTE
Consultee Comment
Not archived · Council Link
EXISTING PLANS & ELEVATIONS
Drawings
Not archived · Council Link
Drawings
Archived · Council Link
LOCATION PLAN
Drawings
Not archived · Council Link
PLANNING STATEMENT
Background Papers
Not archived · Council Link

Take Action

Make your voice heard. Authorities need to hear from people who support new homes.

✉️ Write Email in Support View on Council Portal