← Back to Tameside Metropolitan Borough Council

Status

Awaiting decision
Received
12 Nov 2025
New dwellings
n/a

Summary

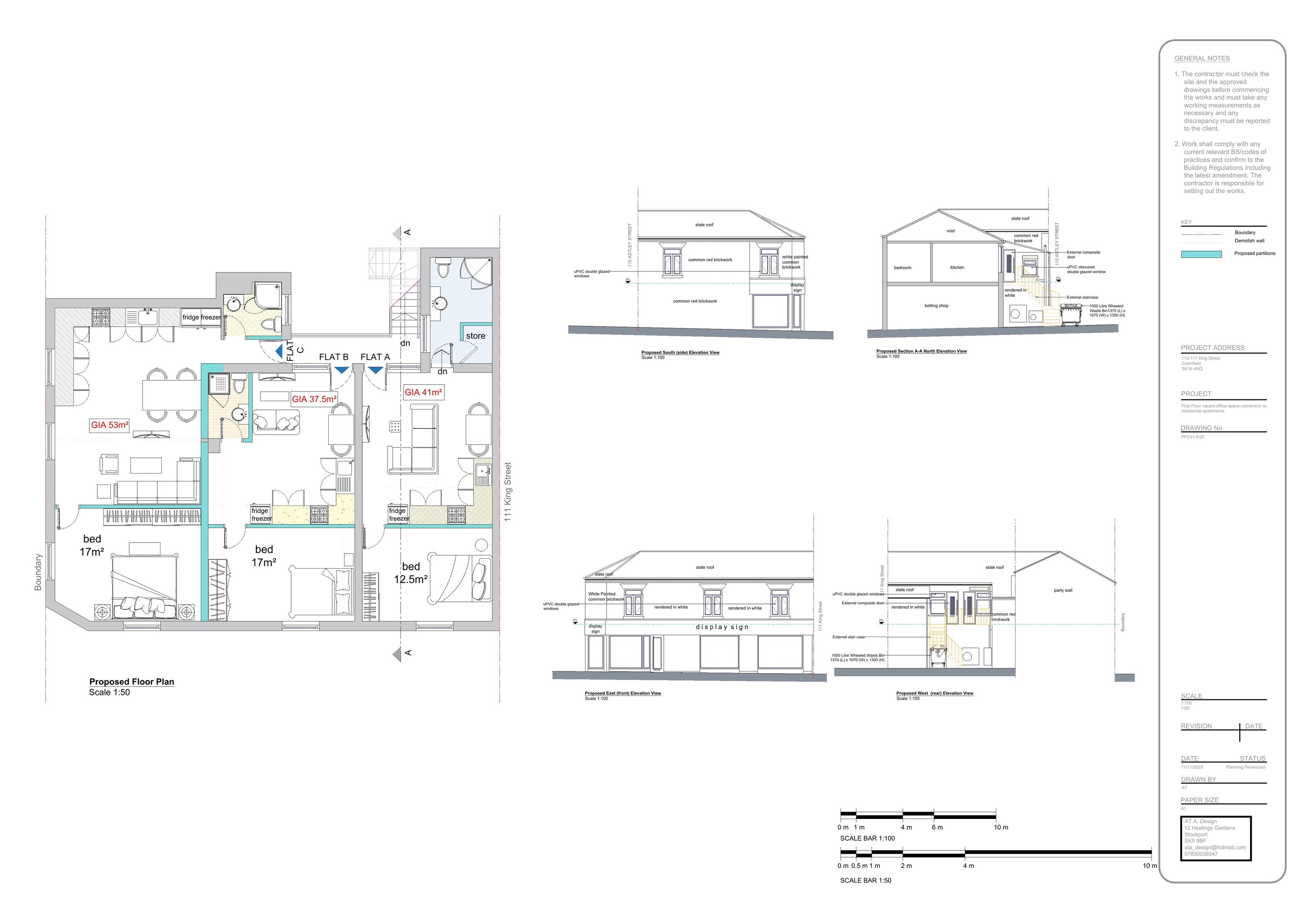
Change of use of first floor from offices to three self‑contained flats with external alterations.

Full Proposal

Change of use of first floor from offices (Use Class E) to 3 No. self-contained flats (Use Class C3) and external alterations (amended location plan received 8th January 2026).

Documents

AIR QUALITY ASSESSMENT
Background Papers
Not archived · Council Link
APPLICATION FORM - WITHOUT PERSONAL DATA
Application Form
Not archived · Council Link
CONSULTATION RESPONSE - CONTAMINATED LAND
Consultee Comment
Not archived · Council Link
CONSULTATION RESPONSE - ENGINEERING
Consultee Comment
Not archived · Council Link
CONSULTATION RESPONSE - ENVIRO SERVICES
Consultee Comment
Not archived · Council Link
CONSULTATION RESPONSE - WASTE SERVICES
Consultee Comment
Not archived · Council Link
DESIGN AND ACCESS STATEMENT
Background Papers
Not archived · Council Link
EXISTING PLAN, ELEVATIONS AND SECTIONS
Drawings
Not archived · Council Link
EXISTING PLANS AND ELEVATIONS
Revised Drawings
Not archived · Council Link
LOCATION PLAN
Revised Drawings
Not archived · Council Link
Revised Drawings
Archived · Council Link
Revised Drawings
Archived · Council Link
Drawings
Archived · Council Link

Take Action

Make your voice heard. Authorities need to hear from people who support new homes.

✉️ Write Email in Support View on Council Portal