← Back to Tameside Metropolitan Borough Council

Status

Awaiting decision
Received
17 Nov 2025
New dwellings
n/a

Full Proposal

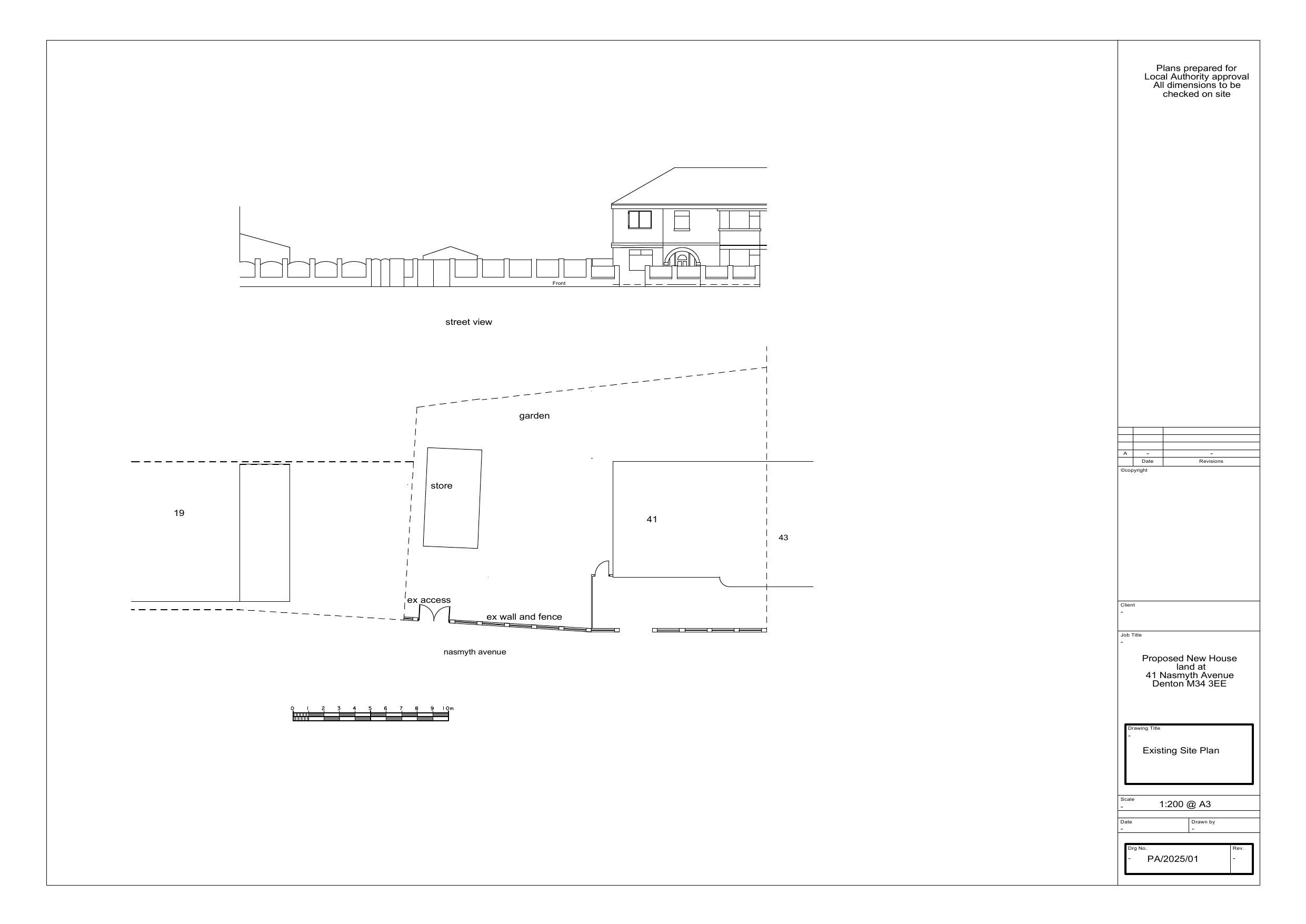
Construction of two storey 3 bedroom detached house with associated parking and other associated works

Documents

APPLICATION FORM - WITHOUT PERSONAL DATA
Application Form
Not archived · Council Link
BLOCK PLAN
Drawings
Not archived · Council Link
COAL MINING ASSESSMENT
Background Papers
Not archived · Council Link
CONSULTATION RESPONSE - CONTAMINATED LAND
Consultee Comment
Not archived · Council Link
CONSULTATION RESPONSE - ENVIRO SERVICES
Consultee Comment
Not archived · Council Link
CONSULTATION RESPONSE - GMEU
Consultee Comment
Not archived · Council Link
CONSULTATION RESPONSE - LHA
Consultee Comment
Not archived · Council Link
CONSULTATION RESPONSE - UU
Consultee Comment
Not archived · Council Link
CONSULTATION RESPONSE - WASTE SERVICES
Consultee Comment
Not archived · Council Link
CONTAMINATED LAND ASSESSMENT
Background Papers
Not archived · Council Link
DESIGN AND ACCESS STATEMENT
Background Papers
Not archived · Council Link
Drawings
Archived · Council Link
LOCATION PLAN
Drawings
Not archived · Council Link
Drawings
Archived · Council Link

Take Action

Make your voice heard. Authorities need to hear from people who support new homes.

✉️ Write Email in Support View on Council Portal