← Back to Teignbridge District Council
Status
Pending Consideration
Summary
Existing dwelling extended and two new two-storey dwellings with garages and associated works.
Full Proposal
Extension of the existing dwelling, two new two storey dwellings and garages and associated works
Documents
Acknowledgement Letter - Standard
Correspondence
Application Form - Without Personal Data
Form
BNG Assessment
Supporting Documents
Consultation with Web Link
Correspondence
Design & Access Statement
Supporting Documents
Drainage Consultation Response
Consultation Response
Email internal memo
Correspondence
Email internal memo
Correspondence
Email internal memo
Correspondence
Existing Dwelling Elevations
Drawing
Existing Dwelling Floor Plans
Drawing
Existing Dwelling Roof Plan
Drawing
Existing Site Elevations
Drawing
Existing Site Elevations
Drawing
Hennock Parish Council
Consultation Response
internal biodiversity
Consultation Response
Objection - Rose
Contributors
Objection - Rose
Contributors
Parish Email Notification
Correspondence
Planning Statement
Supporting Documents
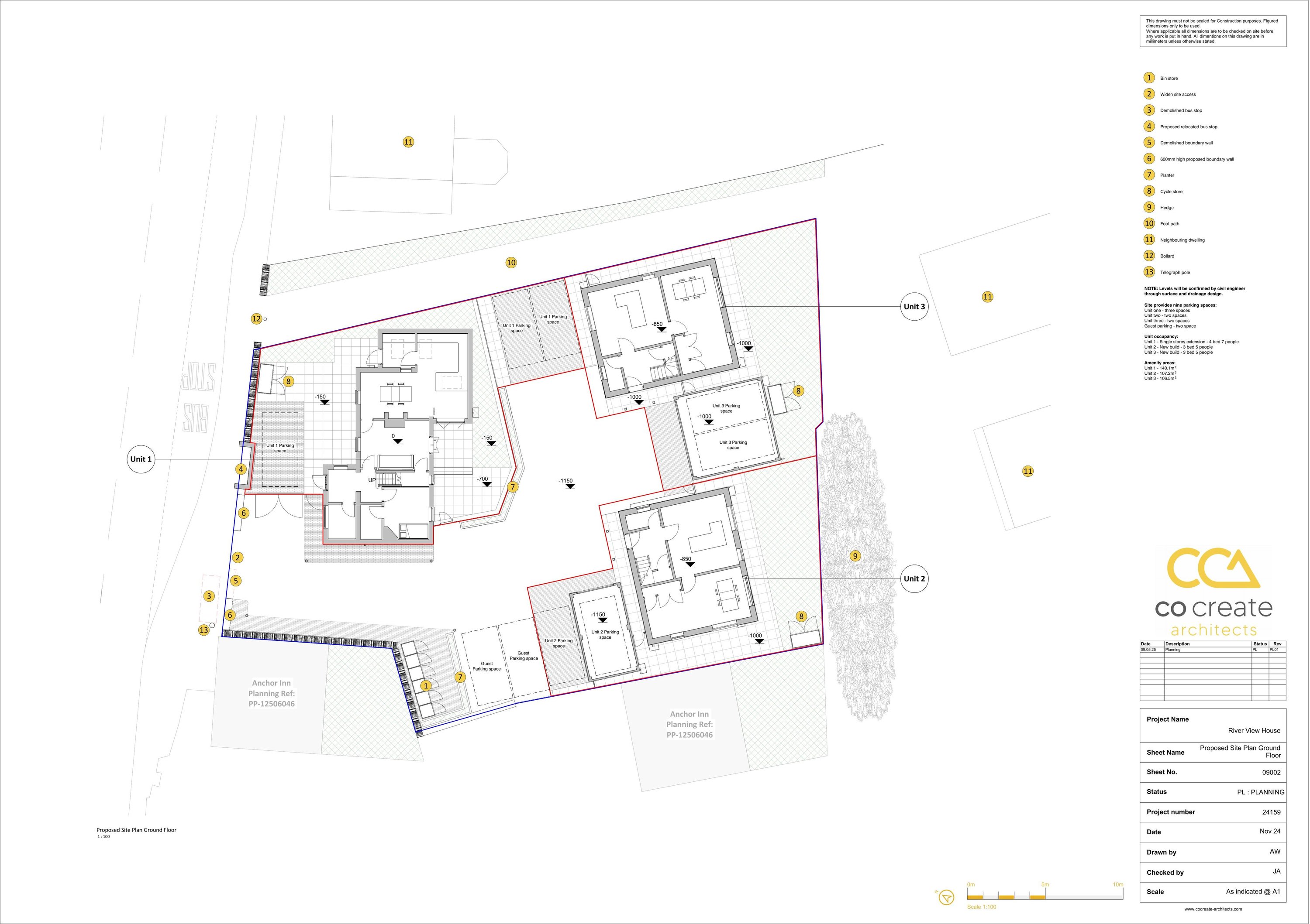
Proposed Drainage Plan
Drawing
Proposed Landscape Plan
Drawing
Proposed Site Elevations
Drawing
Proposed Site Elevations
Drawing
Proposed Site Sections
Drawing
Proposed Unit 1 Elevations
Drawing
Proposed Unit 1 Elevations
Drawing
Proposed Unit 1 First Floor Plan
Drawing
Proposed Unit 1 Ground Floor Plan
Drawing
Proposed Unit 1 Roof Plan
Drawing
Proposed Unit 2 Elevations
Drawing
Proposed Unit 2 Floor Plans
Drawing
Proposed Unit 3 Elevations
Drawing
Proposed Unit 3 Floor Plans
Drawing
Proposed Visual (3D)
Drawing
Proposed Visual Splays
Drawing
Soakaway Ground Investigation Report
Supporting Documents
SWW Correspondence to Applicant
Correspondence
TDC Waste
Consultation Response
Take Action
Make your voice heard. Authorities need to hear from people who support new homes.