← Back to Teignbridge District Council
Status
Pending Consideration
Full Proposal
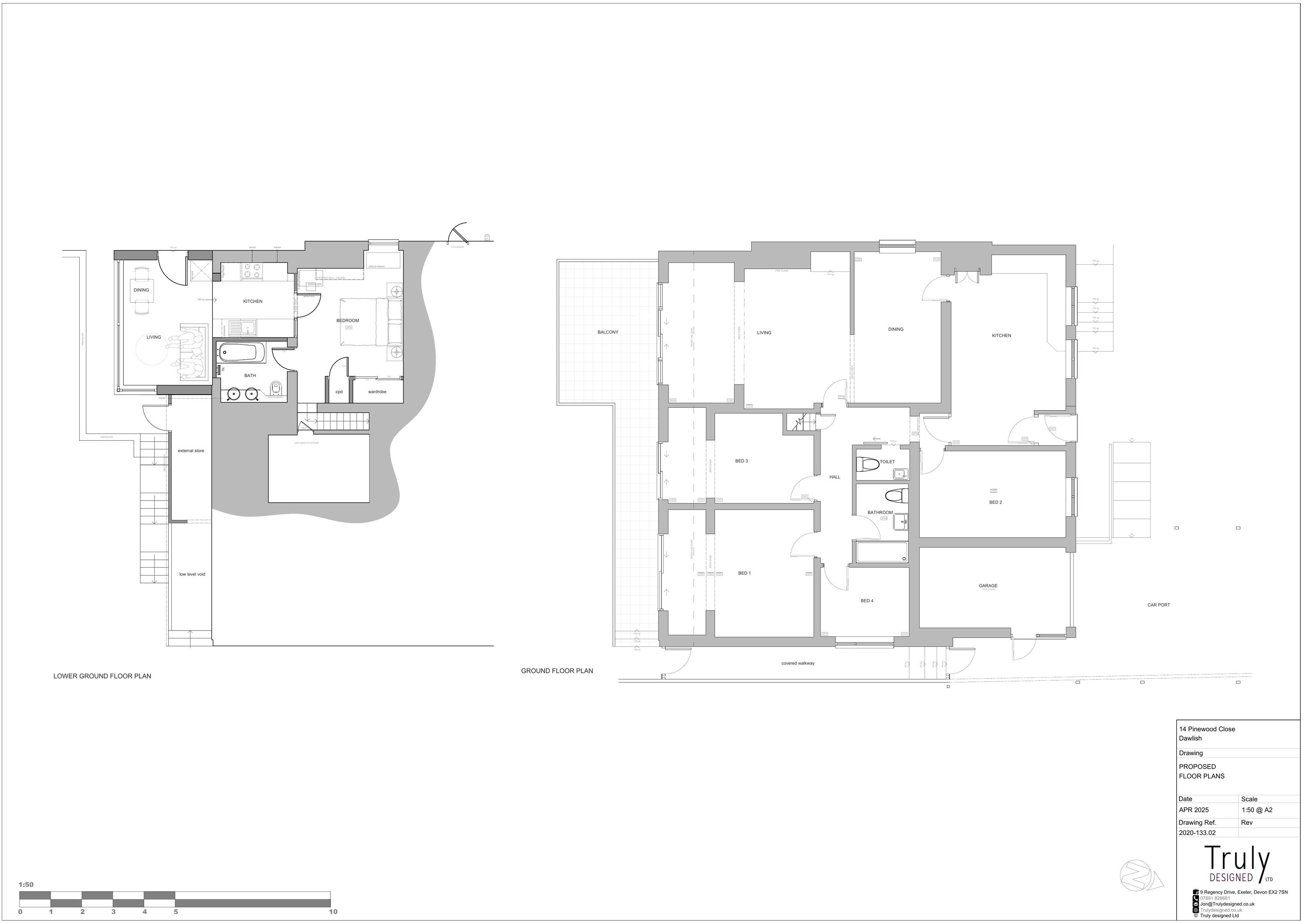
Create annexe within the existing dwelling, replace balcony, creation of patio and associated works
Documents
Acknowledgement Letter - Standard
Correspondence
Application Form
Pending Decision Drawings/Documents
Block Plan (Existing)
Drawing
Block Plan (Proposed)
Pending Decision Drawings/Documents
CRTV Drainage Survey
Drawing
Ecology Report
Pending Decision Drawings/Documents
Existing Block Plan
Drawing
Existing Elevations and Floor Plans
Drawing
From Agent (incl revised/add docs)
Correspondence
Location Plan
Pending Decision Drawings/Documents
Parish Comments
Consultation Response
Parish Email Notification
Correspondence
Proposed Block Plan
Drawing
Proposed Elevations
Pending Decision Drawings/Documents
Proposed Elevations
Superseded Drawings/Documents
Pending Decision Drawings/Documents
Superseded Drawings/Documents
Replaced by Agent Block Plan
Superseded Drawings/Documents
Site Notice-Displayed 7.1.26
Photograph
Supporting Statement
Supporting Documents
SWW - Letter for Applicant
Correspondence
SWW Enquiry to Build Over/Close To Public Draiange
Supporting Documents
Take Action
Make your voice heard. Authorities need to hear from people who support new homes.