← Back to Tendring District Council
22/00537/OUT
Tendring District Council · IDOX
Status
Awaiting decision
Received
18 Mar 2022
New dwellings
n/a
Full Proposal
Hybrid Planning Application consisting of: Full Planning Permission for the erection of 927 dwellings, allotments, public open space and associated works; Outline planning permission (all matters reserved) for the erection of a 2FE primary school, early years and childcare facility, care home, assisted living, local centre, public open space and associated works.
Documents
Consultee response - anglian water services - rec'd 20.01.26
Consultee Comment
Not archived
· Council Link
Consultee response - combined ecc consultation comments
Consultee Comment
Not archived
· Council Link
Consultee response - ecc green infrastructure - rec'd 08.01.2026
Consultee Comment
Not archived
· Council Link
Consultee response - ecc minerals and waste - rec'd 15.01.2026
Consultee Comment
Not archived
· Council Link
Consultee response - environment agency - rec'd 22.01.2026
Consultee Comment
Not archived
· Council Link
Consultee response - highways england - rec'd 05.01.2026
Consultee Comment
Not archived
· Council Link
Consultee response - historic england - rec'd 06.01.26
Consultee Comment
Not archived
· Council Link
Consultee response - natural england - rec'd 21.01.2026
Consultee Comment
Not archived
· Council Link
Consultee response - police strategic planning consultation - rec'd 23.01.2026
Consultee Comment
Not archived
· Council Link
Consultee response - uu open spaces - rec'd 12.02.2026
Consultee Comment
Not archived
· Council Link
Consultee response - uu open spaces - rec'd 19.01.2026
Consultee Comment
Not archived
· Council Link
Es addendum appendix e.1 - protected species update report part 1 - rec'd 15.12.
Report
Not archived
· Council Link
Es addendum appendix e.1 - protected species update report part 2 - rec'd 15.12.
Report
Not archived
· Council Link
Es addendum appendix e.1 - protected species update report part 3 - rec'd 15.12.
Report
Not archived
· Council Link
Es addendum appendix e.1 - protected species update report part 4 - rec'd 15.12.
Report
Not archived
· Council Link
Es addendum appendix e.1 - protected species update report part 5 - rec'd 15.12.
Report
Not archived
· Council Link
Es addendum appendix e.1 - protected species update report part 6 - rec'd 15.12.
Report
Not archived
· Council Link
Es addendum appendix e.1 - protected species update report part 7 - rec'd 15.12.
Report
Not archived
· Council Link
Es addendum appendix e.3 - updated habitat assessment - rec'd 15.12.25
Report
Not archived
· Council Link
Es addendum appendix e.4 - shadow habitat regulations assessment - rec'd 15.12.2
Report
Not archived
· Council Link
Es addendum appendix e.5 - ecological mitigation strategy part 1 - rec'd 15.12.2
Report
Not archived
· Council Link
Es addendum appendix e.5 - ecological mitigation strategy part 2 - rec'd 15.12.2
Report
Not archived
· Council Link
Es addendum appendix e.6 - bng planning stage report part 1 - rec'd 15.12.25
Report
Not archived
· Council Link
Es addendum appendix e.6 - bng planning stage report part 2 - rec'd 15.12.25
Report
Not archived
· Council Link
Es addendum appendix e.6 - bng planning stage report part 3 - rec'd 15.12.25
Report
Not archived
· Council Link
Es addendum appendix e.7 - great crested newt survey - rec'd 15.12.25
Report
Not archived
· Council Link
Es addendum appendix g - noise and vibration assessment - rec'd 15.12.25
Report
Not archived
· Council Link
Fra addendum appendix - surface water basin sections part 1 - rec'd 15.12.25
Report
Not archived
· Council Link
Fra addendum appendix - surface water basin sections part 2 - rec'd 15.12.25
Report
Not archived
· Council Link
Fra addendum appendix - surface water catchment plan part 1 - rec'd 15.12.25
Report
Not archived
· Council Link
Fra addendum appendix - surface water catchment plan part 2 - rec'd 15.12.25
Report
Not archived
· Council Link
Fra addendum appendix - surface water catchment plan part 3 - rec'd 15.12.25
Report
Not archived
· Council Link
Fra addendum appendix - surface water layout part 1 - rec'd 15.12.25
Report
Not archived
· Council Link
Fra addendum appendix - surface water layout part 2 - rec'd 15.12.25
Report
Not archived
· Council Link
Fra addendum appendix - surface water maintenance plan - rec'd 15.12.25
Report
Not archived
· Council Link
Fra addendum appendix - surface water permeable catchment areas - rec'd 15.12.25
Report
Not archived
· Council Link
Drawing
Archived
· Council Link
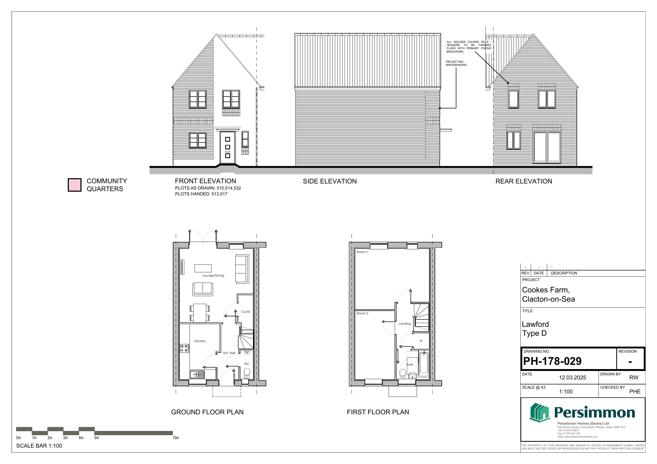
Rec'd 18/10/22 - superseded 1 and 2 bedroom bungalow, floor plan and elevations
Drawing
Not archived
· Council Link
Rec'd 18/10/22 - superseded 1 and 2 bedroom bungalow, floor plan and elevations
Drawing
Not archived
· Council Link
Rec'd 18/10/22 - superseded 1 and 2 bedroom bungalows, floor plan and elevations
Drawing
Not archived
· Council Link
Rec'd 18/10/22 - superseded 1 bedroom bungalow, floor plan and elevations
Drawing
Not archived
· Council Link
Rec'd 18/10/22 - superseded 1 bedroom bungalows, floor plan and elevations
Drawing
Not archived
· Council Link
Rec'd 18/10/22 - superseded 2 bed corner, floor plan and elevations
Drawing
Not archived
· Council Link
Rec'd 18/10/22 - superseded 2 bedroom bungalow, floor plan and elevations
Drawing
Not archived
· Council Link
Rec'd 18/10/22 - superseded 3 bed corner, floor plan and elevations
Drawing
Not archived
· Council Link
Rec'd 18/10/22 - superseded 3 bedroom mobility bungalow, floor plan and elevatio
Drawing
Not archived
· Council Link
Rec'd 18/10/22 - superseded camelia semi detached, floor plan and elevations
Drawing
Not archived
· Council Link
Rec'd 18/10/22 - superseded camellia detached, floor plan and elevations
Drawing
Not archived
· Council Link
Rec'd 18/10/22 - superseded camellia semi detached, floor plan and elevations
Drawing
Not archived
· Council Link
Rec'd 18/10/22 - superseded heather detached, floor plan and elevations
Drawing
Not archived
· Council Link
Rec'd 18/10/22 - superseded heather semi detached, floor plan and elevations
Drawing
Not archived
· Council Link
Rec'd 18/10/22 - superseded jasmine detached, floor plan and elevations
Drawing
Not archived
· Council Link
Rec'd 18/10/22 - superseded jasmine detached, floor plan and elevations
Drawing
Not archived
· Council Link
Rec'd 18/10/22 - superseded jasmine semi detached, floor plan and elevations
Drawing
Not archived
· Council Link
Rec'd 18/10/22 - superseded lily detached, floor plan and elevations
Drawing
Not archived
· Council Link
Rec'd 18/10/22 - superseded lily semi detached, floor plan and elevations
Drawing
Not archived
· Council Link
Rec'd 18/10/22 - superseded wisteria detached, floor plan and elevations
Drawing
Not archived
· Council Link
Rec'd 21/10/22 - superseded 1 and 2 bedroom bungalow, floor plan and elevations
Drawing
Not archived
· Council Link
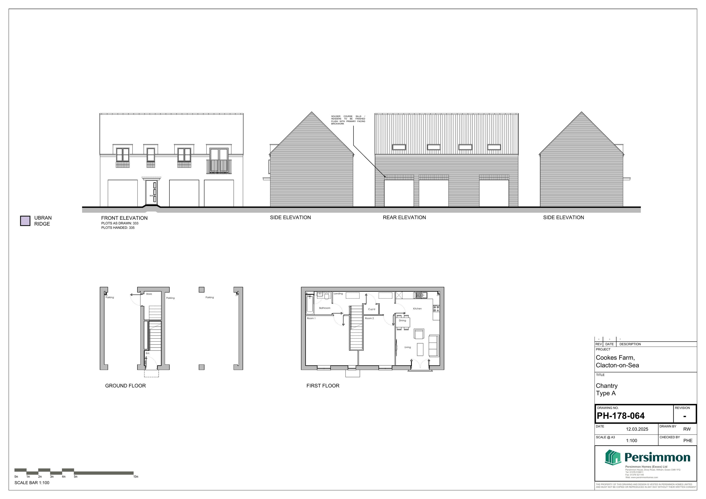
Sladbury type b - proposed floor plans and elevations - rec'd 15.12.25
Drawing
Not archived
· Council Link
Substation - proposed floor plan and elevations - rec'd 15.12.25
Drawing
Not archived
· Council Link
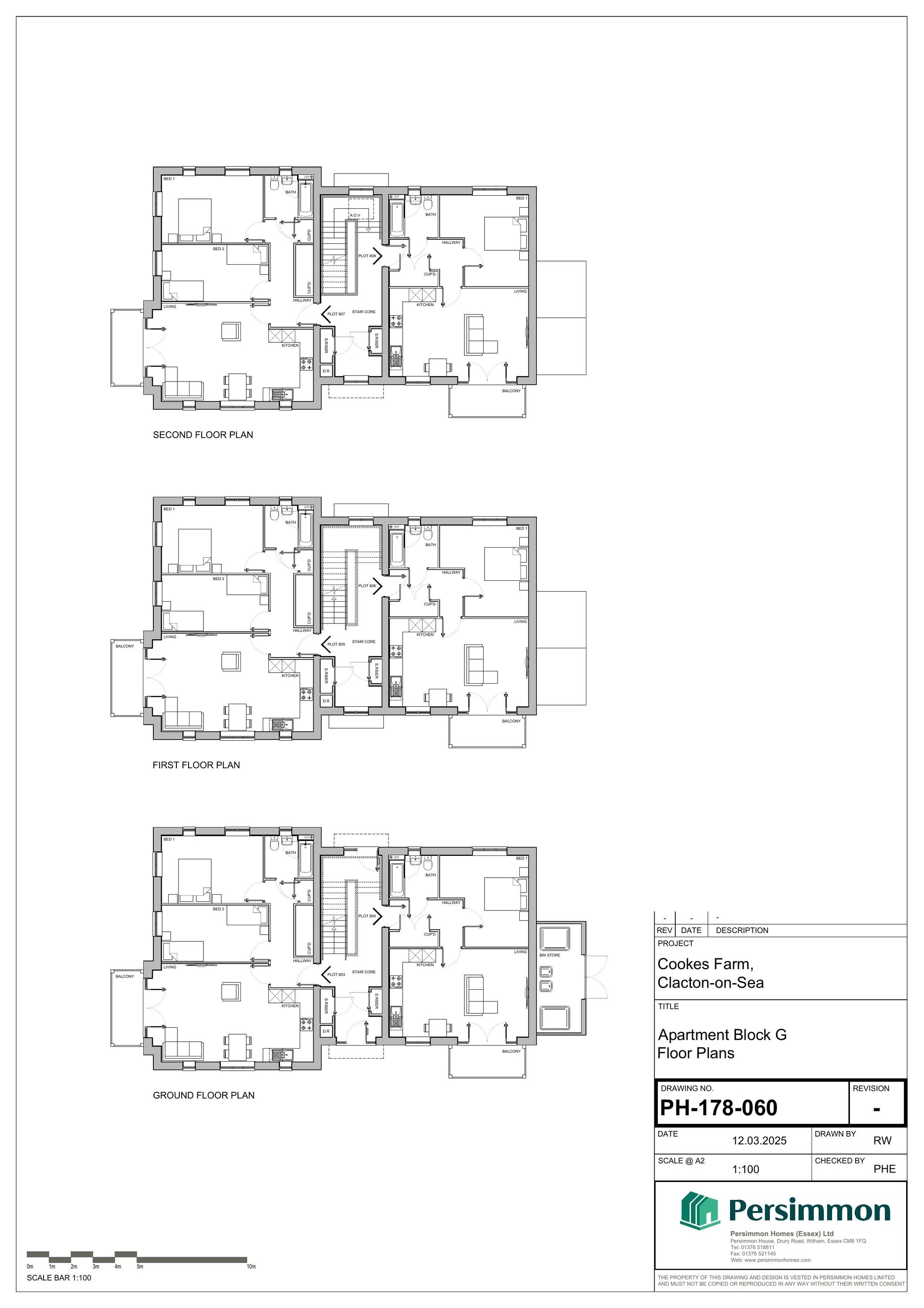
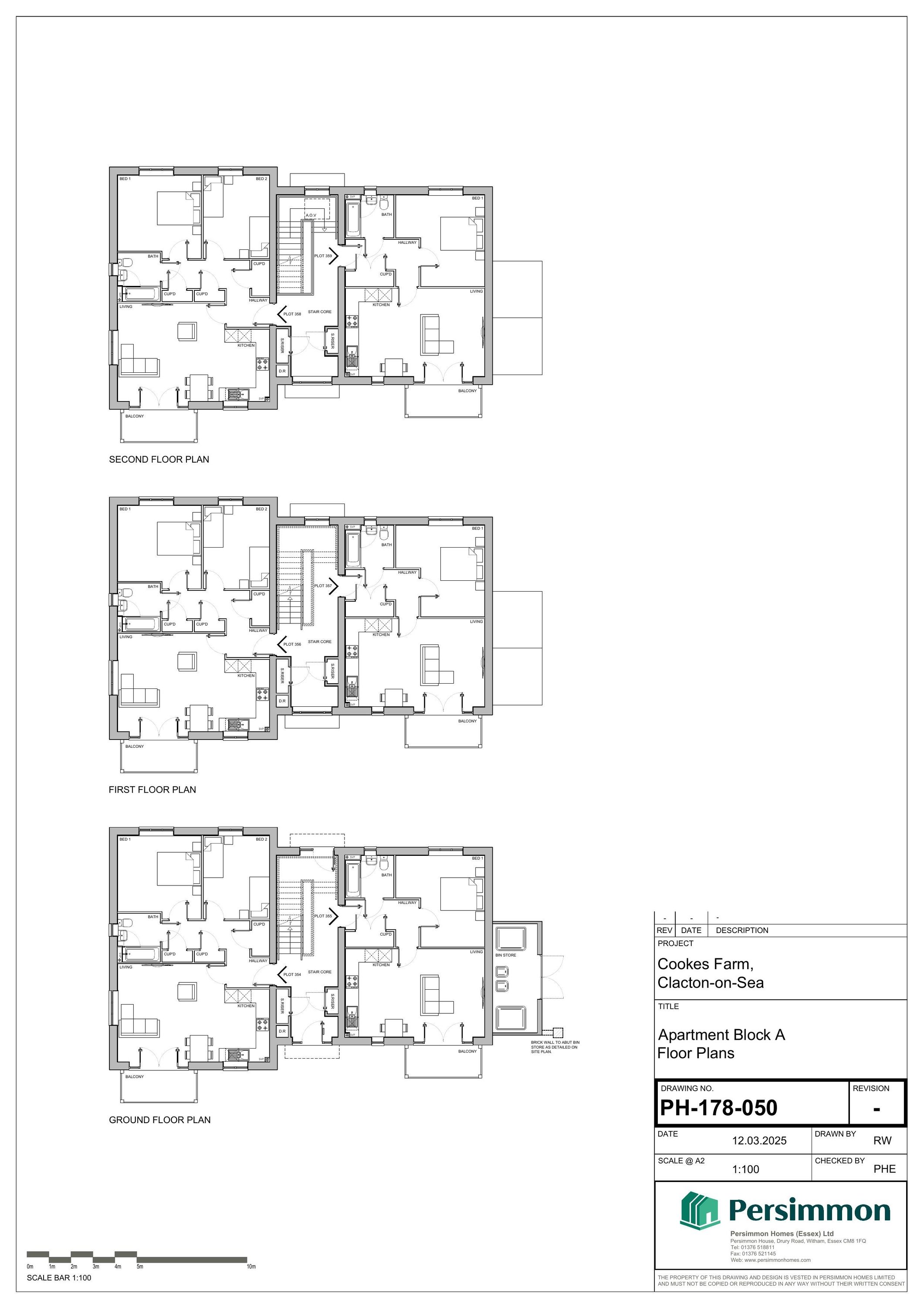
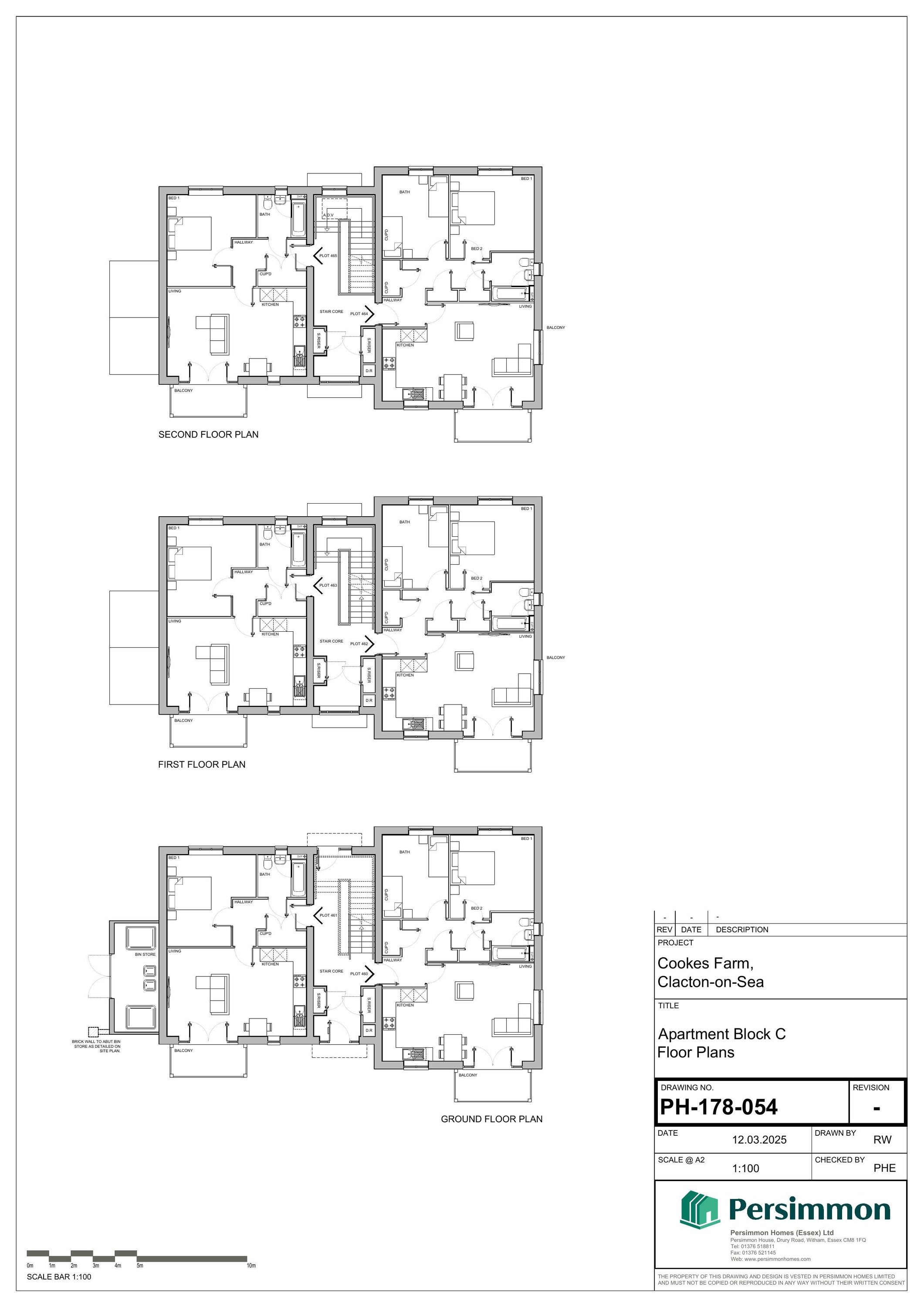
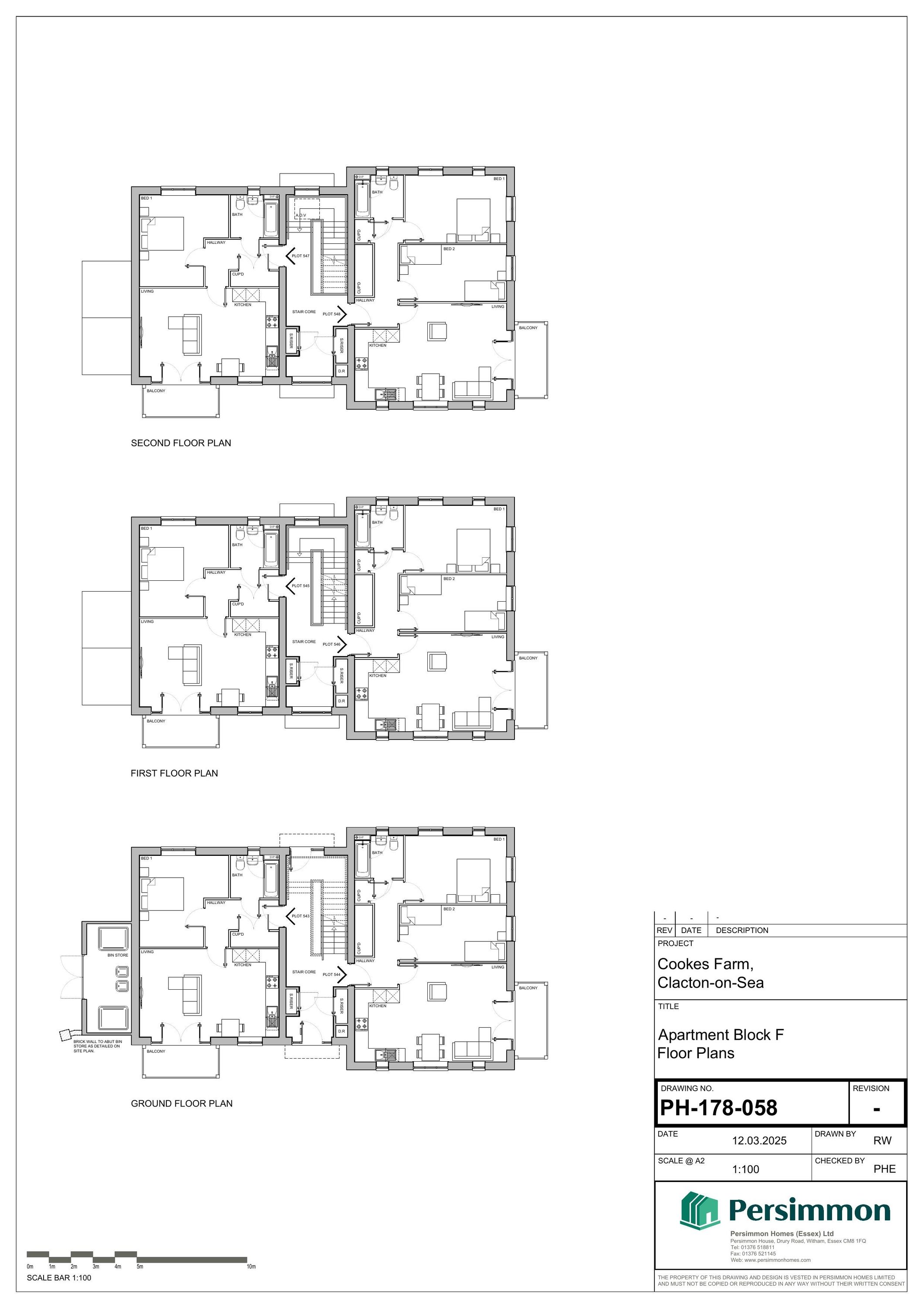
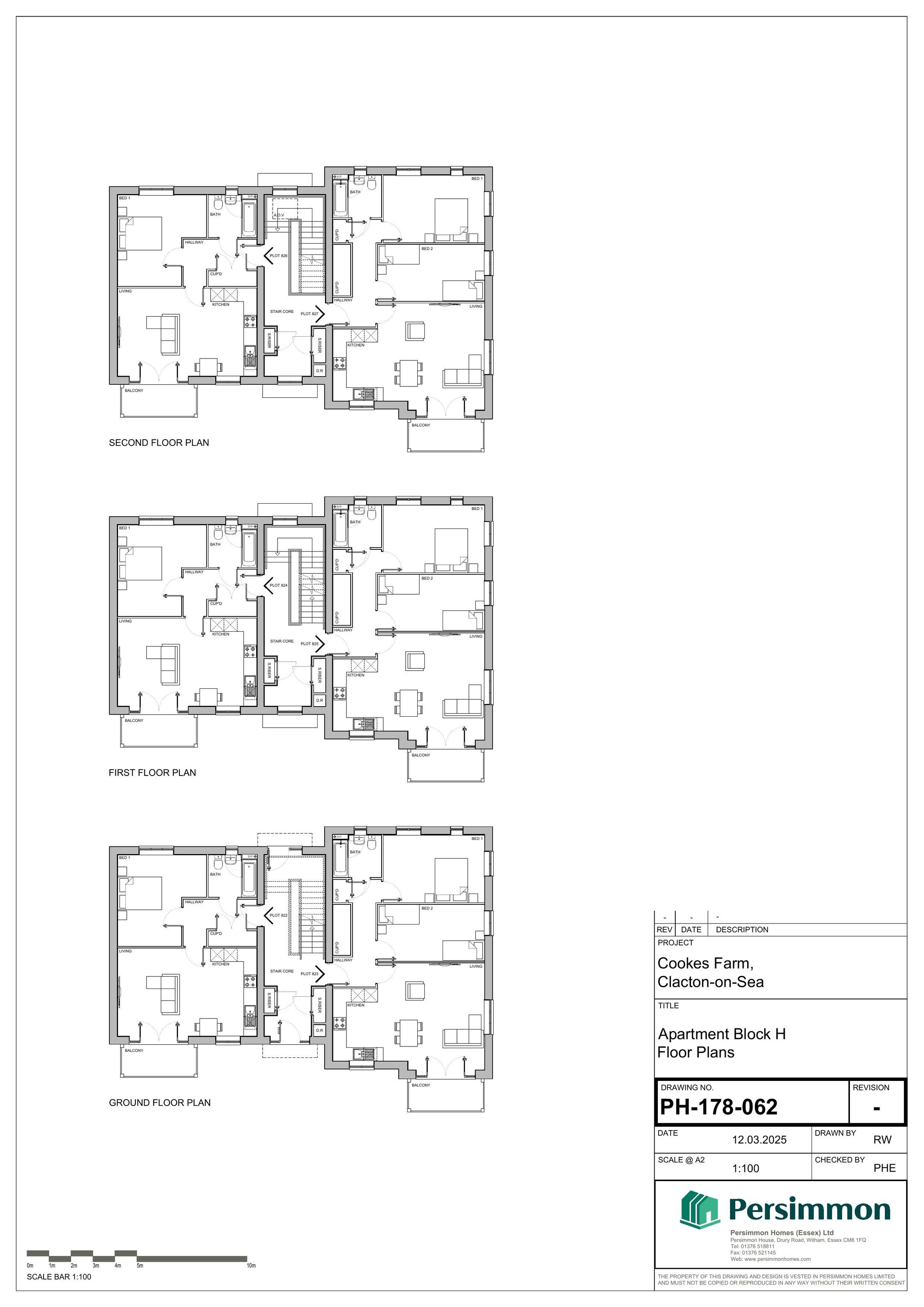
Superseded 2 and 3 (mobility) bedroom affordable bungalows - proposed floor plan
Drawing
Not archived
· Council Link
Superseded care home - proposed outbuilding plans, elevations and sections
Drawing
Not archived
· Council Link
Superseded double garage (gabled roof) - floor plan and elevations
Drawing
Not archived
· Council Link
Superseded double garage (hipped roof) - floor plan and elevations
Drawing
Not archived
· Council Link
Superseded proposed community building - floor plan and elevations
Drawing
Not archived
· Council Link
Superseded rec'd 18/10/22 - amended care home, proposed elevations (1 of 2)
Drawing
Not archived
· Council Link
Superseded rec'd 18/10/22 - amended care home, proposed elevations (2 of 2)
Drawing
Not archived
· Council Link
Superseded rec'd 18/10/22 - amended care home, proposed first floor plan
Drawing
Not archived
· Council Link
Superseded rec'd 18/10/22 - amended care home, proposed ground floor plan
Drawing
Not archived
· Council Link
Superseded rec'd 18/10/22 - amended care home, proposed roof plan
Drawing
Not archived
· Council Link
Superseded rec'd 18/10/22 - amended care home, proposed second floor plan
Drawing
Not archived
· Council Link
Superseded rec'd 18/10/22 - amended care home, proposed visual 01
Drawing
Not archived
· Council Link
Superseded rec'd 18/10/22 - amended care home, proposed visual 02
Drawing
Not archived
· Council Link
Superseded rec'd 18/10/22 - amended care home, proposed visual 03
Drawing
Not archived
· Council Link
Superseded rec'd 18/10/22 - amended care home, proposed visual 04
Drawing
Not archived
· Council Link
Superseded rec'd 18/10/22 - amended double garage (hipped roof) floor plan and e
Drawing
Not archived
· Council Link
Superseded rec'd 18/10/22 - amended shared double garage (gabled) floor plan, el
Drawing
Not archived
· Council Link
Superseded rec'd 18/10/22 - amended single garage (gabled roof) floor plan and e
Drawing
Not archived
· Council Link
Superseded rec'd 18/10/22 - amended single garage (hipped roof) floor plan and e
Drawing
Not archived
· Council Link
Superseded rec'd 18/10/22 - double garage (gabled roof) floor plan and elevation
Drawing
Not archived
· Council Link
Superseded rec'd 18/10/22 - m4(3a) wheel chair adaptable dwelling floorplan
Drawing
Not archived
· Council Link
Superseded rec'd 18/10/22 - shared double garage (hipped roof) floor plan and el
Drawing
Not archived
· Council Link
Superseded single garage (gabled roof) - floor plan and elevations
Drawing
Not archived
· Council Link
Superseded single garage (hipped roof) - floor plan and elevations
Drawing
Not archived
· Council Link
Superseded site wide - building envelope and heights parameter plan
Drawing
Not archived
· Council Link
Drawing
Archived
· Council Link
Drawing
Archived
· Council Link
Take Action
Make your voice heard. Authorities need to hear from people who support new homes.